
Land for sale
Devonshire Road, Millom
- PROPERTY TYPE
Land
- SIZE
Ask agent
Key features
- Approx Three Acres
- Development Potential
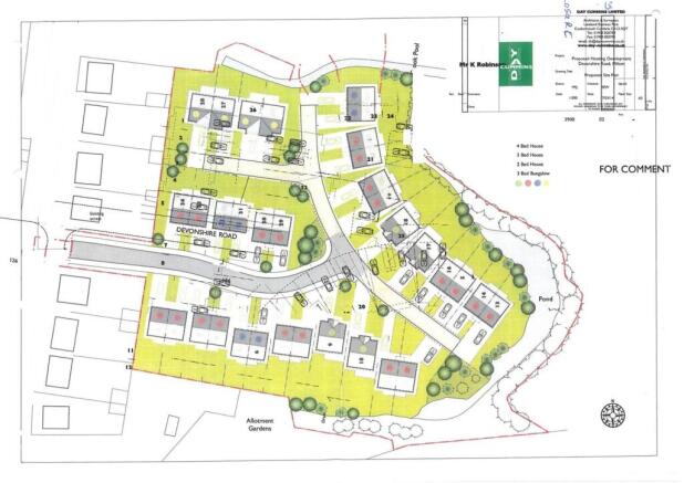
- Lapsed Planning 4/76/0771/003
- Established Access from Devonshire Road
Description
Approx. 3 Acres – Former Planning Permission for Housing
An exceptional parcel of freehold land, extending to approximately three acres, situated with established access off Devonshire Road.
Previously held lapsed planning permission (Ref: 4/76/0771/003) for a proposed housing development scheme
Offering significant potential, subject to obtaining new planning consent
Ideal for developers or investors seeking a well-positioned site
All enquiries strictly through the sole agents:
Corrie and Co, Millom
Brochures
Devonshire Road, MillomDevonshire Road, Millom
NEAREST STATIONS
Distances are straight line measurements from the centre of the postcode- Millom Station0.6 miles
- Askam Station2.5 miles
- Green Road Station2.6 miles
Notes
Disclaimer - Property reference 33846919. The information displayed about this property comprises a property advertisement. Rightmove.co.uk makes no warranty as to the accuracy or completeness of the advertisement or any linked or associated information, and Rightmove has no control over the content. This property advertisement does not constitute property particulars. The information is provided and maintained by Corrie and Co Ltd, Millom. Please contact the selling agent or developer directly to obtain any information which may be available under the terms of The Energy Performance of Buildings (Certificates and Inspections) (England and Wales) Regulations 2007 or the Home Report if in relation to a residential property in Scotland.
Map data ©OpenStreetMap contributors.



