2 bedroom apartment for sale
Kenmore Place, Riverside Park, Ashford

- PROPERTY TYPE
Apartment
- BEDROOMS
2
- BATHROOMS
2
- SIZE
Ask agent
Key features
- Stunning 2 Bedroom, 3rd Floor - 859 sq ft with allocated parking
- Rental projection: £1,500pcm approx
- Entry to apartment controlled via secure door entry system
- Hyperoptic with all homes allowing residents to be connected in minutes
- Open-plan living with modern fixtures & fittings integrated throughout
- Stylish en-suite shower room to principal bedroom
- Guest bedroom serviced by family bath-suite
- Sunny, South facing balcony + Allocated parking space (no14)
- Lease: 994yrs, Service charge: £2,506 incl ground rent
- Council Tax Band: B - EPC Rating: B (82)
Description
Riverside Park apartments is a stunning recent development found within close proximity to Ashford International Railway Station & the High Street of the town.
Situated within the Kenmore Place block, is a stylish 2 bedroom, 3rd floor apartment that offers high specification throughout along with lift access to the stunning ROOF TERRACE, as well as your own private South facing balcony, all within walking distance to Ashford Town Centre and train station. The apartment consist of 2 spacious double bedrooms, modern, open plan living/dining room and fitted kitchen, as well as a tiled family bathroom & en-suite to master bedroom, plus handy storage/utility cupboard too.
Developed by GRE Assets and designed by award-winning architect Guy Hollaway, Riverside Park has delivered 246 stunning apartments as well as 26 luxury townhouses and a new public realm. Offering contemporary open-plan living, the homes overlook the Great River Stour nearby Victoria Park.
TENURE: Leasehold - 994 year lease. Service charge: £2,506, Inclusive of ground rent payments & estate fees.
LOCATION: Situated within Ashford town centre, which offers a vast range of leisure facilities with shops, cafes and restaurants. Ashford International train station is within walking distance and provides regular high-speed services to London in 38 minutes. The property is also well-served with other good transport links with bus services and the M20 motorway providing fast access to the Channel Tunnel.
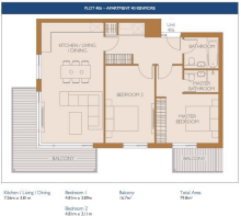
Reception - 3.78 x 7.51 (12'4" x 24'7") -
Bedroom 1 - 1.36 x 4.82 (4'5" x 15'9") -
Bedroom 2 - 3.08 x 4.82 (10'1" x 15'9") -
Bathroom - 1.6 x 2.09 (5'2" x 6'10") -
En-Suite - 1.36 x 2.1 (4'5" x 6'10") -
Please note, the images shown are previous to the already agreed tenancy agreement that is in place.
Brochures
Kenmore Place, Riverside Park, Ashford- COUNCIL TAXA payment made to your local authority in order to pay for local services like schools, libraries, and refuse collection. The amount you pay depends on the value of the property.Read more about council Tax in our glossary page.
- Band: B
- PARKINGDetails of how and where vehicles can be parked, and any associated costs.Read more about parking in our glossary page.
- Yes
- GARDENA property has access to an outdoor space, which could be private or shared.
- Ask agent
- ACCESSIBILITYHow a property has been adapted to meet the needs of vulnerable or disabled individuals.Read more about accessibility in our glossary page.
- Lift access
Energy performance certificate - ask agent
Kenmore Place, Riverside Park, Ashford
Add an important place to see how long it'd take to get there from our property listings.
__mins driving to your place
Get an instant, personalised result:
- Show sellers you’re serious
- Secure viewings faster with agents
- No impact on your credit score



Your mortgage
Notes
Staying secure when looking for property
Ensure you're up to date with our latest advice on how to avoid fraud or scams when looking for property online.
Visit our security centre to find out moreDisclaimer - Property reference 33847672. The information displayed about this property comprises a property advertisement. Rightmove.co.uk makes no warranty as to the accuracy or completeness of the advertisement or any linked or associated information, and Rightmove has no control over the content. This property advertisement does not constitute property particulars. The information is provided and maintained by Hunters, Ashford. Please contact the selling agent or developer directly to obtain any information which may be available under the terms of The Energy Performance of Buildings (Certificates and Inspections) (England and Wales) Regulations 2007 or the Home Report if in relation to a residential property in Scotland.
*This is the average speed from the provider with the fastest broadband package available at this postcode. The average speed displayed is based on the download speeds of at least 50% of customers at peak time (8pm to 10pm). Fibre/cable services at the postcode are subject to availability and may differ between properties within a postcode. Speeds can be affected by a range of technical and environmental factors. The speed at the property may be lower than that listed above. You can check the estimated speed and confirm availability to a property prior to purchasing on the broadband provider's website. Providers may increase charges. The information is provided and maintained by Decision Technologies Limited. **This is indicative only and based on a 2-person household with multiple devices and simultaneous usage. Broadband performance is affected by multiple factors including number of occupants and devices, simultaneous usage, router range etc. For more information speak to your broadband provider.
Map data ©OpenStreetMap contributors.




