
Lugtrout Lane, Solihull, B91 2SB

- PROPERTY TYPE
Semi-Detached
- BEDROOMS
3
- BATHROOMS
1
- SIZE
Ask agent
- TENUREDescribes how you own a property. There are different types of tenure - freehold, leasehold, and commonhold.Read more about tenure in our glossary page.
Freehold
Key features
- An Immaculate Semi-Detached
- NO UPWARD CHAIN
- Three Bedrooms
- Lounge
- Dining Kitchen
- Large Utility Room
- Family Bathroom
- Useable Loft Space
- Delightful South-West Rear Garden
- Garage & Off Road Parking
Description
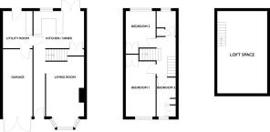
The lovely semi-detached family home sits back from the road behind a generous block paved driveway that provides off-road parking. The welcoming reception hall has stairs rising to the first floor and doorways radiating off to the ground floor accommodation. There is a comfortable lounge to the front of the property with a feature fireplace, and a full-width dining kitchen to the rear with fitted storage units, a pantry, further generous storage cupboards and patio doors leading out to the rear garden. Located off the kitchen is a useful utility room, with a further array of fitted storage units plus access to the garden and garage. On the first floor you will find three bedrooms with fitted furniture and a modern family bathroom. There is a small staircase fitted on the landing that leads to a boarded loft space with power and light. The delightful rear garden is stocked with an abundance of shrubs, trees, and plants, it enjoys a south-west aspect and has a beautiful private and leafy backdrop.
Reception Hall
Lounge to front - 4.17m x 3.86m (13'8" x 12'8")
Dining Kitchen to rear - 5.21m x 3.18m (17'1" x 10'5")
Utility Room to rear - 1.7m x 3.33m (5'7" x 10'11")plus fitted wardrobes
Bedroom One to front - 3.73m x 3m (12'3" x 9'10")
Bedroom Two to rear - 3.18m x 3m (10'5" x 9'10")
Bedroom Three to front - 2.84m x 2.11m (9'4" x 6'11")inc fitted wardrobes
Bathroom to rear - 2.26m x 2.08m (7'5" x 6'10")
Garage - 5.23m x 2.21m (17'2" x 7'3")
EPC Rating D
Council Tax Band D
Tenure
The vendor advises that the property is Freehold. Drakes Estate Agents will not be held responsible should this information be incorrect and we request that your conveyancing solicitor verifies this throughout the conveyancing procedure.
The information provided by Drakes Estate Agents do not constitute part or all of an offer or contract, the measurements are supplied for guidance only and as such must be considered incorrect, we have not tested any appliances, fittings, services or equipment or and we ask all potential buyers to check the working of any appliances and the measurements before committing to any expenses. For Money Laundering purposes we will request any potential buyer at offer stage to provide proof of Identity before negotiation takes place. Drakes Estate Agents do receive a small referral fee from some Conveyancing Solicitors & Mortgage Brokers which is on a case-by-case basis, and is subject to a minimum referral fee of £50.
Brochures
Brochure 1- COUNCIL TAXA payment made to your local authority in order to pay for local services like schools, libraries, and refuse collection. The amount you pay depends on the value of the property.Read more about council Tax in our glossary page.
- Band: D
- PARKINGDetails of how and where vehicles can be parked, and any associated costs.Read more about parking in our glossary page.
- Off street
- GARDENA property has access to an outdoor space, which could be private or shared.
- Yes
- ACCESSIBILITYHow a property has been adapted to meet the needs of vulnerable or disabled individuals.Read more about accessibility in our glossary page.
- Ask agent
Lugtrout Lane, Solihull, B91 2SB
Add an important place to see how long it'd take to get there from our property listings.
__mins driving to your place
Get an instant, personalised result:
- Show sellers you’re serious
- Secure viewings faster with agents
- No impact on your credit score
Your mortgage
Notes
Staying secure when looking for property
Ensure you're up to date with our latest advice on how to avoid fraud or scams when looking for property online.
Visit our security centre to find out moreDisclaimer - Property reference S1292593. The information displayed about this property comprises a property advertisement. Rightmove.co.uk makes no warranty as to the accuracy or completeness of the advertisement or any linked or associated information, and Rightmove has no control over the content. This property advertisement does not constitute property particulars. The information is provided and maintained by Drakes Estate Agents, Hollywood. Please contact the selling agent or developer directly to obtain any information which may be available under the terms of The Energy Performance of Buildings (Certificates and Inspections) (England and Wales) Regulations 2007 or the Home Report if in relation to a residential property in Scotland.
*This is the average speed from the provider with the fastest broadband package available at this postcode. The average speed displayed is based on the download speeds of at least 50% of customers at peak time (8pm to 10pm). Fibre/cable services at the postcode are subject to availability and may differ between properties within a postcode. Speeds can be affected by a range of technical and environmental factors. The speed at the property may be lower than that listed above. You can check the estimated speed and confirm availability to a property prior to purchasing on the broadband provider's website. Providers may increase charges. The information is provided and maintained by Decision Technologies Limited. **This is indicative only and based on a 2-person household with multiple devices and simultaneous usage. Broadband performance is affected by multiple factors including number of occupants and devices, simultaneous usage, router range etc. For more information speak to your broadband provider.
Map data ©OpenStreetMap contributors.





