Ganthorpe, York

- PROPERTY TYPE
Barn Conversion
- BEDROOMS
5
- SIZE
Ask agent
- TENUREDescribes how you own a property. There are different types of tenure - freehold, leasehold, and commonhold.Read more about tenure in our glossary page.
Freehold
Key features
- Exceptional Development Opportunity
- Traditional barn with planning consent for 5 bedroom dwelling
- Situated in 23 acres (a further 32.5 acres also available)
- Superb rural position bordering Castle Howard Estate
- Beautiful Howardian Hills location between Malton and York
- Vast potential
Description
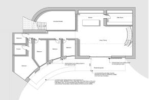
DESCRIPTION / BACKGROUND The sale of The Paddocks, is an exceptional residential development opportunity and comprises a traditional stone barn with planning consent to alter, re-build and extend to create a contemporary 5 bedroom dwelling situated in an elevated south facing position within 23 acres of undulating agricultural land. The property is located in a most delightful rural setting, located in the rolling countryside of the Howardian Hills AONB located in the shadows of the Castle Howard Estate between the popular and well serviced villages of Terrington and Welburn. Full planning consent was granted on the 23 December 2022 under application 22/00641/FUL.The site comprises two barns. Barn 1 is a single storey barn and Barn 2 is the footprint of a collapsed barn. The planning consent allows for the alteration, re-building and extension of the barns to create a contemporary style, part subterranean dwelling with traditional period features. The approved accommodation will provide the following accommodation: Living/Dining Area Kitchen Utility Room Bedroom with en-suite Four further Bedrooms Bathroom Study Triple Garage Plant RoomPlease see overleaf the existing and approved plans and please note a Planning Pack is available for those requiring more details. The property is situated within 23 acres of free draining arable land with some lovely original stone boundary walls. There is the potential to make the land into attractive parkland or amenity grounds.
LOCATION The Paddocks is situated in a rural position in open countryside, to the east iof the small rural village of Ganthorpe, which is located between the larger villages of Terrington and Welburn, in the Howardian Hills, situated around 8 miles to the southwest of the market town of Malton. The nearest range of services are within the village of Terrington, around 1.5 miles to the west, which includes school, village shop and stores, as well as sporting and leisure facilities. The market town of Malton is around 8 miles distant and provides a full range of local services and amenities including schools, supermarkets, shops and railway station. A wider range of amenities are available in the City of York, which is around 15 miles to the southwest and provides further facilities and mainline railway station providing links to London and Edinburgh The property can be identified by the Cundalls for sale board.
Brochures
Property BrochureFull Details- COUNCIL TAXA payment made to your local authority in order to pay for local services like schools, libraries, and refuse collection. The amount you pay depends on the value of the property.Read more about council Tax in our glossary page.
- Exempt
- PARKINGDetails of how and where vehicles can be parked, and any associated costs.Read more about parking in our glossary page.
- Yes
- GARDENA property has access to an outdoor space, which could be private or shared.
- Yes
- ACCESSIBILITYHow a property has been adapted to meet the needs of vulnerable or disabled individuals.Read more about accessibility in our glossary page.
- Ask agent
Energy performance certificate - ask agent
Ganthorpe, York
Add an important place to see how long it'd take to get there from our property listings.
__mins driving to your place
Get an instant, personalised result:
- Show sellers you’re serious
- Secure viewings faster with agents
- No impact on your credit score
Affordability
Notes
Staying secure when looking for property
Ensure you're up to date with our latest advice on how to avoid fraud or scams when looking for property online.
Visit our security centre to find out moreDisclaimer - Property reference 12661236. The information displayed about this property comprises a property advertisement. Rightmove.co.uk makes no warranty as to the accuracy or completeness of the advertisement or any linked or associated information, and Rightmove has no control over the content. This property advertisement does not constitute property particulars. The information is provided and maintained by Cundalls, Malton. Please contact the selling agent or developer directly to obtain any information which may be available under the terms of The Energy Performance of Buildings (Certificates and Inspections) (England and Wales) Regulations 2007 or the Home Report if in relation to a residential property in Scotland.
*This is the average speed from the provider with the fastest broadband package available at this postcode. The average speed displayed is based on the download speeds of at least 50% of customers at peak time (8pm to 10pm). Fibre/cable services at the postcode are subject to availability and may differ between properties within a postcode. Speeds can be affected by a range of technical and environmental factors. The speed at the property may be lower than that listed above. You can check the estimated speed and confirm availability to a property prior to purchasing on the broadband provider's website. Providers may increase charges. The information is provided and maintained by Decision Technologies Limited. **This is indicative only and based on a 2-person household with multiple devices and simultaneous usage. Broadband performance is affected by multiple factors including number of occupants and devices, simultaneous usage, router range etc. For more information speak to your broadband provider.
Map data ©OpenStreetMap contributors.







