Rostrevor Gardens, Iver, SL0

- PROPERTY TYPE
Bungalow
- BEDROOMS
3
- BATHROOMS
1
- SIZE
Ask agent
- TENUREDescribes how you own a property. There are different types of tenure - freehold, leasehold, and commonhold.Read more about tenure in our glossary page.
Freehold
Key features
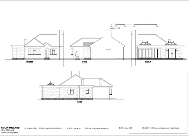
- Full Planning Permission For A Wrap-around Extension
- Three Bedroom Semi Detached Bungalow
- Garage with separate entrance at the rear
- Bright lounge with garden views
- Family bathroom plus en-suite potential
- Private rear garden, ideal for entertaining
- Front drive with off-street parking
- Quiet residential road in Iver Heath
- Excellent transport links to London & Heathrow
Description
Now with Full Planning Permission for a Wrap-Around Extension.
This spacious three-bedroom semi-detached bungalow in Iver Heath offers versatile living and exciting scope for the future. The property already provides well-proportioned accommodation, but the newly approved full planning permission for a wrap-around extension makes it an even more attractive opportunity for buyers looking to create their dream home.
Inside, the property features three good-sized bedrooms, a bright lounge, a family bathroom, and a fitted kitchen. The vendors have recently updated the interior by removing bulky furniture, making the space feel more open and accessible, while also improving flow through the hallway, bedrooms, and dining area.
One of the standout features is the significant potential offered by the planning permission. Buyers now have the flexibility to expand the living space, create a larger open-plan kitchen-diner, add additional bedrooms, or even incorporate a home office.
Externally, the property benefits from a private rear garden, ideal for entertaining and family living, as well as a front drive with parking. Garage with a separate entrance at the rear.
Located on a quiet residential road in Iver Heath, the home is well placed for local schools, shops, and parks. Excellent transport links via the M25, M40, and nearby stations provide easy access into London, Heathrow, and beyond.
This freehold property is an excellent opportunity for buyers seeking a comfortable home with immediate potential to add value.
EPC: D
Disclaimer
Whilst we make enquiries with the Seller to ensure the information provided is accurate, Yopa makes no representations or warranties of any kind with respect to the statements contained in the particulars which should not be relied upon as representations of fact. All representations contained in the particulars are based on details supplied by the Seller. Your Conveyancer is legally responsible for ensuring any purchase agreement fully protects your position. Please inform us if you become aware of any information being inaccurate.
Money Laundering Regulations
Should a purchaser(s) have an offer accepted on a property marketed by Yopa, they will need to undertake an identification check and asked to provide information on the source and proof of funds. This is done to meet our obligation under Anti Money Laundering Regulations (AML) and is a legal requirement. We use a specialist third party service together with an in-house compliance team to verify your information. The cost of these checks is £82.50 +VAT per purchase, which is paid in advance, when an offer is agreed and prior to a sales memorandum being issued. This charge is non-refundable under any circumstances.
- COUNCIL TAXA payment made to your local authority in order to pay for local services like schools, libraries, and refuse collection. The amount you pay depends on the value of the property.Read more about council Tax in our glossary page.
- Ask agent
- PARKINGDetails of how and where vehicles can be parked, and any associated costs.Read more about parking in our glossary page.
- Yes
- GARDENA property has access to an outdoor space, which could be private or shared.
- Yes
- ACCESSIBILITYHow a property has been adapted to meet the needs of vulnerable or disabled individuals.Read more about accessibility in our glossary page.
- Ask agent
Energy performance certificate - ask agent
Rostrevor Gardens, Iver, SL0
Add an important place to see how long it'd take to get there from our property listings.
__mins driving to your place
Get an instant, personalised result:
- Show sellers you’re serious
- Secure viewings faster with agents
- No impact on your credit score

Your mortgage
Notes
Staying secure when looking for property
Ensure you're up to date with our latest advice on how to avoid fraud or scams when looking for property online.
Visit our security centre to find out moreDisclaimer - Property reference 425879. The information displayed about this property comprises a property advertisement. Rightmove.co.uk makes no warranty as to the accuracy or completeness of the advertisement or any linked or associated information, and Rightmove has no control over the content. This property advertisement does not constitute property particulars. The information is provided and maintained by Yopa, East Anglia & London. Please contact the selling agent or developer directly to obtain any information which may be available under the terms of The Energy Performance of Buildings (Certificates and Inspections) (England and Wales) Regulations 2007 or the Home Report if in relation to a residential property in Scotland.
*This is the average speed from the provider with the fastest broadband package available at this postcode. The average speed displayed is based on the download speeds of at least 50% of customers at peak time (8pm to 10pm). Fibre/cable services at the postcode are subject to availability and may differ between properties within a postcode. Speeds can be affected by a range of technical and environmental factors. The speed at the property may be lower than that listed above. You can check the estimated speed and confirm availability to a property prior to purchasing on the broadband provider's website. Providers may increase charges. The information is provided and maintained by Decision Technologies Limited. **This is indicative only and based on a 2-person household with multiple devices and simultaneous usage. Broadband performance is affected by multiple factors including number of occupants and devices, simultaneous usage, router range etc. For more information speak to your broadband provider.
Map data ©OpenStreetMap contributors.




