
Broadbridge Lane, Smallfield, RH6

- PROPERTY TYPE
Detached
- BEDROOMS
3
- BATHROOMS
1
- SIZE
1,216 sq ft
113 sq m
- TENUREDescribes how you own a property. There are different types of tenure - freehold, leasehold, and commonhold.Read more about tenure in our glossary page.
Freehold
Key features
- Detached family home
- Wonderful rear garden
- Three Bedrooms
- 23'2 x 13'9 Garage
- Driveway parking for 3-4 cars
- Well presented
- Scope for further expansion (STPP)
- Village location
- CHAIN FREE
Description
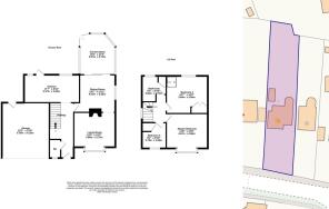
The property comprises of a living room with feature bay window and has space for sofas and living room furniture. A dining area has space for a 4-6 seater dining room table and has access to the conservatory which is used as a second sitting room. The neutral kitchen offers plenty of surface and storage space with room for whitegoods. There is also a downstairs WC.
On the first floor there are three bedrooms, the master is a generous double with feature bay window, bedroom 2 is also a double with walk in shower whilst bedroom 3 is a single. The family bathroom has recently been modernised and has a bath with overhead shower, toilet and basin.
Subject to the correct permissions the property has lots of potential for further expansion. The garage has foundations deep enough for an extension creating a potential fourth bedroom.
Outside:
The property sits on a generous plot with a wonderfully landscaped rear garden. Years of maintenance and care have created a mature colourful space ideal to enjoy all year round. Predominantly laid to lawn with a patio area it is an easy space to manage. At the bottom of the garden there is a raised decked area which has a summer house.
To the front of the property there is drive way parking for 4-5 cars and access to a large garage 23'2 x 13'9 which comfortably fits a car and could double up as a further utility space or workshop.
Living Room
4.27m x 4.47m
Dining Room
3.63m x 4.01m
Kitchen
5.36m x 2.7m
Conservatory
3.96m x 3.73m
Garage
7.06m x 4.2m
Bedroom 1
4.47m x 3.86m
Bedroom 2
3.66m x 3.84m
Bedroom 3
2.8m x 2.7m
Bathroom
2.82m x 2.72m
Brochures
Particulars- COUNCIL TAXA payment made to your local authority in order to pay for local services like schools, libraries, and refuse collection. The amount you pay depends on the value of the property.Read more about council Tax in our glossary page.
- Band: F
- PARKINGDetails of how and where vehicles can be parked, and any associated costs.Read more about parking in our glossary page.
- Yes
- GARDENA property has access to an outdoor space, which could be private or shared.
- Yes
- ACCESSIBILITYHow a property has been adapted to meet the needs of vulnerable or disabled individuals.Read more about accessibility in our glossary page.
- Ask agent
Broadbridge Lane, Smallfield, RH6
Add an important place to see how long it'd take to get there from our property listings.
__mins driving to your place
Get an instant, personalised result:
- Show sellers you’re serious
- Secure viewings faster with agents
- No impact on your credit score
Your mortgage
Notes
Staying secure when looking for property
Ensure you're up to date with our latest advice on how to avoid fraud or scams when looking for property online.
Visit our security centre to find out moreDisclaimer - Property reference HOR250146. The information displayed about this property comprises a property advertisement. Rightmove.co.uk makes no warranty as to the accuracy or completeness of the advertisement or any linked or associated information, and Rightmove has no control over the content. This property advertisement does not constitute property particulars. The information is provided and maintained by Mayhew Estates, Horley. Please contact the selling agent or developer directly to obtain any information which may be available under the terms of The Energy Performance of Buildings (Certificates and Inspections) (England and Wales) Regulations 2007 or the Home Report if in relation to a residential property in Scotland.
*This is the average speed from the provider with the fastest broadband package available at this postcode. The average speed displayed is based on the download speeds of at least 50% of customers at peak time (8pm to 10pm). Fibre/cable services at the postcode are subject to availability and may differ between properties within a postcode. Speeds can be affected by a range of technical and environmental factors. The speed at the property may be lower than that listed above. You can check the estimated speed and confirm availability to a property prior to purchasing on the broadband provider's website. Providers may increase charges. The information is provided and maintained by Decision Technologies Limited. **This is indicative only and based on a 2-person household with multiple devices and simultaneous usage. Broadband performance is affected by multiple factors including number of occupants and devices, simultaneous usage, router range etc. For more information speak to your broadband provider.
Map data ©OpenStreetMap contributors.








