
3 bedroom terraced house for sale
Geoffrey Crescent, Fareham

- PROPERTY TYPE
Terraced
- BEDROOMS
3
- BATHROOMS
2
- SIZE
Ask agent
- TENUREDescribes how you own a property. There are different types of tenure - freehold, leasehold, and commonhold.Read more about tenure in our glossary page.
Freehold
Key features
- EXTENDED FAMILY HOME
- THREE BEDROOMS
- 16' KITCHEN/DINER
- UTILITY
- LOUNGE
- BATHROOM
- EN-SUITE
- WESTERLY FACING REAR GARDEN
- GARAGE (STORAGE ONLY)
- EPC RATING D
Description
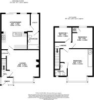
This extended three bedroom double bay fronted house is located to the south of Fareham town centre and within easy reach of Fareham Creek. The well-presented internal accommodation comprises; porch, hall, lounge with a bay window, 16' kitchen/diner with patio doors onto the rear garden, utility and bathroom. To the first floor, there are three bedrooms and the main bedroom benefitting from an en-suite shower room. Outside, there is a westerly facing enclosed rear garden and a GARAGE which is used for storage as there is currently no vehicular access. Viewing is highly recommended by the sole agents.
PORCH
Double glazed front door. Double glazed windows to the front and side aspect. Door to:
HALLWAY
Stairs rising to the first floor. Door to:
LOUNGE
Double glazed bay window to the front aspect. Inset ceiling spotlights. Picture rail. Understairs storage cupboard. Radiator. Door to:
KITCHEN/DINER
KITCHEN AREA
The kitchen has a one and a half bowl stainless steel single drainer sink unit with cupboards under. Further range of wall and base level units with roll edge work surfaces over. Built-in electric hob with extractor hood above. Built-in double oven with cupboard under and over. Space for fridge/freezer and space and plumbing for dishwasher. Coved and skimmed ceiling with inset spotlighting. Opening to:
DINING AREA
Double glazed patio doors leading to the rear garden and double glazed window to the rear aspect. Coved and skimmed ceiling with inset spotlighting. Radiator. Door to:
UTILITY
Double glazed window to the rear aspect. Smooth and coved ceiling. Space and plumbing for washing machine.
BATHROOM
Suite comprising panel enclosed bath, wash hand basin and low level WC. Heated chrome towel rail. Part tiled walls. Inset ceiling spotlights. Extractor fan.
FIRST FLOOR
LANDING
Doors to:
BEDROOM ONE
Double glazed window to the front aspect. Fitted wardrobes. Coved and skimmed ceiling with inset spotlighting. Radiator. Door to:
EN-SUITE
Double glazed window to the front aspect. Suite comprising shower cubicle, low level WC and wash hand basin. Skimmed ceiling with inset spotlighting. Radiator.
BEDROOM TWO
Double glazed window to the rear aspect. Radiator. Cupboard with wall mounted combi boiler.
BEDROOM THREE
Double glazed window to the rear aspect. Radiator.
OUTSIDE
To the front of the property, there is a low maintenance forecourt.
The westerly facing rear garden has an initial patio area adjacent to the house. The majority of the remainder of the garden can be found laid to lawn with a path leading to the gated rear pedestrian access.
GARAGE. Currently used as storage as there is currently no vehicular access.
COUNCIL TAX
Fareham Borough Council. Tax Band B. Payable 2025/2026. £1,683.54.
- COUNCIL TAXA payment made to your local authority in order to pay for local services like schools, libraries, and refuse collection. The amount you pay depends on the value of the property.Read more about council Tax in our glossary page.
- Band: B
- PARKINGDetails of how and where vehicles can be parked, and any associated costs.Read more about parking in our glossary page.
- Yes
- GARDENA property has access to an outdoor space, which could be private or shared.
- Yes
- ACCESSIBILITYHow a property has been adapted to meet the needs of vulnerable or disabled individuals.Read more about accessibility in our glossary page.
- Ask agent
Geoffrey Crescent, Fareham
Add an important place to see how long it'd take to get there from our property listings.
__mins driving to your place
Get an instant, personalised result:
- Show sellers you’re serious
- Secure viewings faster with agents
- No impact on your credit score
Your mortgage
Notes
Staying secure when looking for property
Ensure you're up to date with our latest advice on how to avoid fraud or scams when looking for property online.
Visit our security centre to find out moreDisclaimer - Property reference PFHCC_685047. The information displayed about this property comprises a property advertisement. Rightmove.co.uk makes no warranty as to the accuracy or completeness of the advertisement or any linked or associated information, and Rightmove has no control over the content. This property advertisement does not constitute property particulars. The information is provided and maintained by Pearsons, Fareham. Please contact the selling agent or developer directly to obtain any information which may be available under the terms of The Energy Performance of Buildings (Certificates and Inspections) (England and Wales) Regulations 2007 or the Home Report if in relation to a residential property in Scotland.
*This is the average speed from the provider with the fastest broadband package available at this postcode. The average speed displayed is based on the download speeds of at least 50% of customers at peak time (8pm to 10pm). Fibre/cable services at the postcode are subject to availability and may differ between properties within a postcode. Speeds can be affected by a range of technical and environmental factors. The speed at the property may be lower than that listed above. You can check the estimated speed and confirm availability to a property prior to purchasing on the broadband provider's website. Providers may increase charges. The information is provided and maintained by Decision Technologies Limited. **This is indicative only and based on a 2-person household with multiple devices and simultaneous usage. Broadband performance is affected by multiple factors including number of occupants and devices, simultaneous usage, router range etc. For more information speak to your broadband provider.
Map data ©OpenStreetMap contributors.








