
2 bedroom terraced house for sale
Freckleton Street, Lytham St. Annes, FY8

- PROPERTY TYPE
Terraced
- BEDROOMS
2
- BATHROOMS
1
- SIZE
Ask agent
- TENUREDescribes how you own a property. There are different types of tenure - freehold, leasehold, and commonhold.Read more about tenure in our glossary page.
Freehold
Key features
- NO CHAIN
- FISHERMAN'S COTTAGE
- CLOSE TO LYTHAM GREEN
- NEW DAMP PROOF COURSE
Description
FANTASTIC TWO BEDROOM "FISHERMANS COTTAGE" STYLE MID TERRACED PROPERTY SITUATED IN A HIGHLY SOUGHT AFTER LOCATION IN LYTHAM CLOSE TO THE TOWN CENTRE AND LYTHAM GREEN. OPEN PLAN LIVING, MODERN KITCHEN, SINGLE GARAGE AND NO ONWARD CHAIN! Unique are pleased to offer this property to the open market!
Welcome to Freckleton Street! A popular and highly sought after location in Lytham, close to the famous "green" and town centre with ample shops and restaurants. This property has recently been decorated and re-carpeted and has a new damp proof course and flat roof over the extension. Internally it comprises of:
Lounge/ Dining Room
Double glazed window to rear. Wall light point. Coving to ceiling. Door to storage cupboard. Double glazed window to front. Radiator, TV point, wall light point, and coving to ceiling.
Kitchen
Double glazed window to rear. Fitted with a matching range of base and eye level units with worktop space over. 1+1/2 bowl stainless steel sink with single drainer and mixer tap. Integrated fridge and freezer, plumbing for washing machine, built-in oven and four ring gas hob with extractor hood. Radiator. Wall mounted concealed combination boiler. Door to rear garden.
Bedroom
Two double glazed windows to front. Radiator.
Bedroom
Double glazed window to rear. Radiator.
Bathroom
Obscure double glazed window to rear. Fitted with four piece suite comprising corner bath with telephone style mixer tap, pedestal wash hand basin, shower enclosure with fitted shower, and WC. Part tiled walls. Radiator.
External
Front
Garden to front with mature shrubs and borders. Paved pathway.
Rear
Lawned garden with sunny aspect. Mature shrubs and borders. Paved pathway and patio. Gate to rear.
Garage 5.42m (179") x 2.43m (711")
Accessed via rear service road. Up-and-over door. Courtesy door and window to side. Power and light.
Hall - 4.07 x 0.99 m (13′4″ x 3′3″ ft)
Lounge/Diner - 7.23 x 3.76 m (23′9″ x 12′4″ ft)
Kitchen
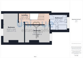
Landing - 4.78 x 1.74 m (15′8″ x 5′9″ ft)
Bedroom - 3.3 x 4.71 m (10′10″ x 15′5″ ft)
Bedroom - 3.84 x 2.86 m (12′7″ x 9′5″ ft)
Bathroom - 3.84 x 2.86 m (12′7″ x 9′5″ ft)
- COUNCIL TAXA payment made to your local authority in order to pay for local services like schools, libraries, and refuse collection. The amount you pay depends on the value of the property.Read more about council Tax in our glossary page.
- Band: C
- PARKINGDetails of how and where vehicles can be parked, and any associated costs.Read more about parking in our glossary page.
- Yes
- GARDENA property has access to an outdoor space, which could be private or shared.
- Yes
- ACCESSIBILITYHow a property has been adapted to meet the needs of vulnerable or disabled individuals.Read more about accessibility in our glossary page.
- Ask agent
Freckleton Street, Lytham St. Annes, FY8
Add an important place to see how long it'd take to get there from our property listings.
__mins driving to your place
Get an instant, personalised result:
- Show sellers you’re serious
- Secure viewings faster with agents
- No impact on your credit score

Your mortgage
Notes
Staying secure when looking for property
Ensure you're up to date with our latest advice on how to avoid fraud or scams when looking for property online.
Visit our security centre to find out moreDisclaimer - Property reference 8874. The information displayed about this property comprises a property advertisement. Rightmove.co.uk makes no warranty as to the accuracy or completeness of the advertisement or any linked or associated information, and Rightmove has no control over the content. This property advertisement does not constitute property particulars. The information is provided and maintained by Unique Estate Agency Ltd, Lytham St Annes. Please contact the selling agent or developer directly to obtain any information which may be available under the terms of The Energy Performance of Buildings (Certificates and Inspections) (England and Wales) Regulations 2007 or the Home Report if in relation to a residential property in Scotland.
*This is the average speed from the provider with the fastest broadband package available at this postcode. The average speed displayed is based on the download speeds of at least 50% of customers at peak time (8pm to 10pm). Fibre/cable services at the postcode are subject to availability and may differ between properties within a postcode. Speeds can be affected by a range of technical and environmental factors. The speed at the property may be lower than that listed above. You can check the estimated speed and confirm availability to a property prior to purchasing on the broadband provider's website. Providers may increase charges. The information is provided and maintained by Decision Technologies Limited. **This is indicative only and based on a 2-person household with multiple devices and simultaneous usage. Broadband performance is affected by multiple factors including number of occupants and devices, simultaneous usage, router range etc. For more information speak to your broadband provider.
Map data ©OpenStreetMap contributors.






