4 bedroom detached house for sale
Spilsby Road , Partney, Spilsby

- PROPERTY TYPE
Detached
- BEDROOMS
4
- BATHROOMS
3
- SIZE
Ask agent
- TENUREDescribes how you own a property. There are different types of tenure - freehold, leasehold, and commonhold.Read more about tenure in our glossary page.
Freehold
Key features
- Substantial Detached House
- Four Double Bedrooms (one en-suite)
- Living & Dining Rooms
- Kitchen & Utility
- Family Bathroom, Shower Room & WC
- Double Garage, Driveway & Ample Parking
- Open Field Views from the Garden
- Desirable Rural Village Situation
- Edge of Lincolnshire Wolds designated an Area of Outstanding Natural Beauty
- Energy Performance Certificate: C
Description
Front Of Property - With open plan frontage, block paved driveway, areas of lawn, pathways to each side of the property and boundaries of brick wall and hedging.
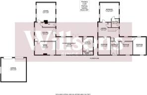
Entrance Hallway - 4.9m x 5.4m max (16'0" x 17'8" max) - 'L' shaped with wooden half glazed front door, radiator and tiled flooring.
Cloakroom / Wc - 3.3m x 1.2m max (10'9" x 3'11" max) - With WC, wash basin with tiled splashback, chimney breast wall, radiator, window to the rear of the property and tiled flooring.
Living Room - 5.0m x 5.0m (16'4" x 16'4") - Dual aspect room with open fire, hearth and mantle, radiator, windows to the front and rear of the property and carpeted flooring.
Dining Kitchen - 7.0m x 4.6m (22'11" x 15'1" ) - With wall and base units, sink with 1.5 bowls, mixer tap and drainer, integrated cooker, grill, ceramic hob and fridge, extractor hood, space and plumbing for dishwasher, tiled splashback, two radiators, ceiling fan, French door leading to rear patio, windows to the side of the property and tiled flooring.
Utility Room - 2.6m x 2.6m (8'6" x 8'6") - With base units, Belfast style sink, space and plumbing for washing machine, Boulter oil fired central heating boiler, radiator, loft hatch, window and door to the rear of the property and tiled flooring.
Shower Room - 2.6m x 0.9m (8'6" x 2'11" ) - With shower cubicle and direct feed shower, radiator, extractor fan and tiled flooring.
Dining Room - 2.5m x 3.5m (8'2" x 11'5" ) - Dual aspect room with chimney breast wall, LPG gas fire with decorative hearth and mantle, two radiators, double doors leading to the entrance hallway, windows to the front and side of the property and carpeted flooring.
First Floor Landing - 3.8m max x 5.4m max (12'5" max x 17'8" max) - With full height storage cupboard (0.8m x 0.7m), radiator, loft hatch, airing cupboard housing the immersion tank (1.1m x 0.5m), windows to the front and rear of the property and carpeted flooring.
Master Bedroom - 5.0m x 5.0m (16'4" x 16'4" ) - Dual aspect room with two radiators, windows to the front and rear of the property and carpeted flooring.
En Suite - 2.2m x 2.0m max (7'2" x 6'6" max) - With WC, wash basin vanity unit, shower enclosure with direct feed shower, extractor fan, fully tiled walls, window to the rear of the property and tiled flooring.
Bedroom Two - 4.6m x 3.1m (15'1" x 10'2" ) - With built-in wardrobes, radiator, window to the front of the property and carpeted flooring.
Family Bathroom - 3.5m x 2.1m (11'5" x 6'10" ) - With WC, wash basin, bath, shower cubicle with direct feed shower, extractor fan, radiator, fully tiled walls, window to the side of the property and tiled flooring.
Internal Hallway - 3.5m x 0.9m (11'5" x 2'11" ) - With loft access, radiator, window to the rear of the property and carpeted flooring.
Bedroom Three - 3.6m x 3.3m (11'9" x 10'9") - With radiator, window to the side of the property and carpeted flooring.
Bedroom Four - 3.4m x 4.7m (11'1" x 15'5" ) - Dual aspect room with two radiators, windows to the side of the property and carpeted flooring.
Double Garage - 6.26m x 6.6m (20'6" x 21'7") - With up and over doors, power and lighting, loft space, tap and mezzanine flooring.
Rear Garden - Set to lawns with borders of mature shrubs, plants and fruit trees, slabbed patio area, feature block paved and gravel stone circle, block paved decorative pathways, pergola archway, greenhouse and property boundaries of hedging and fencing.
Tenure & Possession - The property is Freehold with vacant possession upon completion.
Services - We understand that mains electricity, water and drainage are connected to the property. There is an oil fired central heating system installed at the property.
Local Authority - Council Tax Band E payable to Local Authority: East Lindsey District Council, The Hub, Mareham Road, Horncastle, Lincs, LN9 6PH. Tel: .
Energy Performance Certificate - The property has an energy rating of C . The full report is available from the agents or by visiting Reference Number: 9535-4324-5400-0705-9296
Viewing - Viewing is strictly by appointment with the Alford office at the address shown below.
Directions - From the A16 Louth to Boston road, on reaching "Partney Roundabout" the meeting of the A158 and A16, turn onto the A158 towards Skegness, then turn immediately left onto Sausthorpe Road. The property can be found after 485m on the left.
What3words///pillows.leave.surprises
Brochures
Spilsby Road , Partney, SpilsbyBrochure- COUNCIL TAXA payment made to your local authority in order to pay for local services like schools, libraries, and refuse collection. The amount you pay depends on the value of the property.Read more about council Tax in our glossary page.
- Band: E
- PARKINGDetails of how and where vehicles can be parked, and any associated costs.Read more about parking in our glossary page.
- Garage
- GARDENA property has access to an outdoor space, which could be private or shared.
- Yes
- ACCESSIBILITYHow a property has been adapted to meet the needs of vulnerable or disabled individuals.Read more about accessibility in our glossary page.
- Ask agent
Spilsby Road , Partney, Spilsby
Add an important place to see how long it'd take to get there from our property listings.
__mins driving to your place
Get an instant, personalised result:
- Show sellers you’re serious
- Secure viewings faster with agents
- No impact on your credit score
Your mortgage
Notes
Staying secure when looking for property
Ensure you're up to date with our latest advice on how to avoid fraud or scams when looking for property online.
Visit our security centre to find out moreDisclaimer - Property reference 33858501. The information displayed about this property comprises a property advertisement. Rightmove.co.uk makes no warranty as to the accuracy or completeness of the advertisement or any linked or associated information, and Rightmove has no control over the content. This property advertisement does not constitute property particulars. The information is provided and maintained by Willsons, Alford. Please contact the selling agent or developer directly to obtain any information which may be available under the terms of The Energy Performance of Buildings (Certificates and Inspections) (England and Wales) Regulations 2007 or the Home Report if in relation to a residential property in Scotland.
*This is the average speed from the provider with the fastest broadband package available at this postcode. The average speed displayed is based on the download speeds of at least 50% of customers at peak time (8pm to 10pm). Fibre/cable services at the postcode are subject to availability and may differ between properties within a postcode. Speeds can be affected by a range of technical and environmental factors. The speed at the property may be lower than that listed above. You can check the estimated speed and confirm availability to a property prior to purchasing on the broadband provider's website. Providers may increase charges. The information is provided and maintained by Decision Technologies Limited. **This is indicative only and based on a 2-person household with multiple devices and simultaneous usage. Broadband performance is affected by multiple factors including number of occupants and devices, simultaneous usage, router range etc. For more information speak to your broadband provider.
Map data ©OpenStreetMap contributors.






