Quarry Bank, Mansfield, NG18

- PROPERTY TYPE
Semi-Detached
- BEDROOMS
4
- BATHROOMS
2
- SIZE
Ask agent
- TENUREDescribes how you own a property. There are different types of tenure - freehold, leasehold, and commonhold.Read more about tenure in our glossary page.
Freehold
Key features
- No Upwards Chain
- Four Bedrooms
- Ensuite To Main Room
- Redecorated Throughout
- Private Rear Garden
- Cul De Sac Location
- Bigger Than You Would Expect
- Three Storey
Description
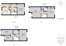
We are delighted to present this beautiful four bedroom, three storey semi-detached house, situated in a highly sought after location of The Quarry in Berry Hill offered with no upwards chain.
The property is newly, neutrally decorated throughout and having had new flooring and carpets in various rooms and comprises a kitchen with space for appliances, dining room with patio doors opening to the rear garden and w/c on the ground floor. The first floor has a generously sized lounge providing ample space for both relaxation and entertaining and a great sized main bedroom with an ensuite and built in wardrobes. On the top floor, there's three further bedrooms and the family bathroom. The property is situated in the corner of the street and gives a spacious wrap around garden with ample potential to make into that special place to relax which isnt over looked by neighbouring properties.
EPC rating: C. Tenure: Freehold,Entrance Hallway
1.14m x 5.46m (3'9" x 17'11")
Stepping through the front door into the hallway which has vinyl flooring, radiator and storage cupboard.
Kitchen
2.83m x 3.17m (9'3" x 10'5")
With wall and floor units in a light wood effect finish with light work top over. With inset one and half bowl stainless steel sink and drainer, double electric oven, four ring gas hob with extractor and stainless steel splash back and space for fridge freezer, washing machine and tumble dryer. With vinyl flooring, radiator and window to the front elevation.
Dining Room
4.08m x 2.57m (13'5" x 8'5")
With double doors opening to the garden, vinyl flooring and a radiator.
WC
1.76m x 0.99m (5'9" x 3'3")
With a wc and wash hand basin with tiled splash back, vinyl flooring and a radiator.
Stairs & Landing
With storage cupboard housing the newly fitted hot water cylinder and stairs to the 2nd floor.
Lounge
4.09m x 3.17m (13'5" x 10'5")
A great sized family space with two windows to the front elevation and a radiator.
Bedroom One
3.44m x 2.75m (11'3" x 9'0")
A double bedroom with two built in double door wardrobes, radiator and window to the rear elevation.
Ensuite
1.56m x 1.37m (5'1" x 4'6")
Fitted with a three piece suite comprising wash hand basin, wc and shower cubicle with mains fed shower and glass folding door. With vinyl flooring, radiator and an extractor
Stairs & Landing
Bedroom Two
4.06m x 2.73m (13'4" x 8'11")
The same size bedroom as the main bedroom with radiator and window to the rear elevation.
Bedroom Three
1.99m x 4.27m (6'6" x 14'0")
A good sized bedroom with radiator and window to the front elevation.
Bedroom Four
2m x 3.17m (6'7" x 10'5")
A perfect home office or nursery with radiator and window to the front elevation.
Bathroom
1.61m x 2.07m (5'3" x 6'9")
Fitted with a white three piece suite comprising bath, wash hand basin and wc with part tiled splash backs. With vinyl flooring, radiator and extractor.
Rear Garden
WOW A fantastic garden wrapping around the side of the property. Stepping out of the doors from the dining room onto a paved patio area which has a raised stoned area above. The lawned area wraps around the side of the property where there is space for a garden shed and access to the front of the property.
A fence and steps separate the raised area of the garden.
Parking
With parking for two cars to the front of the property
- COUNCIL TAXA payment made to your local authority in order to pay for local services like schools, libraries, and refuse collection. The amount you pay depends on the value of the property.Read more about council Tax in our glossary page.
- Band: C
- PARKINGDetails of how and where vehicles can be parked, and any associated costs.Read more about parking in our glossary page.
- Driveway
- GARDENA property has access to an outdoor space, which could be private or shared.
- Private garden
- ACCESSIBILITYHow a property has been adapted to meet the needs of vulnerable or disabled individuals.Read more about accessibility in our glossary page.
- Ask agent
Quarry Bank, Mansfield, NG18
Add an important place to see how long it'd take to get there from our property listings.
__mins driving to your place
Get an instant, personalised result:
- Show sellers you’re serious
- Secure viewings faster with agents
- No impact on your credit score
Your mortgage
Notes
Staying secure when looking for property
Ensure you're up to date with our latest advice on how to avoid fraud or scams when looking for property online.
Visit our security centre to find out moreDisclaimer - Property reference P1091. The information displayed about this property comprises a property advertisement. Rightmove.co.uk makes no warranty as to the accuracy or completeness of the advertisement or any linked or associated information, and Rightmove has no control over the content. This property advertisement does not constitute property particulars. The information is provided and maintained by Belvoir, Nottingham. Please contact the selling agent or developer directly to obtain any information which may be available under the terms of The Energy Performance of Buildings (Certificates and Inspections) (England and Wales) Regulations 2007 or the Home Report if in relation to a residential property in Scotland.
*This is the average speed from the provider with the fastest broadband package available at this postcode. The average speed displayed is based on the download speeds of at least 50% of customers at peak time (8pm to 10pm). Fibre/cable services at the postcode are subject to availability and may differ between properties within a postcode. Speeds can be affected by a range of technical and environmental factors. The speed at the property may be lower than that listed above. You can check the estimated speed and confirm availability to a property prior to purchasing on the broadband provider's website. Providers may increase charges. The information is provided and maintained by Decision Technologies Limited. **This is indicative only and based on a 2-person household with multiple devices and simultaneous usage. Broadband performance is affected by multiple factors including number of occupants and devices, simultaneous usage, router range etc. For more information speak to your broadband provider.
Map data ©OpenStreetMap contributors.




