
Alsop Street, Leek

- PROPERTY TYPE
Town House
- BEDROOMS
4
- BATHROOMS
2
- SIZE
Ask agent
- TENUREDescribes how you own a property. There are different types of tenure - freehold, leasehold, and commonhold.Read more about tenure in our glossary page.
Freehold
Description
Nestled in the heart of the town centre, this exceptional four bedroom townhouse seamlessly blends loft-style interiors with striking features that reflect the building's rich history. Offering extremely versatile accommodation across three floors, the property boasts spacious open-plan living, characterful architectural details, and an abundance of natural light throughout. A rare private parking space adds further appeal, making this a truly unique opportunity for stylish and convenient town centre living.
Denise White Estate Agent Comments - Set in the centre of the historic market town of Leek, this exceptional four-bedroom townhouse forms part of an impressive conversion of a former silk mill. Offering a rare opportunity to live in a piece of local history, the property expertly fuses industrial heritage with modern design through exposed brickwork, soaring ceilings, and signature arched steel-framed windows.
Step inside to discover a beautifully designed home offering flexible accommodation across three floors, all finished in a neutral palette that complements the building’s unique character. The ground floor features a spacious open-plan kitchen, dining, and living area—an ideal setting for entertaining. Large steel-framed doors open onto a private decked yard, seamlessly extending the living space outdoors. The kitchen is fitted with classic shaker-style cabinetry and integrated appliances, while a ground floor WC and useful storage complete the space.
On the first floor, two generous rooms are served by a stylish, modern shower room. The largest of these rooms is a standout feature, offering a dramatic double-height ceiling, private balcony, and a large mezzanine level above—perfect as a statement primary suite or an alternative living space to suit individual needs.
The second floor reveals further versatility, including a fourth spacious double bedroom with stunning arched windows that overlook the cobbled street below. The mezzanine level, accessed from the landing, is currently configured as a flexible room with bi-fold partitions—offering scope for a fourth bedroom, playroom, or dedicated home office. A contemporary family bathroom completes the upper level.
Externally, the property enjoys a private, decked rear yard and a highly sought-after private parking space, a rare asset in this vibrant town centre location.
This unique and versatile home is perfect for those who value architectural design, rich character, and urban convenience, all wrapped into one beautifully presented residence.
History - Set in the heart of Leek’s historic silk quarter, Albion Mill is believed to be the town’s first purpose-built silk mill. Constructed in 1820 and extended 1887, it is now designated a listed building of special historic and architectural importance. The mill sits within a Conservation Area, a popular and genteel residential neighbourhood of 19th century weavers’ cottages, and grander Edwardian millowners’ houses
This development provides a variety of 2 and 3 bedroomed town- houses, and 3-4 bedroomed loft-style houses with private gardens, all with allocated parking.
A follow-on phase of new-build 3 bedroomed houses will complete a striking blend of contemporary architecture and renovated buildings - transforming a once industrial area into desirable, modern living spaces.
Location - Known as the 'Queen of the Staffordshire Moorlands', Leek is a former textile town with a long and fascinating history.
The unspoilt town centre offers a refreshing alternative from modern shopping malls and has a wealth of independent shops, including former silk mills housing antique and reproduction pine centres, as well as traditional and contemporary furnishings.
Delicious local produce can be found in abundance at traditional butchers, bakers, greengrocers, delicatessens and cafes. Leek is also home to speciality producers of condiments, confectionery, preserves, wine, whisky, craft beers and the traditional Staffordshire oatcake.
Traditional markets abound, both indoors in the beautifully restored Victorian Butter Market and outdoors in the Market Place, offering everything from general goods, antiques and collectables to fine foods and special 'Totally Locally' Sunday markets. And when it comes to wining and dining, you can choose from a tempting selection of cafés, real ale pubs and restaurants.
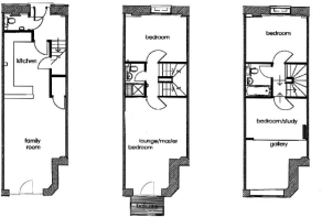
Entrance Hallway - Tiled flooring. Wall mounted radiator. Access to WC. Access to kitchen. Stairs to first floor accommodation. Inset spotlights.
Wc - 0.97 x 1.50 max (3'2" x 4'11" max ) - Tiled flooring. Vanity style wash handbasin. WC. Wall mounted radiator. Wall light.
Kitchen - 2.80 x 4.01 min (9'2" x 13'1" min ) - Tiled flooring. Wall mounted radiator. Range of wall and base units. Drainer style sink unit. Hotpoint gas hob. Integrated Hotpoint oven. Space for fridge freezer. Plumbing for washing machine. Inset spotlights. Open Plan into living area. ceiling lights.
Family Room - 5.90 x 3.81 max (19'4" x 12'5" max ) - Wooden style flooring. Wall mounted radiators. Access to outside. Access to storage cupboard. Open Plan access into kitchen. Inset spotlights.
First Floor Landing - Fitted carpet. Access to second floor accommodation. Inset spotlights.
Bedroom One - 3.82 x 5.97 max (12'6" x 19'7" max ) - Fitted carpet. Wall mounted radiators. Access to balcony. Double glazed steel windows. Inset spotlights. Ceiling lights.
Lounge / Main Bedroom - 2.70 x 1.15 (8'10" x 3'9" ) - Tiled flooring. Wall mounted radiator. WC. Vanity wash hand basin in beech worktop. Shower cubicle with shower. Spa-style beech faced wall panelling. Inset spotlights. Ceiling light.
Bedroom Two - 3.82 x 2.89 max (12'6" x 9'5" max ) - Fitted carpet. Wall mounted radiator. Wall lights. Inset spotlights. Single glazed steel windows with secondary glazing.
Second Floor Landing - Fitted carpet. Loft access. Inset spotlights
Bedroom Three - 2.93 x 3.82 max (9'7" x 12'6" max ) - Fitted carpet. Wall mounted radiator. Single glazed steel window with secondary glazing. Double glazed skylight window. Wall lights. Ceiling lights.
Gallery / Space Above First Floor Bedroom - 3.83 x 2.44 (12'6" x 8'0" ) - Fitted carpet. Wall mounted radiator. Gallery to double-height space with sliding/folding doors to form separate room. Double glazed skylight window. Ceiling lights.
Bathroom - 2.50 x 1.39 (8'2" x 4'6" ) - Tiled flooring. Wall mounted radiator. WC. Wash handbasin. Bath tub with shower attachment. Spa-style beech faced wall panelling. Inset spotlights. Ceiling light.
Outside - To the rear of the property, an enclosed decked yard can be accessed from the living area with gated access out to a private parking space.
Agent Notes - Tenure: Freehold
Services: All mains services connected
Council Tax: Staffordshire Moorlands Band C
No chain involved with the sale
Please Note - Please note that all areas, measurements and distances given in these particulars are approximate and rounded. The text, photographs and floor plans are for general guidance only. Denise White Estate Agents has not tested any services, appliances or specific fittings — prospective purchasers are advised to inspect the property themselves. All fixtures, fittings and furniture not specifically itemised within these particulars are deemed removable by the vendor.
About Your Agent - "In a world where you can be anything, be kind"
Denise is the director of Denise White Estate agents and has worked in the local area since 1999. Denise and the team can help and advise with any information on the local property market and the local area.
Denise White Estate Agents deal with all aspects of property including residential sales and lettings.
Please do get in touch with us if you need any help or advise.
We Won!!! - Local Estate Agent Wins Prestigious British Gold Award for Customer Service
Denise White Bespoke Estate Agents has been honored with the esteemed Gold Award 2024 from the British Property Awards for their exceptional customer service and extensive local marketing knowledge in Leek and its surrounding areas.
The British Property Awards, renowned for their inclusivity and comprehensive evaluation process, assess estate agents across the United Kingdom based on their customer service levels and understanding of the local market. Denise White Estate Agents demonstrated outstanding performance throughout the rigorous and independent judging period.
As part of the assessment, the British Property Awards mystery shopped 90% of estate agents nationwide, evaluating their telephone etiquette, responsiveness to emails, promptness in returning missed calls, and, crucially, their expertise in the local marketing area.
The Gold Award is a testament to the estate agents who consistently go above and beyond, delivering exceptional levels of customer service, focusing on their commitment and excellence within the local community.
Property To Sell Or Rent? - We can arrange an appointment that is convenient with yourself, we'll view your property and give you an informed FREE market appraisal and arrange the next steps for you.
You Will Need A Solicitor! - A good conveyancing solicitor can make or break your moving experience – we’re happy to recommend or get a quote for you, so that when the times comes, you’re ready to go.
Need A Mortgage Advisor? - Speak to us, we'd be more than happy to point you in the direction of a reputable adviser who works closely with ourselves.
Brochures
Alsop Street, LeekBrochure- COUNCIL TAXA payment made to your local authority in order to pay for local services like schools, libraries, and refuse collection. The amount you pay depends on the value of the property.Read more about council Tax in our glossary page.
- Band: C
- PARKINGDetails of how and where vehicles can be parked, and any associated costs.Read more about parking in our glossary page.
- Yes
- GARDENA property has access to an outdoor space, which could be private or shared.
- Yes
- ACCESSIBILITYHow a property has been adapted to meet the needs of vulnerable or disabled individuals.Read more about accessibility in our glossary page.
- Ask agent
Alsop Street, Leek
Add an important place to see how long it'd take to get there from our property listings.
__mins driving to your place
Get an instant, personalised result:
- Show sellers you’re serious
- Secure viewings faster with agents
- No impact on your credit score

Your mortgage
Notes
Staying secure when looking for property
Ensure you're up to date with our latest advice on how to avoid fraud or scams when looking for property online.
Visit our security centre to find out moreDisclaimer - Property reference 33868284. The information displayed about this property comprises a property advertisement. Rightmove.co.uk makes no warranty as to the accuracy or completeness of the advertisement or any linked or associated information, and Rightmove has no control over the content. This property advertisement does not constitute property particulars. The information is provided and maintained by Denise White Estate Agents, Leek. Please contact the selling agent or developer directly to obtain any information which may be available under the terms of The Energy Performance of Buildings (Certificates and Inspections) (England and Wales) Regulations 2007 or the Home Report if in relation to a residential property in Scotland.
*This is the average speed from the provider with the fastest broadband package available at this postcode. The average speed displayed is based on the download speeds of at least 50% of customers at peak time (8pm to 10pm). Fibre/cable services at the postcode are subject to availability and may differ between properties within a postcode. Speeds can be affected by a range of technical and environmental factors. The speed at the property may be lower than that listed above. You can check the estimated speed and confirm availability to a property prior to purchasing on the broadband provider's website. Providers may increase charges. The information is provided and maintained by Decision Technologies Limited. **This is indicative only and based on a 2-person household with multiple devices and simultaneous usage. Broadband performance is affected by multiple factors including number of occupants and devices, simultaneous usage, router range etc. For more information speak to your broadband provider.
Map data ©OpenStreetMap contributors.





