
Plot for sale
Beck Hill, Tealby, LN8
- PROPERTY TYPE
Plot
- BEDROOMS
3
- BATHROOMS
1
- SIZE
Ask agent
Key features
- Building Plot
- Sought After Village Location
- Planning for an Executive Home
- Rare Opportunity
- Entrance Hall, Living Room
- Kitchen Diner, Master Bedroom, Ensuite
- Cinema, Utility, Office
- Swimming Pool, Bar & Seating
- 2 Further Bedrooms & WC
- Viewing Advised
Description
EXCEPTIONAL BUILDING PLOT IN SOUGHT AFTER VILLAGE LOCATION. Rare opportunity to build an EXECUTIVE DETACHED FAMILY HOME.
PLANNING NUMBER - 143877. The planning is to build a new exceptional property. This is an extremely rare proposition to build within such a prominent and prestigious position within the conservation area of Tealby.
The building plot at Beck Hill, Tealby, offers a unique opportunity for buyers to construct their ideal home with two available build options .
Option one
A two story, 3 bedroom home.
Ideal for those seeking a budget-friendly, attractive build. Using high quality materials and focusing on
modern, cost-effective design elements. Maximising space and light while ensuring comfort and style.
Option two offers a premium build choice.
This option includes a basement level with pool, gym, cinema and entertainment area. Again featuring high-end materials and bespoke finishes for those looking to invest in luxury and custom detailing.
Both options are tailored to fit the scenic surroundings of Tealby, blending contemporary living with the area's charming countryside character.
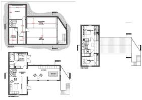
Detailed drawings have already been drawn up to build the Ground and First floor if this was a desired option. A quote of £165,000 has been obtained to build.
EPC rating: Exempt. Tenure: Freehold,Agents Notes
These particulars are for guidance only. Lovelle Estate Agency, their clients and any joint agents give notice that:- They have no authority to give or make representation/warranties regarding the property, or comment on the SERVICES, TENURE and RIGHT OF WAY of any property.
These particulars do not form part of any contract and must not be relied upon as statements or representation of fact. All measurements/areas are approximate. The particulars including photographs and plans are for guidance only and are not necessarily comprehensive.
Next Steps
Successful buyers will be required to complete anti-money laundering checks. Our partner, Hipla, will carry out the initial checks on our behalf. The current non-refundable cost is £24 inc. VAT per person. You’ll need to pay this and complete all checks before we can issue a memorandum of sale. The cost includes obtaining relevant data and any manual checks and monitoring that might be required.
Brochures
BrochureBeck Hill, Tealby, LN8
NEAREST STATIONS
Distances are straight line measurements from the centre of the postcode- Market Rasen Station3.4 miles
Notes
Disclaimer - Property reference P2162. The information displayed about this property comprises a property advertisement. Rightmove.co.uk makes no warranty as to the accuracy or completeness of the advertisement or any linked or associated information, and Rightmove has no control over the content. This property advertisement does not constitute property particulars. The information is provided and maintained by Lovelle Estate Agency, Market Rasen. Please contact the selling agent or developer directly to obtain any information which may be available under the terms of The Energy Performance of Buildings (Certificates and Inspections) (England and Wales) Regulations 2007 or the Home Report if in relation to a residential property in Scotland.
Map data ©OpenStreetMap contributors.






