
2 bedroom end of terrace house for sale
High Street, St. Mary Cray, Orpington

- PROPERTY TYPE
End of Terrace
- BEDROOMS
2
- BATHROOMS
1
- SIZE
Ask agent
- TENUREDescribes how you own a property. There are different types of tenure - freehold, leasehold, and commonhold.Read more about tenure in our glossary page.
Freehold
Key features
- Chain Free
- Two Double Bedrooms
- Space for Feature Fireplace
- Courtyard
- Close to Outstanding Grammer Schools
- Good Transport Links
- Close to Local Amenities
- EPC - D
Description
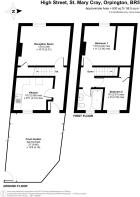
The ground floor consists of a spacious hallway, separate kitchen requiring fitting, a lounge benefiting from space for a feature fireplace and an integrated cupboard completes the ground floor. Upstairs are two bedrooms, one of which benefits from space for a walk-in-wardrobe and the other with an integrated cupboard, and a tiled family bathroom which services both the bedrooms. To the rear, the property offers a 50 ft garden with storage. There is also the benefit of a front courtyard, for outside space.
Some highly regarded schools are within proximity including some outstanding grammar schools in Orpington.
Located just (0.9 miles) from St Mary Cray Railway Station, and Orpington Station (1.7 miles) with direct connections to Waterloo, Charing Cross, Victoria and St Pancras and within walking distance of three bus routes offer convenient access to Orpington, Locksbottom, Sidcup and more. Local amenities include the Nugent Shopping centre. You will find four primary schools locally, the closest one being 0.1 Miles away being St Mary Cray Primary School.
Tenure - Freehold
London Borough of Bromley - Council Tax Band - C
Energy Efficiency Rating D
- COUNCIL TAXA payment made to your local authority in order to pay for local services like schools, libraries, and refuse collection. The amount you pay depends on the value of the property.Read more about council Tax in our glossary page.
- Band: C
- PARKINGDetails of how and where vehicles can be parked, and any associated costs.Read more about parking in our glossary page.
- Ask agent
- GARDENA property has access to an outdoor space, which could be private or shared.
- Yes
- ACCESSIBILITYHow a property has been adapted to meet the needs of vulnerable or disabled individuals.Read more about accessibility in our glossary page.
- Ask agent
High Street, St. Mary Cray, Orpington
Add an important place to see how long it'd take to get there from our property listings.
__mins driving to your place
Get an instant, personalised result:
- Show sellers you’re serious
- Secure viewings faster with agents
- No impact on your credit score
Your mortgage
Notes
Staying secure when looking for property
Ensure you're up to date with our latest advice on how to avoid fraud or scams when looking for property online.
Visit our security centre to find out moreDisclaimer - Property reference ORP250258. The information displayed about this property comprises a property advertisement. Rightmove.co.uk makes no warranty as to the accuracy or completeness of the advertisement or any linked or associated information, and Rightmove has no control over the content. This property advertisement does not constitute property particulars. The information is provided and maintained by Langford Russell, Orpington. Please contact the selling agent or developer directly to obtain any information which may be available under the terms of The Energy Performance of Buildings (Certificates and Inspections) (England and Wales) Regulations 2007 or the Home Report if in relation to a residential property in Scotland.
*This is the average speed from the provider with the fastest broadband package available at this postcode. The average speed displayed is based on the download speeds of at least 50% of customers at peak time (8pm to 10pm). Fibre/cable services at the postcode are subject to availability and may differ between properties within a postcode. Speeds can be affected by a range of technical and environmental factors. The speed at the property may be lower than that listed above. You can check the estimated speed and confirm availability to a property prior to purchasing on the broadband provider's website. Providers may increase charges. The information is provided and maintained by Decision Technologies Limited. **This is indicative only and based on a 2-person household with multiple devices and simultaneous usage. Broadband performance is affected by multiple factors including number of occupants and devices, simultaneous usage, router range etc. For more information speak to your broadband provider.
Map data ©OpenStreetMap contributors.





