High street retail property to lease
Fareham Retail Parade, Fareham, PO16 0PQ
- SIZE AVAILABLE
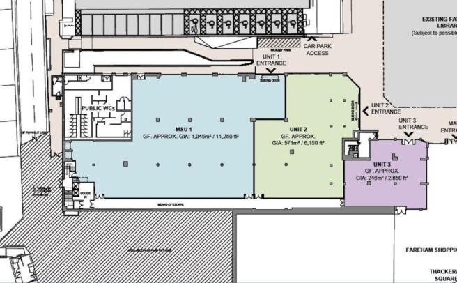
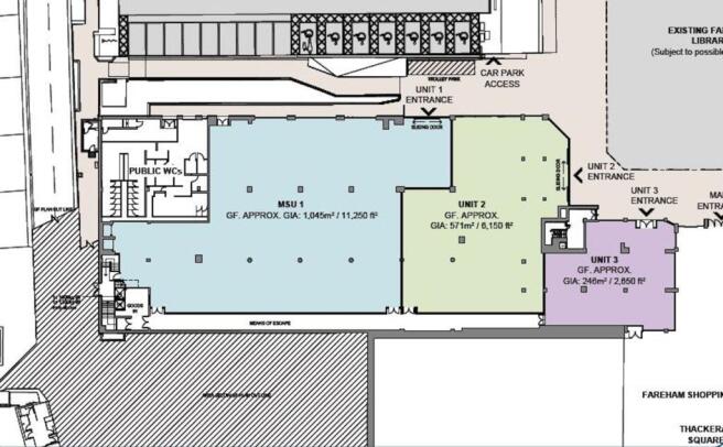
2,650-11,250 sq ft
246-1,045 sq m
- SECTOR
High street retail property to lease
Lease details
- Lease available date:
- Now
- Lease type:
- Long term
Key features
- Unit configurations available to suit occupier requirements
- Suitable for Retail and F&B uses
- Opposite new 136 space surface car park
- Servicing from share 1st floor dedicated loading bays
- Prominent signage to highly visible Osborn Road
Description
Fareham Shopping Centre is located in the heart of Fareham and adjacent to a new 136 space surface car park.
The Centre is surrounded by national retail occupiers, with Civic and NHS offices in proximity providing a large demographic of office workers, offering the chance to be part of an ongoing significant investment with plans for future regeneration.
Location
Fareham is located between Portsmouth and Southampton, south of the M27 motorway.
There is easy road network access including the M27, leading to car parking south of Osborn Road.
Viewings
Strictly by appointment through the joint sole agents.
Terms
The units are available on new leases for a term to be agreed.
VAT
Unless otherwise stated terms are strictly exclusive of Value Added Tax and interested parties must satisfy themselves as to the incidence of this tax in the subject case.
Legal Costs
Each party to be responsible for their own legal costs incurred in this transaction.
AML
In accordance with Anti-Money Laundering requirements, two forms of identification will be required from the purchaser or tenant and any beneficial owner together with evidence/proof identifying the source of funds being relied upon to complete the transaction.
Brochures
Fareham Retail Parade, Fareham, PO16 0PQ
NEAREST STATIONS
Distances are straight line measurements from the centre of the postcode- Fareham Station0.7 miles
- Portchester Station2.3 miles
- Swanwick Station4.2 miles
Notes
Disclaimer - Property reference 299867-2. The information displayed about this property comprises a property advertisement. Rightmove.co.uk makes no warranty as to the accuracy or completeness of the advertisement or any linked or associated information, and Rightmove has no control over the content. This property advertisement does not constitute property particulars. The information is provided and maintained by Vail Williams, Southampton. Please contact the selling agent or developer directly to obtain any information which may be available under the terms of The Energy Performance of Buildings (Certificates and Inspections) (England and Wales) Regulations 2007 or the Home Report if in relation to a residential property in Scotland.
Map data ©OpenStreetMap contributors.




