Nassau Business Park, Bahama Road, WA11 9FW
- SIZE AVAILABLE
5,214 sq ft
484 sq m
- SECTOR
Warehouse to lease
- USE CLASSUse class orders: B1 Business, B2 General Industrial and B8 Storage and Distribution
B1, B2, B8
Lease details
- Lease available date:
- Ask agent
Key features
- 150 kVA Power Supply
- Clear span warehouse
- 6.1m to apex / 3m to underside of haunch
- Electrically operated Level Access loading door 3.66m x 3.69m
- Immediate access to the A580 East Lancs Road Junction 23 (M6) within a 1.5miles
- Office/amenity block extending to 459 sqft
- Recently Refurbished
- Flexible Terms Available
- EPC B 38
- Immediately available for move in
Description
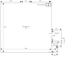
Unit 1 comprises an industrial unit, extending to 5,214 sq ft and benefits from the following specification;
150 kVA Power Supply
Electrically operated Level Access loading door 3.66m x 3.69m
3m to underside of hatch
6.1m to Apex
Clear Span Warehouse
Office/amenity blockextending to 459 sqft
Terms:
Unit is immediately available by way of a new Full Repairing and Insuring lease on terms to be agreed.
VAT
All prices are exclusive, but may be liable to VAT at the prevailing rate.
Legal Costs
Each party to bear their own legal costs.
Planning
B1,B2 and B8 uses.
Business Rates
We would recommend that interested parties make their own enquiries with the local authority.
EPC
B 38
Energy Performance Certificates
EPC 1Brochures
Nassau Business Park, Bahama Road, WA11 9FW
NEAREST STATIONS
Distances are straight line measurements from the centre of the postcode- Garswood Station1.0 miles
- Bryn Station1.9 miles
- Earlestown Station2.0 miles
Notes
Disclaimer - Property reference Haydock. The information displayed about this property comprises a property advertisement. Rightmove.co.uk makes no warranty as to the accuracy or completeness of the advertisement or any linked or associated information, and Rightmove has no control over the content. This property advertisement does not constitute property particulars. The information is provided and maintained by Warehouse Workspaces, Bolton. Please contact the selling agent or developer directly to obtain any information which may be available under the terms of The Energy Performance of Buildings (Certificates and Inspections) (England and Wales) Regulations 2007 or the Home Report if in relation to a residential property in Scotland.
Map data ©OpenStreetMap contributors.






