Andalucia, Malaga, Torreblanca, Spain
- PROPERTY TYPE
Town House
- BEDROOMS
4
- BATHROOMS
2
- SIZE
3,100 sq ft
288 sq m
Key features
- Features: Near Transport, Private Terrace, Fitted Wardrobes, Utility Room, Barbeque, Near Church, Solarium, Basement, Games Room
- Climate Control: Fireplace, Central Heating
- Views: Sea, Mountain, Country, Pool
- Setting: Close To Golf, Close To Port, Close To Shops, Close To Town, Close To Schools
- Pool: Communal
- Furniture: Fully Furnished
Description
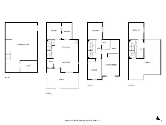
On the entrance floor opens a spacious living room with an atmospheric fireplace. There is a convenient connection from the dining room to the spacious kitchen. The middle floor has three comfortable bedrooms, one of which has its own bathroom. In addition, there is one more bedroom on the top floor of the apartment, which offers a wonderful sea view. From here you can also enjoy your own large roof terrace, sunshine and beautiful scenery.
The condominium has a large swimming pool where you can refresh yourself and relax. The location is excellent in the Torreblanca area, where you can find all the necessary services nearby. The train station is only a 5-minute walk away, and you can reach the beach in a few minutes. The excellent location and space attract tenants and enable a good rental income.
The possibility of a rent-to-buy agreement as well or the vendor offers a financing option at 2% interest.
Contact us and we will arrange a presentation time!
Brochures
More InformationBrochureAndalucia, Malaga, Torreblanca, Spain
NEAREST AIRPORTS
Distances are straight line measurements- Málaga(International)10.2 miles
- Gibraltar (North Front)(International)50.2 miles
- Jerez(International)81.4 miles
- Sevilla (San Pablo)(International)92.0 miles
Advice on buying Spanish property
Learn everything you need to know to successfully find and buy a property in Spain.
Notes
This is a property advertisement provided and maintained by IPP Spain (Iberian Peninsular Properties) SL, Fuengirola (reference R4990129) and does not constitute property particulars. Whilst we require advertisers to act with best practice and provide accurate information, we can only publish advertisements in good faith and have not verified any claims or statements or inspected any of the properties, locations or opportunities promoted. Rightmove does not own or control and is not responsible for the properties, opportunities, website content, products or services provided or promoted by third parties and makes no warranties or representations as to the accuracy, completeness, legality, performance or suitability of any of the foregoing. We therefore accept no liability arising from any reliance made by any reader or person to whom this information is made available to. You must perform your own research and seek independent professional advice before making any decision to purchase or invest in overseas property.



