The Promenade, Wellingborough
- PROPERTY TYPE
Land
- SIZE
Ask agent
Key features
- Land with granted planning permission
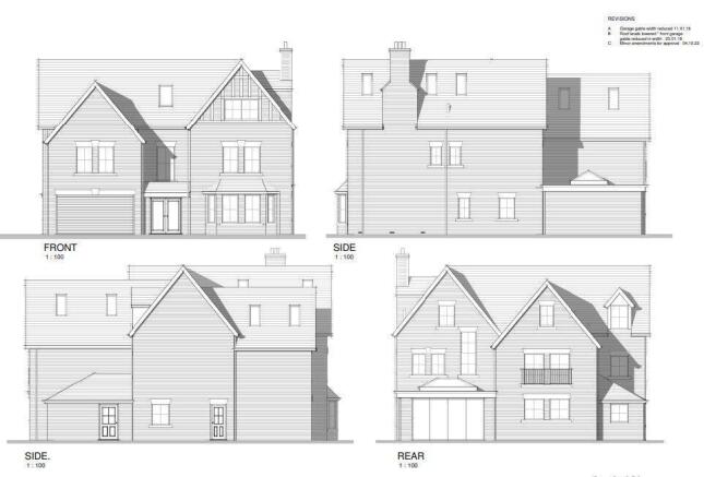
- Extensive Home spread over three floors
- Approx. just over 4000 sq. ft
- Prestigious location
Description
The Promenade comprises of very large Victorian houses, which originally would have been set upon wooded plots of up to one acre. Over the last 50 years, these plots have been divided and very many stunning, contemporary homes have been developed.
Full planning permission was granted by North Northamptonshire Council in 2022. The planning number is NW/22/00798/VAR. Please visit the councils planning portal to see full details of the proposed dwelling. Planning is for an extremely spacious property spanning across approx. just over 4000 sq.ft and spread over three floors
Approached via its own dedicated driveway, through the existing gates to number 26, (number 26 will create a new driveway separate to the new dwelling).
The plot measures 75.1m in length and 16.8m in width this measurement should be checked by any prospective purchaser and clarified prior to making a financial commitment. Very quietly situated with high quality properties to either side and Glamis Wood to the rear.
Please note: The successful purchaser will be responsible for erecting a high quality feather edged fence or wall on the boundary with the existing property.
All services will be available in the road at the front of the property, it may be possible for the building contractor to access the services from the existing property at 26, and this should be checked prior to the successful purchaser making any financial outlay.
Brochures
The Promenade, WellingboroughThe Promenade, Wellingborough
NEAREST STATIONS
Distances are straight line measurements from the centre of the postcode- Wellingborough Station1.2 miles
Notes
Disclaimer - Property reference 33879151. The information displayed about this property comprises a property advertisement. Rightmove.co.uk makes no warranty as to the accuracy or completeness of the advertisement or any linked or associated information, and Rightmove has no control over the content. This property advertisement does not constitute property particulars. The information is provided and maintained by Oscar James, Higham Ferrers. Please contact the selling agent or developer directly to obtain any information which may be available under the terms of The Energy Performance of Buildings (Certificates and Inspections) (England and Wales) Regulations 2007 or the Home Report if in relation to a residential property in Scotland.
Map data ©OpenStreetMap contributors.




