
3 bedroom semi-detached house for sale
Ambrosden, Oxfordshire, OX25

- PROPERTY TYPE
Semi-Detached
- BEDROOMS
3
- BATHROOMS
1
- SIZE
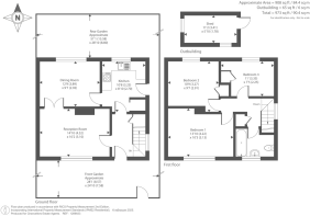
973 sq ft
90 sq m
- TENUREDescribes how you own a property. There are different types of tenure - freehold, leasehold, and commonhold.Read more about tenure in our glossary page.
Freehold
Key features
- Private Enclosed Rear Garden
- Generous Living Accommodation
- Parking Available on Street/Potential to Drop Kerb
- Overlooking Green Open Space
- Scope for Extending
- External Storage Shed
- Gas Central Heating
- No Onward Chain and Available Vacant
- 2.4 Miles to Bicester Village Railway Station
- Shop, Pub & Schools All Within Half a Mile
Description
Available to market is this three bedroom semi-detached freehold home which benefits from a generous plot and has in excess of 900sqft of internal accommodation. Set on a cul-de-sac in a semi-rural location but with ease of access to a variety of amenities. Viewings suggested to appreciate.
Property Details
The property is located in a quiet no through road with easy access to a local shop. There is no allocated parking but there is on-street parking. The sellers have previously rented a garage in a separate block from the local authority. The thriving market town of Bicester provides for all your everyday needs including; shops, amenities, bars, restaurants, nurseries, schools, doctors’ surgeries, dentists, banks, the world famous Bicester Village Shopping Outlet and many sporting, recreational and recruitment possibilities.
Brochures
More details from Chancellors- COUNCIL TAXA payment made to your local authority in order to pay for local services like schools, libraries, and refuse collection. The amount you pay depends on the value of the property.Read more about council Tax in our glossary page.
- Band: C
- PARKINGDetails of how and where vehicles can be parked, and any associated costs.Read more about parking in our glossary page.
- Yes
- GARDENA property has access to an outdoor space, which could be private or shared.
- Private garden
- ACCESSIBILITYHow a property has been adapted to meet the needs of vulnerable or disabled individuals.Read more about accessibility in our glossary page.
- Ask agent
Ambrosden, Oxfordshire, OX25
Add an important place to see how long it'd take to get there from our property listings.
__mins driving to your place
Get an instant, personalised result:
- Show sellers you’re serious
- Secure viewings faster with agents
- No impact on your credit score
Your mortgage
Notes
Staying secure when looking for property
Ensure you're up to date with our latest advice on how to avoid fraud or scams when looking for property online.
Visit our security centre to find out moreDisclaimer - Property reference 5788682. The information displayed about this property comprises a property advertisement. Rightmove.co.uk makes no warranty as to the accuracy or completeness of the advertisement or any linked or associated information, and Rightmove has no control over the content. This property advertisement does not constitute property particulars. The information is provided and maintained by Chancellors, Bicester. Please contact the selling agent or developer directly to obtain any information which may be available under the terms of The Energy Performance of Buildings (Certificates and Inspections) (England and Wales) Regulations 2007 or the Home Report if in relation to a residential property in Scotland.
*This is the average speed from the provider with the fastest broadband package available at this postcode. The average speed displayed is based on the download speeds of at least 50% of customers at peak time (8pm to 10pm). Fibre/cable services at the postcode are subject to availability and may differ between properties within a postcode. Speeds can be affected by a range of technical and environmental factors. The speed at the property may be lower than that listed above. You can check the estimated speed and confirm availability to a property prior to purchasing on the broadband provider's website. Providers may increase charges. The information is provided and maintained by Decision Technologies Limited. **This is indicative only and based on a 2-person household with multiple devices and simultaneous usage. Broadband performance is affected by multiple factors including number of occupants and devices, simultaneous usage, router range etc. For more information speak to your broadband provider.
Map data ©OpenStreetMap contributors.








