
Building Plots, off Studfield Drive, Loxley, Sheffield
- PROPERTY TYPE
Land
- BEDROOMS
4
- SIZE
Ask agent
Key features
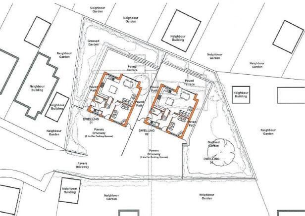
- Two Building Plots with Planning Permission
- Planning Reference 23/03090/OUT (Formerly PP/12492556)
- Proposed 4 Bedroom, 3 Bathroom Detached Houses
- Good Plot with Private Access off Studfield Drive
- Good Location for Amenities and Open Countryside
- Great Opportunity for a Developer to Build Two Lovely Family Homes
- For Further Information Contact the Banner Cross Office
Description
The plot is situated in a very sought after quiet location in an excellent residential suburb, and currently forms part of a very large rear garden to Number 70 Studfield Hill.
The site has Planning Permission for two, 4 Bedroom, 3 Bathroom Detached Dwellings.
Planning Reference 23/03090/OUT (Formerly PP/12492556) Dated 13 June 2024.
The location in Loxley is very sought after and this presents a rare opportunity, in a great location close to good local shops, schools and nearby walks and stunning open countryside.
Brochures
Building Plots, off Studfield Drive, Loxley, SheffBrochureBuilding Plots, off Studfield Drive, Loxley, Sheffield
NEAREST STATIONS
Distances are straight line measurements from the centre of the postcode- Malin Bridge Tram Stop0.8 miles
- Leppings Lane Tram Stop0.9 miles
- Middlewood Tram Stop0.9 miles
Notes
Disclaimer - Property reference 33880248. The information displayed about this property comprises a property advertisement. Rightmove.co.uk makes no warranty as to the accuracy or completeness of the advertisement or any linked or associated information, and Rightmove has no control over the content. This property advertisement does not constitute property particulars. The information is provided and maintained by Saxton Mee, Sheffield. Please contact the selling agent or developer directly to obtain any information which may be available under the terms of The Energy Performance of Buildings (Certificates and Inspections) (England and Wales) Regulations 2007 or the Home Report if in relation to a residential property in Scotland.
Map data ©OpenStreetMap contributors.








