Challoners Mews, Rottingdean

- PROPERTY TYPE
Cottage
- BEDROOMS
3
- BATHROOMS
3
- SIZE
1,846 sq ft
171 sq m
- TENUREDescribes how you own a property. There are different types of tenure - freehold, leasehold, and commonhold.Read more about tenure in our glossary page.
Freehold
Description
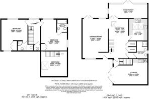
DRAWING ROOM
Comprising a most splendid double aspect through room to front and rear elevations, beamed ceiling, two radiators and double opening doors accessing rear garden.
DINING/RECEPTION ROOM
Beamed ceiling, two radiators, Velux window to rear elevation, two storage cupboards with light and shelving, and double doors accessing Conservatory.
KITCHEN
Double glazed window looking into Conservatory and garden beyond. Two Velux windows to rear elevation. beamed ceiling, range of base and wall units including work surfaces with cupboard and drawers below. radiators, 1½ bowl sink unit with mixer tap. Hotpoint double oven, four ring hob with extractor above, Integrated dishwasher, fridge freezer and tiled floor.
SHOWER ROOM
Obscure glass double glazed window, pedestal wash basin, close coupled w/c suite, shower cubicle, extractor fan, radiator and tiled flooring,
CONSERVATORY
Comprising a most delightful westerly aspect room overlooking rear garden, side elevation window, patio double glazed doors with matching double side screens opening onto patio and rear garden.
Staircase from Reception Room to:
FIRST FLOOR PART GALLERIED LANDING
Double glazed window to rear elevation, radiator, airing cupboard housing hot water cylinder with slatted shelves..
BEDROOM
Comprising a splendid principal through room, being double aspect to front elevation and most pleasant westerly rear aspect, two radiators, built in double wardrobe and two deep eaves storage cupboards, beamed ceiling and door to:
ENSUITE SHOWER ROOM
Velux window to front elevation, recessed ceiling spot lights, tiled flooring and walls, ladder radiator, modern suite with wash basin with mixer tap. Shower cubicle and close coupled w/c suite.
BEDROOM
Double aspect room to rear and side elevation, two radiators, fitted double wardrobe cupboard and eaves storage cupboard.
ENSUITE BATHROOM
Side elevation window, pedestal wash basin, w/c suite, radiator. Panelled bath with mixer taps and hand shower attachment. .
Staircase from Inner Hallway to:
BEDROOM
Velux window, beamed ceiling, strip flooring and radiator.
Outside:
Driveway to:
INTEGRAL GARAGE
Double opening garage doors, wall mounted gas fired boiler, plumbing and space for washing machine, sink unit. Cupboard housing consumer unit and meters. Water Tap. Internal door accessing Inner Hallway.
Additional Allocated PARKING SPACE
REAR GARDEN
A most splendid feature of the property with Westerly aspect, and laid to flagstone paved terrace and lawn. Established shrub bushes and flint boundary walls.
- COUNCIL TAXA payment made to your local authority in order to pay for local services like schools, libraries, and refuse collection. The amount you pay depends on the value of the property.Read more about council Tax in our glossary page.
- Ask agent
- PARKINGDetails of how and where vehicles can be parked, and any associated costs.Read more about parking in our glossary page.
- Yes
- GARDENA property has access to an outdoor space, which could be private or shared.
- Yes
- ACCESSIBILITYHow a property has been adapted to meet the needs of vulnerable or disabled individuals.Read more about accessibility in our glossary page.
- Ask agent
Energy performance certificate - ask agent
Challoners Mews, Rottingdean
Add an important place to see how long it'd take to get there from our property listings.
__mins driving to your place
Get an instant, personalised result:
- Show sellers you’re serious
- Secure viewings faster with agents
- No impact on your credit score

Your mortgage
Notes
Staying secure when looking for property
Ensure you're up to date with our latest advice on how to avoid fraud or scams when looking for property online.
Visit our security centre to find out moreDisclaimer - Property reference 5115867. The information displayed about this property comprises a property advertisement. Rightmove.co.uk makes no warranty as to the accuracy or completeness of the advertisement or any linked or associated information, and Rightmove has no control over the content. This property advertisement does not constitute property particulars. The information is provided and maintained by Ian Hyder & Company, Rottingdean. Please contact the selling agent or developer directly to obtain any information which may be available under the terms of The Energy Performance of Buildings (Certificates and Inspections) (England and Wales) Regulations 2007 or the Home Report if in relation to a residential property in Scotland.
*This is the average speed from the provider with the fastest broadband package available at this postcode. The average speed displayed is based on the download speeds of at least 50% of customers at peak time (8pm to 10pm). Fibre/cable services at the postcode are subject to availability and may differ between properties within a postcode. Speeds can be affected by a range of technical and environmental factors. The speed at the property may be lower than that listed above. You can check the estimated speed and confirm availability to a property prior to purchasing on the broadband provider's website. Providers may increase charges. The information is provided and maintained by Decision Technologies Limited. **This is indicative only and based on a 2-person household with multiple devices and simultaneous usage. Broadband performance is affected by multiple factors including number of occupants and devices, simultaneous usage, router range etc. For more information speak to your broadband provider.
Map data ©OpenStreetMap contributors.




