
Lower Road, Westerfield, Ipswich, Suffolk, IP6
- PROPERTY TYPE
Plot
- BEDROOMS
2
- BATHROOMS
2
- SIZE
Ask agent
Key features
- Rarely avaiable
- Backing onto a country park
- Located on a private track
- Planning ref DC/24/1060/FUL
- Parking for two cars
- Open plan kitchen/dining/living space
- En-suite to the main bedroom
- Separate shower room & cloakroom
- Popular village location
Description
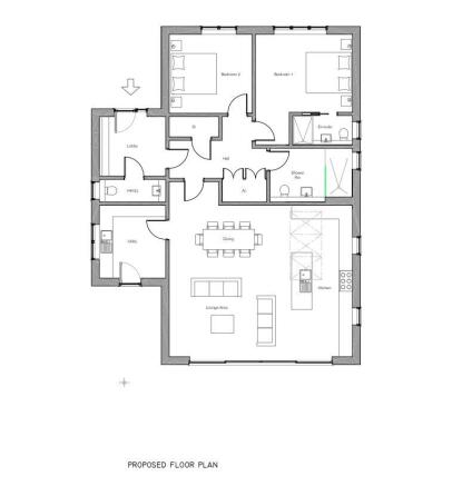
The proposed plans will consist of two double bedrooms, a contemporary open-plan kitchen/dining/sitting space, bathroom, en-suite and a utility room.
Westerfield is located to the north of Ipswich with good access to Ipswich and Westerfield railway stations. The property is set in a secluded position backing onto a country park and enjoying views over neighbouring equestrian facilities.
There is a provision for two parking spaces with a generous size plot on a private track in the sought-after village of Westerfield.
Details of the planning consent can be found on East Suffolk County website under planning application number DC/24/1060/FUL.
Directions
Using a Sat Nav with the postcode IP6 9AR and upon turning into Lower Road, from Westerfield Road, the plot can be found on the left hand side, sharing the entrance with Boradacres.
Brochures
ParticularsLower Road, Westerfield, Ipswich, Suffolk, IP6
NEAREST STATIONS
Distances are straight line measurements from the centre of the postcode- Westerfield Station0.3 miles
- Derby Road Station2.5 miles
- Ipswich Station2.5 miles
Notes
Disclaimer - Property reference IPS250358. The information displayed about this property comprises a property advertisement. Rightmove.co.uk makes no warranty as to the accuracy or completeness of the advertisement or any linked or associated information, and Rightmove has no control over the content. This property advertisement does not constitute property particulars. The information is provided and maintained by Fenn Wright, Ipswich. Please contact the selling agent or developer directly to obtain any information which may be available under the terms of The Energy Performance of Buildings (Certificates and Inspections) (England and Wales) Regulations 2007 or the Home Report if in relation to a residential property in Scotland.
Map data ©OpenStreetMap contributors.






