Commercial development for sale
Stortford Road, Dunmow, CM6
- PROPERTY TYPE
Commercial Development
- SIZE
Ask agent
Key features
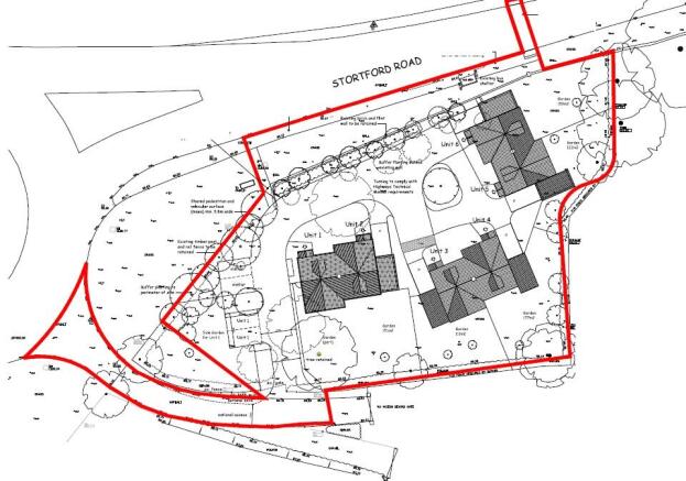
- Building Plot for 6 Units
- Close to Thriving Town
- Designed for Modern Living
- 2 En-Suite Bedrooms
- Open Plan Kitchen/Dining Room
- Five Units with Carports
Description
Folio: 15638 *DEVELOPMENT OPPORTUNITY* We are pleased to be able to offer this site for the construction of six semi-detached homes. Situated just on the outskirts of the town of Great Dunmow which offers an excellent selection of facilities including junior, infants and senior schooling, fabulous selection of shops, both mainstream and specialist traders, bars, restaurants, Tesco superstore. There is easy links via the A120 bypass to the M11. Mainline train stations can be found at Braintree, Bishop’s Stortford and Stansted Airport, all offering excellent services into Liverpool Street.
The site has planning permission for six 126 sq m three storey properties (1,350 sq ft). Five of the units have carports. It’s a small site with a shared driveway which leads on to a gated community of period barns.
Planning Reference
UTT/22/1727/FUL
Unit Size
126 sq m (1,356 sq ft)
Site Size
Approximately 0.775 acre.
Stortford Road, Dunmow, CM6
NEAREST STATIONS
Distances are straight line measurements from the centre of the postcode- Stansted Airport Station3.8 miles



Notes
Disclaimer - Property reference 29057286. The information displayed about this property comprises a property advertisement. Rightmove.co.uk makes no warranty as to the accuracy or completeness of the advertisement or any linked or associated information, and Rightmove has no control over the content. This property advertisement does not constitute property particulars. The information is provided and maintained by Wright & Co, Sawbridgeworth. Please contact the selling agent or developer directly to obtain any information which may be available under the terms of The Energy Performance of Buildings (Certificates and Inspections) (England and Wales) Regulations 2007 or the Home Report if in relation to a residential property in Scotland.
Map data ©OpenStreetMap contributors.




