3 bedroom terraced house for sale
Quintrell Close, Quintrell Downs, Newquay, Cornwall

- PROPERTY TYPE
Terraced
- BEDROOMS
3
- BATHROOMS
2
- SIZE
893 sq ft
83 sq m
- TENUREDescribes how you own a property. There are different types of tenure - freehold, leasehold, and commonhold.Read more about tenure in our glossary page.
Freehold
Key features
- 3 Bedrooms
- 2 Parking spaces
- Private garden
- Modern home
- Quiet close
- Sought after location
- In date electrics certificate
- Furniture available under separate negotiation
- Additional parking space shared with next door
- Chain free
Description
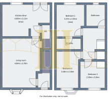
Upon entering the property, you are greeted by an entry hall with door leading to the living space and stairs leading to the first floor. The generous living room offers a bay window to the front and plenty of space for two sofas. From here, there is an internal hall with door to the ground floor WC and an archway leading through to the kitchen-diner. The WC has been finished to a high standard and also offers a hand basin. The kitchen diner is bright and spacious with a range of fitted units and appliances. The dining area offers space for a dining table and chairs, as well as French doors leading out onto a deck space in the rear garden.
Upstairs, the property has three spacious bedrooms and a family bathroom. The bathroom offers a bath with shower over, WC and hand basin. The master suite comprises a generous double bedroom with window to the rear and a generous shower room en-suite with large shower unit, heated towel rail, WC and hand basin. Bedroom two is a further double with space for wardrobes and window to the front. Bedroom three is a generous single bedroom with space for a wardrobe and window to the front.
Outside, the property offers two block paved parking spaces with access to an additional shared guest parking space. To the rear, the property offers an enclosed garden area with fenced borders. This garden is mainly laid to lawn with a garden shed and mature shrubs. There is also a deck area abutting the rear of the property ideal for entertaining and enjoying the afternoon and evening sun. For hotter days, there is a remote operated canopy to offer some shade.
- COUNCIL TAXA payment made to your local authority in order to pay for local services like schools, libraries, and refuse collection. The amount you pay depends on the value of the property.Read more about council Tax in our glossary page.
- Band: C
- PARKINGDetails of how and where vehicles can be parked, and any associated costs.Read more about parking in our glossary page.
- Yes
- GARDENA property has access to an outdoor space, which could be private or shared.
- Yes
- ACCESSIBILITYHow a property has been adapted to meet the needs of vulnerable or disabled individuals.Read more about accessibility in our glossary page.
- Ask agent
Quintrell Close, Quintrell Downs, Newquay, Cornwall
Add an important place to see how long it'd take to get there from our property listings.
__mins driving to your place
Get an instant, personalised result:
- Show sellers you’re serious
- Secure viewings faster with agents
- No impact on your credit score

Your mortgage
Notes
Staying secure when looking for property
Ensure you're up to date with our latest advice on how to avoid fraud or scams when looking for property online.
Visit our security centre to find out moreDisclaimer - Property reference HSA-88745503. The information displayed about this property comprises a property advertisement. Rightmove.co.uk makes no warranty as to the accuracy or completeness of the advertisement or any linked or associated information, and Rightmove has no control over the content. This property advertisement does not constitute property particulars. The information is provided and maintained by Hunkin Homes, Mevagissey. Please contact the selling agent or developer directly to obtain any information which may be available under the terms of The Energy Performance of Buildings (Certificates and Inspections) (England and Wales) Regulations 2007 or the Home Report if in relation to a residential property in Scotland.
*This is the average speed from the provider with the fastest broadband package available at this postcode. The average speed displayed is based on the download speeds of at least 50% of customers at peak time (8pm to 10pm). Fibre/cable services at the postcode are subject to availability and may differ between properties within a postcode. Speeds can be affected by a range of technical and environmental factors. The speed at the property may be lower than that listed above. You can check the estimated speed and confirm availability to a property prior to purchasing on the broadband provider's website. Providers may increase charges. The information is provided and maintained by Decision Technologies Limited. **This is indicative only and based on a 2-person household with multiple devices and simultaneous usage. Broadband performance is affected by multiple factors including number of occupants and devices, simultaneous usage, router range etc. For more information speak to your broadband provider.
Map data ©OpenStreetMap contributors.




