Guest House + Holiday/Owner Annexr - Flamborough Road, Bridlington

- PROPERTY TYPE
Semi-Detached
- BEDROOMS
7
- BATHROOMS
7
- SIZE
Ask agent
- TENUREDescribes how you own a property. There are different types of tenure - freehold, leasehold, and commonhold.Read more about tenure in our glossary page.
Freehold
Key features
- Prominent and popular Flamborough Road position.
- Handsome period semi-detached guest house.
- Successful and established business property / home.
- Versatile layout and options – 6 en-suite rooms PLUS 1 bed annexe/owner's accommodation).
- Low maintenance outdoor seating areas.
- Ideal lifestyle & business with scope to uplift.
Description
GENERAL DESCRIPTION
Dales & Shires Estate Agents are very pleased to offer for sale this excellent opportunity to purchase an established and successful guest house. Ideally located on Flamborough Road, very close to the North Beach and a few minutes walk into the centre of town. The charming and characterful semi-detached property provides versatile options, and currently comprises 6 en-suite letting rooms, plus a 1 bed annexe to the rear. Features include: attractive fireplaces, generous proportions, PVCU double glazing, gas central heating (2 modern boilers) and scope to modernise to personal tastes. We anticipate this property will appeal to a variety of buyers and we advise an early viewing to appreciate the location, space, value, character and opportunities for business/lifestyle/income.
PROPERTY SUMMARY
The accommodation includes spacious guest lounge/dining facilities (with bar), a kitchen, office/lounge, 6 en-suite letting bedrooms, store room and a separate annexe to the rear – ideal as owner's accommodation or a separate holiday let (with separate side access). Externally there are attractive and low maintenance seating areas to the front and rear.
LOCATION
This area of Flamborough Road is a popular and established location for residents and tourists. The North Beach is a very short walk away (300m), and Bridlington's town centre is just a few minutes' level walk, either via Flamborough Road or along the promenade. The town centre offers a wide variety of shops, services, restaurants, cafes and bars, and along with other large retail outlets in the town caters for almost every need. There is also easy access into the surrounding countryside, beautiful coastline and popular nearby villages, such as Flamborough, Sewerby and Bempton. Bridlington is one of the region's most popular coastal towns, ideal for holiday makers, families and those looking to retire by the sea. York, Scarborough, Filey, Hull, Beverley and Whitby are also within easy reach, where there is a further wide choice of shops, restaurants, bars and tourist attractions. There are excellent transport links, making this area a popular choice with commuters...
DIRECTIONS
Sat Nav location: YO15 2HU.
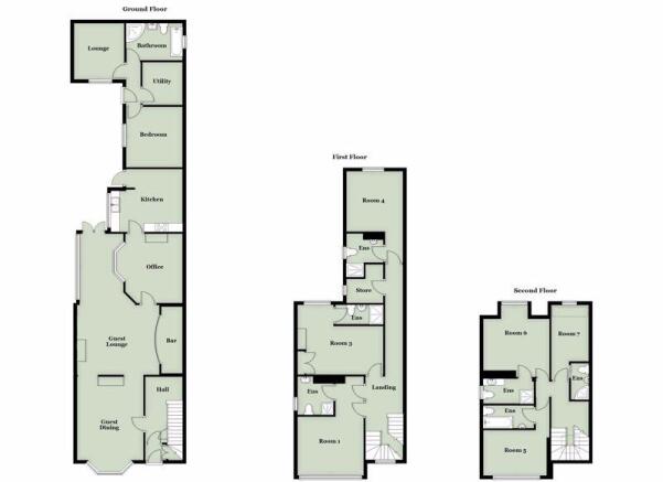
GROUND FLOOR
Reception Hallway
An ideal space for guests to arrive into, with space for guest information and leaflets. Staircase to the first floor. Door to:
Residents' Breakfast / Dining Room
16' 11'' x 15' 8'' (5.15m x 4.77m) into bay.
Spacious and bright dining space, with plenty of room for multiple tables and configurations. Large front bay window. Opening through to:
Residents' Lounge & Bar
19' 9'' x 13' 1'' (6.02m x 3.98m)
A comfortable and relaxing space for guests, with a focal period fireplace and an impressive built-in bar. For buyers who may not need this space for guests, it could easily be integrated into owner's accommodation, and the bar area could create a connecting hallway.
Office
13' 0'' x 12' 11'' (3.96m x 3.93m)
Spacious lounge sized room, ideal for admin and storage.
Kitchen
13' 5'' x 11' 9'' (4.09m x 3.58m)
Sized and equipped for commercial and domestic use.
FIRST FLOOR
Spacious and bright landing.
Room 1
15' 8'' x 12' 6'' (4.77m x 3.81m) inc en-suite.
Spacious double bedroom. En-suite. Front window.
Room 3 (there is no room 2)
16' 1'' x 12' 11'' (4.90m x 3.93m) inc en-suite.
Large double/twin room. En-suite. Rear window.
Room 4
11' 4'' x 10' 7'' (3.45m x 3.22m) approx.
Double bedroom. En-suite. Rear window.
Store Room
Ideal for linen and supplies. Previously a separate toilet. Side window.
SECOND FLOOR
Room 5
13' 11'' x 11' 0'' (4.24m x 3.35m) inc en-suite.
Double bedroom. En-suite bathroom. Front window.
Room 6
12' 6'' x 11' 4'' (3.81m x 3.45m)
Double bedroom. En-suite. Rear window.
Room 7
10' 8'' x 7' 0'' (3.25m x 2.13m)
Double bedroom. En-suite. Rear window.
REAR ANNEXE
A brick-built rear extension, creating an ideal self-contained annexe, holiday let or owner's accommodation – benefiting from independent separate gated side access.
Annexe Bedroom
11' 4'' x 10' 7'' (3.45m x 3.22m)
Double bedroom.
Annexe Bedroom / Lounge
10' 6'' x 9' 5'' (3.20m x 2.87m)
Double sized room.
Utility/Potential Kitchen
8' 0'' x 7' 6'' (2.44m x 2.28m)
Currently a utility, but could easily become a kitchen.
Bathroom
10' 7'' x 6' 11'' (3.22m x 2.11m)
Spacious bathroom with bath suite and separate shower cubicle.
OUTSIDE
To the front is an attractive low maintenance garden with seating areas. A gated side footpath leads to the rear yard and annexe. The rear yard is also low maintenance and ideal for seating and entertaining.
AGENT'S NOTES
To book a viewing, to ask any questions, or to make an offer, you are very welcome to contact us 7 days a week by phone or email. We are the exclusive selling agent for this property. Viewings are by appointment only. Some fixtures, fittings and business assets are available by separate negotiation, depending if the property is being purchased as a home, development or business opportunity.
LIKE OUR DETAILS? THINKING OF SELLING?
If you are selling a property, we would love to hear from you. We have over 25 years of experience in property sales, and can handle any type of residential property or land. We have particular expertise in selling period property, individual homes, niche, lifestyle and specialist properties (e.g. equestrian, Grade II listed, rural, guest houses, land and coastal). Please call us for a friendly initial chat about our services and how we can help with selling your own property.
WHERE WE COVER:
Dales & Shires is an independent, Yorkshire based estate agency. We are particularly experienced in selling period and village/rural properties, and we cover a large geographical area – selling successfully throughout all parts of Yorkshire and surrounding areas (including Cumbria, County Durham, Lincolnshire, Derbyshire, Lancashire and Northumberland). We can assist clients with properties in all types of location, from towns and cities, to villages, rural hamlets and coastal areas.
OUR SERVICE & FEES:
We provide a very personal and dedicated service to our clients. We offer free valuations and marketing advice, without a pushy sales pitch. We are straight talking, straight forward, and we provide clients with a pleasant and transparent service. Our sales fee is competitive (typically 1%+VAT) and we work on a 'no-sale no-fee' basis, with no long contract tie-ins and no hidden extra charges. Clients enjoy excellent marketing, successful sales and a friendly service from our very experienced and dedicated staff. Call us or visit our website dalesandshires.com for further details. To view this property, or to arrange a FREE valuation appraisal of your own property, you can contact us 7 days a week by phone or email.
Brochures
Property BrochureFull Details- COUNCIL TAXA payment made to your local authority in order to pay for local services like schools, libraries, and refuse collection. The amount you pay depends on the value of the property.Read more about council Tax in our glossary page.
- Band: A
- PARKINGDetails of how and where vehicles can be parked, and any associated costs.Read more about parking in our glossary page.
- Ask agent
- GARDENA property has access to an outdoor space, which could be private or shared.
- Yes
- ACCESSIBILITYHow a property has been adapted to meet the needs of vulnerable or disabled individuals.Read more about accessibility in our glossary page.
- Ask agent
Guest House + Holiday/Owner Annexr - Flamborough Road, Bridlington
Add an important place to see how long it'd take to get there from our property listings.
__mins driving to your place
Affordability
About Dales & Shires, Covering Yorkshire & Surrounding Areas
Windsor House, Cornwall Road, Harrogate, HG1 2PW


Get an instant, personalised result:
- Show sellers you’re serious
- Secure viewings faster with agents
- No impact on your credit score
Notes
Staying secure when looking for property
Ensure you're up to date with our latest advice on how to avoid fraud or scams when looking for property online.
Visit our security centre to find out moreDisclaimer - Property reference 12659736. The information displayed about this property comprises a property advertisement. Rightmove.co.uk makes no warranty as to the accuracy or completeness of the advertisement or any linked or associated information, and Rightmove has no control over the content. This property advertisement does not constitute property particulars. The information is provided and maintained by Dales & Shires, Covering Yorkshire & Surrounding Areas. Please contact the selling agent or developer directly to obtain any information which may be available under the terms of The Energy Performance of Buildings (Certificates and Inspections) (England and Wales) Regulations 2007 or the Home Report if in relation to a residential property in Scotland.
*This is the average speed from the provider with the fastest broadband package available at this postcode. The average speed displayed is based on the download speeds of at least 50% of customers at peak time (8pm to 10pm). Fibre/cable services at the postcode are subject to availability and may differ between properties within a postcode. Speeds can be affected by a range of technical and environmental factors. The speed at the property may be lower than that listed above. You can check the estimated speed and confirm availability to a property prior to purchasing on the broadband provider's website. Providers may increase charges. The information is provided and maintained by Decision Technologies Limited. **This is indicative only and based on a 2-person household with multiple devices and simultaneous usage. Broadband performance is affected by multiple factors including number of occupants and devices, simultaneous usage, router range etc. For more information speak to your broadband provider.
Map data ©OpenStreetMap contributors.




