
Marshmead Close, Clarendon, Salisbury, Wiltshire, SP5

- PROPERTY TYPE
Detached
- BEDROOMS
11
- BATHROOMS
4
- SIZE
Ask agent
- TENUREDescribes how you own a property. There are different types of tenure - freehold, leasehold, and commonhold.Read more about tenure in our glossary page.
Freehold
Description
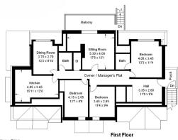
This spacious property offers eleven bedrooms (including one en suite), three bathrooms, two fitted kitchens, two communal sitting rooms, a utility room alongside a large first floor terrace that overlooks the west facing rear garden.
Further features include the pleasant rear garden which has a large lawned area, enclosed by timber fencing. Furthermore, there is off road driveway parking to front for a number of cars, PVC double glazing and gas central heating.
The property is almost fully occupied and achieving approx £80,000 p/a which provides a gross yield of 10.34% at the guide price.
Haven Court is conveniently situated in the hamlet of Clarendon on the south western outskirts of Salisbury and within easy reach of the historic city centre with its popular shopping area, theatre, cinema, restaurants and bars. The nearby village of Alderbury has a range of local amenities, including a shop, post office and local primary school, and it is only a five minute drive to the Tesco superstore on the edge of the city. The property is well situated for commuting into Salisbury and quick access to the A36 makes it an easy drive to the business centres on the south coast from Portsmouth and Southampton across to Bournemouth and Poole. The A303/M3 is about 24 miles to the north bringing the business centres along the M3/M25 corridors within reasonable driving distance. Salisbury has a main line station with fast, regular trains to London Waterloo.
The house is set well back from the lane behind a a timber fence and a gravel forecourt which provides ample parking. In addition, there is a west facing garden which lies to the rear of the house.
Council Tax Band G
All main services are available at the property. Gas fired radiator central heating and hot water.
Leave Salisbury city centre on Churchill Way (A36) turning left at the Salisbury College roundabout onto the A36 towards Southampton and passing the Tesco superstore on the left. As the Southampton Road turns into a dual carriage way you should move across into the right hand lane and take the first right turning into Clarendon Road towards Alderbury (there is no sign post). After another 50m take the first right turning into Marshmead Close and Haven Court is the second property on the left hand side.
11 Bedrooms
4 Bathrooms
2 Reception Rooms
Garden & Roof Terrace
Off Street Parking
Anti Money Laundering
Estate Agents are legally required to conduct Anti-Money Laundering (AML) checks on all parties involved in the sale or purchase of a property. W&W use a specialist service called "Guild 365" to perform these checks. This is a service offered to Estate Agents who are members of the Guild of Property Professionals. These checks must be completed before a property is listed for sale and as soon as an offer is accepted (before we send out the Memorandum of Sale). There is a non-refundable fee of £25 (plus VAT) per person. Note: W&W receive a portion of this fee to cover our administration costs in processing these legal checks.
Brochures
Particulars- COUNCIL TAXA payment made to your local authority in order to pay for local services like schools, libraries, and refuse collection. The amount you pay depends on the value of the property.Read more about council Tax in our glossary page.
- Band: G
- PARKINGDetails of how and where vehicles can be parked, and any associated costs.Read more about parking in our glossary page.
- Yes
- GARDENA property has access to an outdoor space, which could be private or shared.
- Yes
- ACCESSIBILITYHow a property has been adapted to meet the needs of vulnerable or disabled individuals.Read more about accessibility in our glossary page.
- Ask agent
Marshmead Close, Clarendon, Salisbury, Wiltshire, SP5
Add an important place to see how long it'd take to get there from our property listings.
__mins driving to your place
Get an instant, personalised result:
- Show sellers you’re serious
- Secure viewings faster with agents
- No impact on your credit score
Affordability
Notes
Staying secure when looking for property
Ensure you're up to date with our latest advice on how to avoid fraud or scams when looking for property online.
Visit our security centre to find out moreDisclaimer - Property reference SAL250148. The information displayed about this property comprises a property advertisement. Rightmove.co.uk makes no warranty as to the accuracy or completeness of the advertisement or any linked or associated information, and Rightmove has no control over the content. This property advertisement does not constitute property particulars. The information is provided and maintained by Woolley & Wallis, Salisbury. Please contact the selling agent or developer directly to obtain any information which may be available under the terms of The Energy Performance of Buildings (Certificates and Inspections) (England and Wales) Regulations 2007 or the Home Report if in relation to a residential property in Scotland.
*This is the average speed from the provider with the fastest broadband package available at this postcode. The average speed displayed is based on the download speeds of at least 50% of customers at peak time (8pm to 10pm). Fibre/cable services at the postcode are subject to availability and may differ between properties within a postcode. Speeds can be affected by a range of technical and environmental factors. The speed at the property may be lower than that listed above. You can check the estimated speed and confirm availability to a property prior to purchasing on the broadband provider's website. Providers may increase charges. The information is provided and maintained by Decision Technologies Limited. **This is indicative only and based on a 2-person household with multiple devices and simultaneous usage. Broadband performance is affected by multiple factors including number of occupants and devices, simultaneous usage, router range etc. For more information speak to your broadband provider.
Map data ©OpenStreetMap contributors.









