
3 bedroom detached house for sale
Epsom Avenue, Towcester, Northamptonshire, NN12 7LD

- PROPERTY TYPE
Detached
- BEDROOMS
3
- SIZE
Ask developer
- TENUREDescribes how you own a property. There are different types of tenure - freehold, leasehold, and commonhold.Read more about tenure in our glossary page.
Ask developer
Key features
- Dual aspect living room with garden access
- Separate utility room for laundry and extra storage with outside access
- Triple aspect open plan kitchen and dining room
- Handy storage cupboards in hallway and upstairs landing
- Large bedroom 1 with en suite
- Family bathroom with modern fixtures and fittings
- Downstairs cloakroom
Description
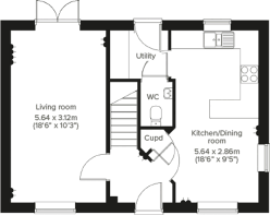
The Radstone divides its ground floor space between a spacious living room with French doors leading out to the garden and an open-plan kitchen/dining room. There's also a utility room with outside access, a WC and a storage cupboard. On the first floor, en-suite bedroom one has dual-aspect windows and bedrooms two and three share a lovely family bathroom. More storage on the landing is another useful feature.
Additional Information
- Tenure: Freehold
- Council tax band: Not made available by local authority until post-occupation
Parking - Single Garage
Room Dimensions
- Living room - 3.12 x 5.64 metre
- Kitchen/Dining room - 2.86 x 5.64 metre
- Bedroom One - 3.16 x 5.64 metre
- Bedroom Two - 2.62 x 3.41 metre
- Bedroom Three - 2.88 x 2.14 metre
- COUNCIL TAXA payment made to your local authority in order to pay for local services like schools, libraries, and refuse collection. The amount you pay depends on the value of the property.Read more about council Tax in our glossary page.
- Ask developer
- PARKINGDetails of how and where vehicles can be parked, and any associated costs.Read more about parking in our glossary page.
- Yes
- GARDENA property has access to an outdoor space, which could be private or shared.
- Yes
- ACCESSIBILITYHow a property has been adapted to meet the needs of vulnerable or disabled individuals.Read more about accessibility in our glossary page.
- Ask developer
Energy performance certificate - ask developer
- Choice of 2, 3, 4 and 5 bedroom homes<
- An abundance of green spaces close by
- Close to the vibrant market town of Towcester
- Excellent transport links<
Epsom Avenue, Towcester, Northamptonshire, NN12 7LD
Add an important place to see how long it'd take to get there from our property listings.
__mins driving to your place
Get an instant, personalised result:
- Show sellers you’re serious
- Secure viewings faster with agents
- No impact on your credit score
About the development
About Persimmon Homes
Welcome to The Furlongs, a charming collection of new homes for sale on the edge of the historic market town of Towcester, Northamptonshire. Nestled close to beautiful countryside, these new homes offer the perfect blend of peaceful rural living with excellent local amenities.
Located in the heart of Northamptonshire, Towcester is known for its friendly community and convenient transport links. With the A43 bypass nearby connecting directly to both the M40 motorway and the M1 motorway, commuting is straightforward whether you're travelling to London, Birmingham, or other key cities.
For those looking for new homes near Milton Keynes, The Furlongs puts you within easy reach of this vibrant town?s wide range of entertainment, shopping centres, and restaurants - just a short drive southeast. You?ll also be close to Northampton, a bustling town northeast of Towcester, offering additional shopping, dining, and leisure options.
If you?re a motorsport enthusiast, you?ll love knowing that the world-famous Silverstone Circuit is only 5 miles away, perfect for thrilling weekends of racing and events.
Whether you're searching for new family homes in Towcester, quiet countryside properties in Northamptonshire, or homes close to Silverstone racing circuit, The Furlongs offers a fantastic opportunity to settle in a welcoming community with great access to everything you need.
This development offers the following schemes:
- New Build Boost
- Deposit Boost: 5% Deposit Contribution Scheme
- Part Exchange your Home
- Own New Rate Reducer Scheme
- Home Change
- Deposit Unlock
- Armed Forces, Key Workers & NHS Discount Scheme
- Bank of Mum and Dad Scheme: About
- Early Bird Scheme
Schemes are available on selected plots only, subject to status, terms and conditions apply. Contact the development for latest information.
Your mortgage
Notes
Staying secure when looking for property
Ensure you're up to date with our latest advice on how to avoid fraud or scams when looking for property online.
Visit our security centre to find out moreDisclaimer - Property reference 3_1052. The information displayed about this property comprises a property advertisement. Rightmove.co.uk makes no warranty as to the accuracy or completeness of the advertisement or any linked or associated information, and Rightmove has no control over the content. This property advertisement does not constitute property particulars. The information is provided and maintained by Persimmon Homes. Please contact the selling agent or developer directly to obtain any information which may be available under the terms of The Energy Performance of Buildings (Certificates and Inspections) (England and Wales) Regulations 2007 or the Home Report if in relation to a residential property in Scotland.
*This is the average speed from the provider with the fastest broadband package available at this postcode. The average speed displayed is based on the download speeds of at least 50% of customers at peak time (8pm to 10pm). Fibre/cable services at the postcode are subject to availability and may differ between properties within a postcode. Speeds can be affected by a range of technical and environmental factors. The speed at the property may be lower than that listed above. You can check the estimated speed and confirm availability to a property prior to purchasing on the broadband provider's website. Providers may increase charges. The information is provided and maintained by Decision Technologies Limited. **This is indicative only and based on a 2-person household with multiple devices and simultaneous usage. Broadband performance is affected by multiple factors including number of occupants and devices, simultaneous usage, router range etc. For more information speak to your broadband provider.
Map data ©OpenStreetMap contributors.






