Balearic Islands, Mallorca, Alcudia, Spain
- PROPERTY TYPE
Village House
- BEDROOMS
2
- BATHROOMS
2
- SIZE
1,550 sq ft
144 sq m
Key features
- 5-10 minutes to Golf Course
- 5-10 minutes to shops
- Accessible all year round
- Air Conditioning Hot/Cold
- Alarm System
- Aluminium windows
- Aluminium Carpentry
- Built to High Standards
- Climalit windows
- Close to all Amenities
Description
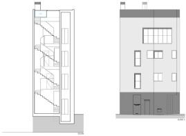
The house has rooms distributed across four floors, each of which can be accessed by both stairs and lift making it an ideal choice for all ages.
Once inside you will find a garage and a laundry room which are located on the ground floor.
The first floor is dedicated to the master bedroom, complete with en suite bathroom.
The second floor boasts a modern, fully equipped kitchen, another bathroom, and a multifunctional area that can be adapted to suit your requirements, potentially serving as an extra bedroom or an office.
The top floor is home to a spacious living room that provides direct access to a private roof terrace, complete with a plunge pool and an ideal setting for relaxation.
Contact us for more information or to view this fantastic sea view house located in prestigious Puerto Alcudia
Alcúdia Bay is the largest bay in the north. The actual resort of Alcúdia starts from the seaside town of Puerto Alcúdia and stretches 7 km along the fine white sand beach of Alcúdia Bay. Puerto Alcúdia boasts a fantastic yacht marina offering excellent nautical facilities and super restaurants perfect to enjoy an unforgettable dinner on the waterfront! If you are a passionate golfer, one of the best golf courses in Europe: Alcúdia´s golf course, called Alcanada Golf is situated on the tip of the peninsula, smack on the seafront. Alcanada Golf has already topped listings as Europe´s best.
For additional information contact BALEARIC PROPERTIES ESTATE AGENTS MALLORCA by email or call the Pollensa Office (+34) 971 53 29 84 - See more details about other houses for sale in Puerto Alcudia or find out more about buying a home in Puerto Alcudia.
"Balearic Properties has been in business on the Balearic Islands for many, many years. The company headquarters is on Mallorca and over the years, we have built up an unparalleled portfolio of properties to suit every budget, by means of which we have already successfully helped 10.000 clients find their new home on the Balearic Islands. Our project management and construction companies offer a unique range of luxury, turn-key villas to suit all individual and personal needs. We also offer over 200 holiday villas that guarantee our clients an unforgettable holiday experience.
Balearic Properties is the exclusive associate of Savills in Mallorca. The company offers clients a vast experience of over 20 years in the local property market. Our portfolio includes all sorts of modern villas, country homes, and trendy new developments in the best areas of Mallorca. Balearic Properties also specialises in waterfront properties and large estates. The company offers a complete, all-around property service including property management, holiday lettings, project management and legal services."
Balearic Islands, Mallorca, Alcudia, Spain
NEAREST AIRPORTS
Distances are straight line measurements- Palma de Mallorca(International)29.8 miles
- Menorca(International)57.6 miles
Advice on buying Spanish property
Learn everything you need to know to successfully find and buy a property in Spain.
Notes
This is a property advertisement provided and maintained by Savills Global Residential Property, Partnering in Balearic Islands (reference 208670_ALC20686) and does not constitute property particulars. Whilst we require advertisers to act with best practice and provide accurate information, we can only publish advertisements in good faith and have not verified any claims or statements or inspected any of the properties, locations or opportunities promoted. Rightmove does not own or control and is not responsible for the properties, opportunities, website content, products or services provided or promoted by third parties and makes no warranties or representations as to the accuracy, completeness, legality, performance or suitability of any of the foregoing. We therefore accept no liability arising from any reliance made by any reader or person to whom this information is made available to. You must perform your own research and seek independent professional advice before making any decision to purchase or invest in overseas property.





