Apartment 13, Cautley House, Hythe, Kent

- PROPERTY TYPE
Penthouse
- BEDROOMS
3
- BATHROOMS
2
- SIZE
1,872 sq ft
174 sq m
Key features
- Penthouse apartment
- Three double bedrooms
- Gated under croft parking
- Large balcony & terrace enjoying stunning panoramic sea views
- Italian porcelain tiling to bathrooms
- Underfloor heating
Description
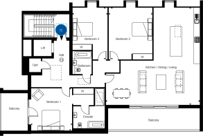
Apartment 13 is an exceptional penthouse residence offering luxurious coastal living with beautiful sea views. Step into a spacious hallway that sets the tone for the elegant interiors. The open-plan living and kitchen area?the true heart of the residence?boasts a large terrace showcasing the panoramic sea views. The elegant primary bedroom features a sleek en-suite shower room and direct access to a private balcony overlooking the sea. The second bedroom & third bedroom are generously sized offering versatility and comfort. Completing this remarkable home is a stylish main bathroom, thoughtfully designed with both a bath and shower for ultimate relaxation. A further premium feature of this penthouse is its direct lift access, providing both exclusivity and convenience.
THE DEVELOPMENT
Nestled in one of Kent’s most sought-after Cinque Ports, Cautley House is an exclusive collection of 14 one- and two-bedroom apartments, along with two luxurious three-bedroom penthouses. Designed for modern sophistication, these homes feature:
• Sleek kitchens with quartz worktops & premium Neff appliances
• Designer bathrooms with Italian porcelain tiling
• Fitted wardrobes & underfloor heating for ultimate comfort
• Private under croft allocated parking & secure bicycle storage
• Lift access to all floors & landscaped gardens
With its classic brick façade and contemporary interiors, Cautley House is a harmonious blend of style and function. The thoughtfully designed orientation maximizes sea-facing views, while gated under croft parking maintains a clean, refined streetscape. Plus, electric vehicle charging points make sustainable living effortless.
LOCATION
Ideally situated just a short walk from the Royal Military Canal and Hythe’s scenic seafront, Cautley House offers the best of both worlds—peaceful coastal living with easy access to essential amenities.
• Hythe town centre is just minutes away, offering independent boutiques, supermarkets (Aldi, Iceland, Sainsbury’s), and essential services including doctors, dentists, and a library.
• Excellent primary and secondary schools are nearby, including top-rated grammar schools in Folkestone.
• Golf enthusiasts will love the proximity to Hythe Imperial, Sene Valley, and Etchinghill golf courses.
• Effortless commuting – Reach London St. Pancras in just 50 minutes via High-Speed Rail from Folkestone West.
• Canterbury & Folkestone are within easy reach, offering shopping, entertainment, and cultural attractions, including the Marlowe Theatre and Leas Cliff Hall.
- COUNCIL TAXA payment made to your local authority in order to pay for local services like schools, libraries, and refuse collection. The amount you pay depends on the value of the property.Read more about council Tax in our glossary page.
- Ask agent
- PARKINGDetails of how and where vehicles can be parked, and any associated costs.Read more about parking in our glossary page.
- Yes
- GARDENA property has access to an outdoor space, which could be private or shared.
- Ask agent
- ACCESSIBILITYHow a property has been adapted to meet the needs of vulnerable or disabled individuals.Read more about accessibility in our glossary page.
- Ask agent
Energy performance certificate - ask agent
Apartment 13, Cautley House, Hythe, Kent
Add an important place to see how long it'd take to get there from our property listings.
__mins driving to your place
Get an instant, personalised result:
- Show sellers you’re serious
- Secure viewings faster with agents
- No impact on your credit score
Your mortgage
Notes
Staying secure when looking for property
Ensure you're up to date with our latest advice on how to avoid fraud or scams when looking for property online.
Visit our security centre to find out moreDisclaimer - Property reference LDW-59805413. The information displayed about this property comprises a property advertisement. Rightmove.co.uk makes no warranty as to the accuracy or completeness of the advertisement or any linked or associated information, and Rightmove has no control over the content. This property advertisement does not constitute property particulars. The information is provided and maintained by Rogans Estate Agents, Hythe. Please contact the selling agent or developer directly to obtain any information which may be available under the terms of The Energy Performance of Buildings (Certificates and Inspections) (England and Wales) Regulations 2007 or the Home Report if in relation to a residential property in Scotland.
*This is the average speed from the provider with the fastest broadband package available at this postcode. The average speed displayed is based on the download speeds of at least 50% of customers at peak time (8pm to 10pm). Fibre/cable services at the postcode are subject to availability and may differ between properties within a postcode. Speeds can be affected by a range of technical and environmental factors. The speed at the property may be lower than that listed above. You can check the estimated speed and confirm availability to a property prior to purchasing on the broadband provider's website. Providers may increase charges. The information is provided and maintained by Decision Technologies Limited. **This is indicative only and based on a 2-person household with multiple devices and simultaneous usage. Broadband performance is affected by multiple factors including number of occupants and devices, simultaneous usage, router range etc. For more information speak to your broadband provider.
Map data ©OpenStreetMap contributors.




