4 bedroom detached house for sale
The Spinney, Easington Village, Peterlee, Durham, SR8 3NX

- PROPERTY TYPE
Detached
- BEDROOMS
4
- BATHROOMS
2
- SIZE
Ask agent
- TENUREDescribes how you own a property. There are different types of tenure - freehold, leasehold, and commonhold.Read more about tenure in our glossary page.
Freehold
Key features
- 4 Bed Detached Home
- Turn Key
- New Fitted Kitchen
- Garage & 3 Vehicle Parking
- 2 Reception Rooms
- Village Location
- Westerly Landscaped Garden
Description
This beautifully maintained and spacious property is perfect for modern family living, featuring a brand-new breakfasting kitchen, newly fitted family bathroom, and a stylishly refurbished master en-suite.
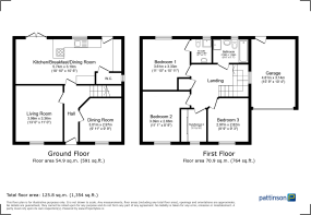
Ground Floor:
The property welcomes you with a bright and spacious lounge, complemented by a second versatile reception room—ideal as a formal dining area, playroom, or home office. The heart of the home is the impressive newly fitted kitchen/diner, showcasing sleek high-gloss wall and base units, a breakfast bar for casual dining, and a full range of integrated appliances including a gas hob, electric oven, and microwave. A separate utility area and a convenient downstairs WC complete the ground floor.
First Floor:
The first floor offers a generous master bedroom with a newly upgraded en-suite shower room featuring a WC, hand basin, and enclosed shower. There are two further double bedrooms, a well-sized single bedroom, and a luxurious new 4 piece family bathroom with a WC, hand basin, bath, and separate enclosed shower cubicle.
External:
Outside, a paved driveway provides off-street parking for up to four vehicles and leads to a single garage equipped with an EV charger. To the rear, a private, westerly-facing landscaped garden with a patio area offers the perfect setting for outdoor dining and relaxation.
Ideally positioned close to local schools, shops, and transport links, this fantastic home also benefits from gas central heating and double glazing throughout.
Viewing is highly recommended to fully appreciate what this superb home has to offer. To arrange your appointment, please contact Pattinson Estate Agents.
Council Tax Band: E
Tenure: Freehold
External Front
Block paved driveway with ample parking for up to 4 vehicles plus the single garage to side with Ev charger installed.
Entrance Hallway
Through external front glazed door leading into the hallway. With laminate flooring, radiator, and stairs leading to the first floor.
Lounge
3.29m x 4.23m
Fitted carpeted flooring, double glazed bay window to the front aspect, coving to the ceiling and TV point.
Second Reception
3.12m x 3.37m
With a double glazed bay window to the front aspect, carpeted floor, radiator, coving to the ceiling.
Kitchen Dining
7.22m x 2.98m
New kitchen which is fitted with a range of wall and base units with complementing top work surfaces, single sink unit, built in dish washer, plumbed for a washing machine and vented for a tumble dryer, built in induction hob with electric oven, breakfast bar area, with laminate flooring, in-built storage areas and a door leading to the rear external.
Dining Area
Open plan to the kitchen, laminate flooring, double glazed French doors to the rear aspect and radiator.
Downstairs W/c
With low level WC, hand wash basin, radiator and vinyl flooring.
1st Floor:
Landing
With a carpeted flooring, spotlights to the ceiling, storage cupboard and access into the fully boarded loft with electricity points.
Master Bedroom
3.61m x 4.3m
With a double glazed window to the rear aspect, radiator, carpeted flooring, TV point, with door leading to the en-suite.
Master En-Suite
3 piece suite comprising:- low level WC, shower cubicle, wash hand basin, radiator and a double glazed window with part tiled walls.
Bedroom Two
3.57m x 2.68m
The second double bedroom with double glazed window to the front aspect, TV point, carpeted flooring and coving to the ceiling.
Bedroom Three
2.73m x 3.19m
The third double bedroom with double glazed window to the front aspect, fitted wardrobes, fitted cupboards, TV point, carpeted flooring and coving to the ceiling.
Bedroom Four
2.37m x 2.58m
Single bedroom with a double glazed window to the front aspect, radiator, carpeted flooring, with built in storage cupboards and desk, with coving to the ceiling.
Family Bathroom
With a new four piece suite briefly comprising:- low level WC, panelled bath, shower cubicle, wash hand basin, heated towel radiator, flooring and panelled walls, with a double glazed window to the rear aspect.
External Rear
To the rear of the property there is a fully enclosed walled, westerly facing landscaped garden with a lawn, patio and mature boarders. Access from the rear to the garage.
Brochures
Brochure- COUNCIL TAXA payment made to your local authority in order to pay for local services like schools, libraries, and refuse collection. The amount you pay depends on the value of the property.Read more about council Tax in our glossary page.
- Band: E
- PARKINGDetails of how and where vehicles can be parked, and any associated costs.Read more about parking in our glossary page.
- Yes
- GARDENA property has access to an outdoor space, which could be private or shared.
- Yes
- ACCESSIBILITYHow a property has been adapted to meet the needs of vulnerable or disabled individuals.Read more about accessibility in our glossary page.
- Ask agent
Energy performance certificate - ask agent
The Spinney, Easington Village, Peterlee, Durham, SR8 3NX
Add an important place to see how long it'd take to get there from our property listings.
__mins driving to your place
Get an instant, personalised result:
- Show sellers you’re serious
- Secure viewings faster with agents
- No impact on your credit score
Your mortgage
Notes
Staying secure when looking for property
Ensure you're up to date with our latest advice on how to avoid fraud or scams when looking for property online.
Visit our security centre to find out moreDisclaimer - Property reference 484407. The information displayed about this property comprises a property advertisement. Rightmove.co.uk makes no warranty as to the accuracy or completeness of the advertisement or any linked or associated information, and Rightmove has no control over the content. This property advertisement does not constitute property particulars. The information is provided and maintained by Pattinson Estate Agents, Peterlee. Please contact the selling agent or developer directly to obtain any information which may be available under the terms of The Energy Performance of Buildings (Certificates and Inspections) (England and Wales) Regulations 2007 or the Home Report if in relation to a residential property in Scotland.
*This is the average speed from the provider with the fastest broadband package available at this postcode. The average speed displayed is based on the download speeds of at least 50% of customers at peak time (8pm to 10pm). Fibre/cable services at the postcode are subject to availability and may differ between properties within a postcode. Speeds can be affected by a range of technical and environmental factors. The speed at the property may be lower than that listed above. You can check the estimated speed and confirm availability to a property prior to purchasing on the broadband provider's website. Providers may increase charges. The information is provided and maintained by Decision Technologies Limited. **This is indicative only and based on a 2-person household with multiple devices and simultaneous usage. Broadband performance is affected by multiple factors including number of occupants and devices, simultaneous usage, router range etc. For more information speak to your broadband provider.
Map data ©OpenStreetMap contributors.





