3 bedroom end of terrace house for sale
Russell Road, Mitcham

- PROPERTY TYPE
End of Terrace
- BEDROOMS
3
- BATHROOMS
1
- SIZE
927 sq ft
86 sq m
- TENUREDescribes how you own a property. There are different types of tenure - freehold, leasehold, and commonhold.Read more about tenure in our glossary page.
Freehold
Key features
- NO FORWARD CHAIN
- TWO RECEPTION ROOMS
- POTENTIAL TO EXTEND SUBJECT TO PLANNING CONSENTS
- GARAGE WITH DRIVE WAY TO SIDE
- POPULAR RESIDENTIAL ROAD
- ACCESS TO TRANSPORT LINKS
- GAS CENTRAL HEATING
- THREE BEDROOMS
- CLOSE TO MITCHAM TOWN CENTRE
- DOUBLE GLAZING
Description
Offered for sale with NO FORWARD CHAIN is the spacious three bedroom halls adjoining end of terrace house which forms part of this well regarded road in the heart of Mitcham.
The property benefits from a garage to side with a good section of side garden which could be used to provide an extension subject to the usual planning consents.
The house does benefit from gas central heating but requires some modernisation and redecoration although this is reflected in the asking price.
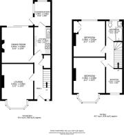
The property comprises of an entrance hall with two reception rooms, kitchen and conservatory to the ground floor with the upstairs comprising of a landing, three bedrooms and bathroom/wc.
Russell Road is conveniently located for Mitcham town centre and local transport links.
Entrance Hall - UNDER STAIRS STORAGE CUPBOARD, RADIATOR
Front Reception Room - 4.70m x 3.40m (15'5 x 11'2) - ROUND BAY DOUBLE GLAZED WINDOW, RADIATOR
Rear Reception Room - 3.81m x 3.40m (12'6 x 11'2) - DOUBLE GLAZED DOORS TO GARDEN, RADIATOR, GAS FIRE
Kitchen - 2.92m x 1.80m (9'7 x 5'11) - SINGLE DRAINER SINK UNIT WITH RANGE OF WORK SURFACES WALL AND BASE UNITS, GAS COOKER SPACE, SPACE FOR FRIDGE/FREEZER, DOOR TO CONSERVATORY
Conservatory - 2.64m x 1.80m (8'8 x 5'11) - TAP, DOOR TO GARDEN
Stairs To First Floor Landing - ACCESS TO LOFT
Bedroom One - 4.70m x 3.40m (15'5 x 11'2) - ROUND BAY DOUBLE GLAZED WINDOW, RADIATOR
Bedroom Two - 3.81m x 3.40m (12'6 x 11'2) - AIRING CUPBOARD HOUSING WATER TANK, DOUBLE GLAZED WINDOW, RADIATOR
Bedroom Three - 2.64m x 1.80m (8'8 x 5'11) - DOUBLE GLAZED WINDOW, RADIATOR
Bathroom - 2.21m x 1.80m (7'3 x 5'11) - PANEL BATH WITH SHOWER SCREEN, WASH HAND BASIN, LOW LEVEL WC, RADIATOR,
Garden - REAR AND SIDE GARDEN, GATE TO SIDE OF HOUSE FOR ACCESS
NB: THE SIDE GARDEN WOULD LEND ITSELF TO PROVIDE AN EXTENSION SUBJECT TO PLANNING CONSENTS.
Garage And Driveway - DETACHED GARAGE WITH UP AND OVER DOOR.
Council Tax - BAND D £2,088.43
Brochures
Russell Road, Mitcham- COUNCIL TAXA payment made to your local authority in order to pay for local services like schools, libraries, and refuse collection. The amount you pay depends on the value of the property.Read more about council Tax in our glossary page.
- Band: D
- PARKINGDetails of how and where vehicles can be parked, and any associated costs.Read more about parking in our glossary page.
- Driveway
- GARDENA property has access to an outdoor space, which could be private or shared.
- Yes
- ACCESSIBILITYHow a property has been adapted to meet the needs of vulnerable or disabled individuals.Read more about accessibility in our glossary page.
- Ask agent
Russell Road, Mitcham
Add an important place to see how long it'd take to get there from our property listings.
__mins driving to your place
Get an instant, personalised result:
- Show sellers you’re serious
- Secure viewings faster with agents
- No impact on your credit score
Your mortgage
Notes
Staying secure when looking for property
Ensure you're up to date with our latest advice on how to avoid fraud or scams when looking for property online.
Visit our security centre to find out moreDisclaimer - Property reference 33898139. The information displayed about this property comprises a property advertisement. Rightmove.co.uk makes no warranty as to the accuracy or completeness of the advertisement or any linked or associated information, and Rightmove has no control over the content. This property advertisement does not constitute property particulars. The information is provided and maintained by Toomey Estate Agents, Mitcham. Please contact the selling agent or developer directly to obtain any information which may be available under the terms of The Energy Performance of Buildings (Certificates and Inspections) (England and Wales) Regulations 2007 or the Home Report if in relation to a residential property in Scotland.
*This is the average speed from the provider with the fastest broadband package available at this postcode. The average speed displayed is based on the download speeds of at least 50% of customers at peak time (8pm to 10pm). Fibre/cable services at the postcode are subject to availability and may differ between properties within a postcode. Speeds can be affected by a range of technical and environmental factors. The speed at the property may be lower than that listed above. You can check the estimated speed and confirm availability to a property prior to purchasing on the broadband provider's website. Providers may increase charges. The information is provided and maintained by Decision Technologies Limited. **This is indicative only and based on a 2-person household with multiple devices and simultaneous usage. Broadband performance is affected by multiple factors including number of occupants and devices, simultaneous usage, router range etc. For more information speak to your broadband provider.
Map data ©OpenStreetMap contributors.







