Nightingale Lane, Wanstead

- PROPERTY TYPE
House
- BEDROOMS
2
- BATHROOMS
1
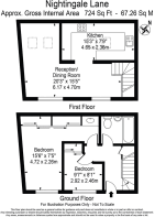
- SIZE
724 sq ft
67 sq m
- TENUREDescribes how you own a property. There are different types of tenure - freehold, leasehold, and commonhold.Read more about tenure in our glossary page.
Freehold
Key features
- End terraced house
- Two bedrooms
- Wanstead ‘Village’ location
- Open plan living space
- Fitted wardrobe space
- Chain free
- Gated frontage
- 0.3 miles to Snaresbrook Station
- 0.2 miles to Wanstead High Street
Description
*SOLD BY PETTY SON & PRESTWICH* This peaceful and extremely popular location is a short walk from the beautiful Christchurch Green and ever popular Wanstead High Street (0.2 miles), which offers an array of local shops, cafes, and eateries. This house is one of just three properties found in this quaint development and can only be accessed via a security gate.
Stepping directly into the home through your own private entrance and avoiding any hassle sometimes associated with communal hallways, you will discover two bedrooms on the ground floor that both have the practical advantage of fitted wardrobes. There is also a fully tiled bathroom with an over bath shower and an additional sink in the larger bedroom.
Venturing upstairs, which gives a great sense of space, you are greeted with a stunning open plan living area that is beautifully light thanks to the two large windows and four stylish skylights. The lounge and kitchen areas are creatively separated with the help of a breakfast bar and subtle change of wood flooring in the lounge to a more practical solid tile for the kitchen. There is plenty of work surface and storage space, whilst the cream units contrast stylishly against the black work surfaces and bronze mosaic tiled splash back.
The living area is a good size to accommodate a couple of sofas as well as a dining space, whilst the vaulted ceiling gives the whole room a sense of space and character.
EPC Rating: C74
Council
An Anti-Money Laundering fee will be applicable to all purchasers at a cost of £18.00 per person.Tax Band: D
Reception/Dining Room - 6.17 x 4.70 (20'2" x 15'5") -
Kitchen - 4.65 x 2.36 (15'3" x 7'8") -
Bedroom - 4.72 x 2.26 (15'5" x 7'4" ) -
Bedroom - 2.92 x 2.46 (9'6" x 8'0") -
Brochures
Nightingale Lane, Wanstead- COUNCIL TAXA payment made to your local authority in order to pay for local services like schools, libraries, and refuse collection. The amount you pay depends on the value of the property.Read more about council Tax in our glossary page.
- Band: D
- PARKINGDetails of how and where vehicles can be parked, and any associated costs.Read more about parking in our glossary page.
- Permit
- GARDENA property has access to an outdoor space, which could be private or shared.
- Ask agent
- ACCESSIBILITYHow a property has been adapted to meet the needs of vulnerable or disabled individuals.Read more about accessibility in our glossary page.
- Ask agent
Nightingale Lane, Wanstead
Add an important place to see how long it'd take to get there from our property listings.
__mins driving to your place
Get an instant, personalised result:
- Show sellers you’re serious
- Secure viewings faster with agents
- No impact on your credit score
Your mortgage
Notes
Staying secure when looking for property
Ensure you're up to date with our latest advice on how to avoid fraud or scams when looking for property online.
Visit our security centre to find out moreDisclaimer - Property reference 33898454. The information displayed about this property comprises a property advertisement. Rightmove.co.uk makes no warranty as to the accuracy or completeness of the advertisement or any linked or associated information, and Rightmove has no control over the content. This property advertisement does not constitute property particulars. The information is provided and maintained by Petty Son & Prestwich Ltd, London. Please contact the selling agent or developer directly to obtain any information which may be available under the terms of The Energy Performance of Buildings (Certificates and Inspections) (England and Wales) Regulations 2007 or the Home Report if in relation to a residential property in Scotland.
*This is the average speed from the provider with the fastest broadband package available at this postcode. The average speed displayed is based on the download speeds of at least 50% of customers at peak time (8pm to 10pm). Fibre/cable services at the postcode are subject to availability and may differ between properties within a postcode. Speeds can be affected by a range of technical and environmental factors. The speed at the property may be lower than that listed above. You can check the estimated speed and confirm availability to a property prior to purchasing on the broadband provider's website. Providers may increase charges. The information is provided and maintained by Decision Technologies Limited. **This is indicative only and based on a 2-person household with multiple devices and simultaneous usage. Broadband performance is affected by multiple factors including number of occupants and devices, simultaneous usage, router range etc. For more information speak to your broadband provider.
Map data ©OpenStreetMap contributors.







