
New Drum Street, Aldgate, London, E1

Letting details
- Let available date:
- Ask agent
- Deposit:
- £4,284A deposit provides security for a landlord against damage, or unpaid rent by a tenant.Read more about deposit in our glossary page.
- Min. Tenancy:
- Ask agent How long the landlord offers to let the property for.Read more about tenancy length in our glossary page.
- Let type:
- Long term
- Furnish type:
- Furnished
- Council Tax:
- Ask agent
- PROPERTY TYPE
Flat
- BEDROOMS
2
- BATHROOMS
2
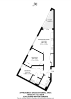
- SIZE
784 sq ft
73 sq m
Key features
- Brand new development
- Modern and spacious reception room
- Contemporary open plan kitchen
- 2 well proportioned bedrooms
- Stylish bathroom and shower room
- Communal roof terrace, fitness suite, private screening room
- As well as co-working space, private dining and lounge
- Pet friendly
Description
Alma offers a bespoke and personalized approach to city living. Pet-friendly apartments are stylishly furnished with sustainable furniture and feature premium details such as air heating and cooling, a wine fridge, generous built-in storage, and private winter gardens. Extensive amenity spaces include a leafy communal terrace, residents lounge/private dining area, screening room, fitness suite, co-working space, and private working booths available for all residents to use or to hire privately. Community hosts and a 24/7 concierge are on hand to arrange a variety signature services to bring ease to the everyday, including housekeeping, pet grooming, private car hire service, in-home massage, and flower delivery as well as coordinating a range of resident events and Neighbourhood Heroes discounts.
Alma is situated in an excellent location moments from Aldgate East Station for links around the city, while nearby Spitalfields is also within close proximity.
Please use the reference CHPK6205921 when contacting Foxtons.
Brochures
Property detailsSuper sized images- COUNCIL TAXA payment made to your local authority in order to pay for local services like schools, libraries, and refuse collection. The amount you pay depends on the value of the property.Read more about council Tax in our glossary page.
- Ask agent
- PARKINGDetails of how and where vehicles can be parked, and any associated costs.Read more about parking in our glossary page.
- Ask agent
- GARDENA property has access to an outdoor space, which could be private or shared.
- Rear garden,Back garden
- ACCESSIBILITYHow a property has been adapted to meet the needs of vulnerable or disabled individuals.Read more about accessibility in our glossary page.
- Ask agent
New Drum Street, Aldgate, London, E1
Add an important place to see how long it'd take to get there from our property listings.
__mins driving to your place
Notes
Staying secure when looking for property
Ensure you're up to date with our latest advice on how to avoid fraud or scams when looking for property online.
Visit our security centre to find out moreDisclaimer - Property reference 1327173. The information displayed about this property comprises a property advertisement. Rightmove.co.uk makes no warranty as to the accuracy or completeness of the advertisement or any linked or associated information, and Rightmove has no control over the content. This property advertisement does not constitute property particulars. The information is provided and maintained by Foxtons, Shoreditch. Please contact the selling agent or developer directly to obtain any information which may be available under the terms of The Energy Performance of Buildings (Certificates and Inspections) (England and Wales) Regulations 2007 or the Home Report if in relation to a residential property in Scotland.
*This is the average speed from the provider with the fastest broadband package available at this postcode. The average speed displayed is based on the download speeds of at least 50% of customers at peak time (8pm to 10pm). Fibre/cable services at the postcode are subject to availability and may differ between properties within a postcode. Speeds can be affected by a range of technical and environmental factors. The speed at the property may be lower than that listed above. You can check the estimated speed and confirm availability to a property prior to purchasing on the broadband provider's website. Providers may increase charges. The information is provided and maintained by Decision Technologies Limited. **This is indicative only and based on a 2-person household with multiple devices and simultaneous usage. Broadband performance is affected by multiple factors including number of occupants and devices, simultaneous usage, router range etc. For more information speak to your broadband provider.
Map data ©OpenStreetMap contributors.