Plot for sale
Woodland Crescent, Milford Haven, SA73
- PROPERTY TYPE
Plot
- BEDROOMS
4
- BATHROOMS
2
- SIZE
Ask agent
Key features
- Full planning permission for detached four-bedroom bungalow
- Modern layout with generous off-road parking included
- Quiet yet accessible location in Milford Haven
- Close to marina, coastal paths, waterway and local amenities
Description
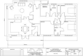
BUILDING PLOT
Full planning permission has been granted for the construction of a detached four-bedroom bungalow, designed to provide well-proportioned accommodation with modern living in mind. The proposed design also allows for generous off-road parking to the front. A rare chance to create a bespoke home in a quiet yet accessible setting.
Situated in the serene town of Milford Haven in picturesque Pembrokeshire, this residence is ideal for those seeking a peaceful life within a vibrant community. The area blends natural beauty with cultural opportunities, with Milford Marina close by offering a variety of dining and entertainment options. This setting is superb for those who value tranquil settings and are eager to explore the region’s rich maritime history and scenic coastal paths, making it an ideal home for nature lovers and cultural enthusiasts alike.
We are advised that no services are currently connected to the plots.
Planning Reference: 14/1175/PA
Hallway
Lounge
Kitchen
Utility Room
Bedroom One
En-Suite Shower Room
Bedroom Two
Bedroom Three
Bedroom Four / Study
Family Bathroom
Brochures
Brochure 1Woodland Crescent, Milford Haven, SA73
NEAREST STATIONS
Distances are straight line measurements from the centre of the postcode- Milford Haven Station0.9 miles
- Johnston Station3.0 miles
- Pembroke Dock Station3.8 miles
Notes
Disclaimer - Property reference 29066385. The information displayed about this property comprises a property advertisement. Rightmove.co.uk makes no warranty as to the accuracy or completeness of the advertisement or any linked or associated information, and Rightmove has no control over the content. This property advertisement does not constitute property particulars. The information is provided and maintained by Bryce & Co, Covering Pembrokeshire. Please contact the selling agent or developer directly to obtain any information which may be available under the terms of The Energy Performance of Buildings (Certificates and Inspections) (England and Wales) Regulations 2007 or the Home Report if in relation to a residential property in Scotland.
Map data ©OpenStreetMap contributors.







