Balearic Islands, Mallorca, Alcudia, Spain
- PROPERTY TYPE
Plot
- BEDROOMS
4
- BATHROOMS
4
- SIZE
3,767 sq ft
350 sq m
Key features
- Conveniently Situated for Golf
- Corner plot
- Investment Property
- Mountain View
- Sea Views
- Walking distance to beach
- Walking distance to rest.
- Walking distance to shops
- With building licence
- With building project
Description
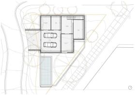
Located at the corner of a peaceful street, this plot includes a project and building license for a two-story, modern-style villa. The ground floor plan features a double bedroom with an en suite bathroom, a guest toilet, and an open layout that combines a living room, dining area, and contemporary kitchen, all of which lead directly to a terrace with a swimming pool and stunning sea views.
The design for the upper level comprises three double bedrooms, each with an en suite bathroom. Two of these bedrooms will have direct access to a large terrace balcony, which boasts beautiful views of the sea, mountains, pool, and garden.
Finally, the plans include a basement level with a garage for 2 cars, a gym, a toilet, and storage room.
Please contact us to learn more about this outstanding plot, which comes with a project for a magnificent family villa in Alcudia.
Alcudia is one of the most attractive historical towns in Mallorca. The medieval wall built in the 14th century; the ruins of the ancient Roman city Pollentia and the church of Sant Jaume attract hundreds of visitors, lovers of architecture, culture and history year upon year. The port of Alcudia is located just a couple kilometers away offering a wide range of entertainment activities, exquisite restaurants and trendy cafés. Apart from its inherent beauty, Alcudia is brilliantly located near the heavenly beaches in the bays of Alcudia and Pollensa, and has easy access to the motorway that connects the entire island.
For additional information contact BALEARIC PROPERTIES ESTATE AGENTS MALLORCA by email or call the Pollensa Office (+34) 971 53 29 84 - See more details about other plots for sale in Alcudia or find out more about buying a home in Alcudia.
"Balearic Properties has been in business on the Balearic Islands for many, many years. The company headquarters is on Mallorca and over the years, we have built up an unparalleled portfolio of properties to suit every budget, by means of which we have already successfully helped 10.000 clients find their new home on the Balearic Islands. Our project management and construction companies offer a unique range of luxury, turn-key villas to suit all individual and personal needs. We also offer over 200 holiday villas that guarantee our clients an unforgettable holiday experience.
Balearic Properties is the exclusive associate of Savills in Mallorca. The company offers clients a vast experience of over 20 years in the local property market. Our portfolio includes all sorts of modern villas, country homes, and trendy new developments in the best areas of Mallorca. Balearic Properties also specialises in waterfront properties and large estates. The company offers a complete, all-around property service including property management, holiday lettings, project management and legal services."
Balearic Islands, Mallorca, Alcudia, Spain
NEAREST AIRPORTS
Distances are straight line measurements- Palma de Mallorca(International)29.8 miles
- Menorca(International)57.6 miles
Advice on buying Spanish property
Learn everything you need to know to successfully find and buy a property in Spain.
Notes
This is a property advertisement provided and maintained by Savills Global Residential Property, Partnering in Balearic Islands (reference 208670_ALC0630ALC4) and does not constitute property particulars. Whilst we require advertisers to act with best practice and provide accurate information, we can only publish advertisements in good faith and have not verified any claims or statements or inspected any of the properties, locations or opportunities promoted. Rightmove does not own or control and is not responsible for the properties, opportunities, website content, products or services provided or promoted by third parties and makes no warranties or representations as to the accuracy, completeness, legality, performance or suitability of any of the foregoing. We therefore accept no liability arising from any reliance made by any reader or person to whom this information is made available to. You must perform your own research and seek independent professional advice before making any decision to purchase or invest in overseas property.





