Land Adjacent To Box Bush Farm, Box Bush Lane, Hewish, Weston-Super-Mare, BS24

- PROPERTY TYPE
Barn Conversion
- BEDROOMS
2
- BATHROOMS
1
- SIZE
Ask agent
- TENUREDescribes how you own a property. There are different types of tenure - freehold, leasehold, and commonhold.Read more about tenure in our glossary page.
Ask agent
Key features
- Two barns with Class Q consent for two-bedroom houses
- Rural views
- 6 miles from the centre of Weston-Super-Mare
Description
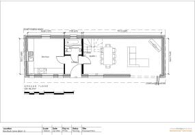
With consent for conversion to two spacious two-bedroom dwellings, one of 83.07m2 and the other of 106.70m2, these properties would perfectly suit someone looking to create a modern country home between Weston-Super-Mare and Bristol.
The properties boast a quiet countryside setting while maintaining fantastic links to nearby towns and the City of Bristol.
NOW SOLD STC
PLEASE NOTE THIS PROPERTY IS NOW SOLD SUBJECT TO CONTRACT
DESCRIPTION
A rare chance to purchase barns with Class Q Consent for residential conversion set with road frontage access from Box Bush Lane. With consent for conversion to two spacious two-bedroom dwellings, one of 83.07m2 and the other of 106.70m2, these properties would perfectly suit someone looking to create a modern country home between Weston-Super-Mare and Bristol. The properties boast a quiet countryside setting while maintaining fantastic links to nearby towns and the City of Bristol.
PLANNING PERMISSION
Full details of the planning consent can be found on the North Somerset Council website by searching the planning reference .24/P/1890/CQA. Consent was granted on 26th February 2025, but we understand that no works have been commenced at present.
SITUATION
The plot is situated just 1.3 miles from the main A370 road at Hewish and approximately 6 miles from the centre of Weston-Super-Mare. Access is directly from Box Bush Lane. What Three Words: ///into.dissolve.reset
DESIGNATIONS
The property is located within the Aerodrome Safeguard Zone and a Horseshoe Bat Zone C. We are not aware of any other designations which impact the property but prospective purchasers are advised to make their own enquiries.
VIEWINGS
At any time during daylight hours with the usual courtesy shown to the occupier. Please contact David James Wrington Office on to inform them that you are intending on viewing the land.
LOCAL AUTHORITY
North Somerset Council, Tel: .
Brochures
Particulars- COUNCIL TAXA payment made to your local authority in order to pay for local services like schools, libraries, and refuse collection. The amount you pay depends on the value of the property.Read more about council Tax in our glossary page.
- Band: TBC
- PARKINGDetails of how and where vehicles can be parked, and any associated costs.Read more about parking in our glossary page.
- Ask agent
- GARDENA property has access to an outdoor space, which could be private or shared.
- Ask agent
- ACCESSIBILITYHow a property has been adapted to meet the needs of vulnerable or disabled individuals.Read more about accessibility in our glossary page.
- Ask agent
Energy performance certificate - ask agent
Land Adjacent To Box Bush Farm, Box Bush Lane, Hewish, Weston-Super-Mare, BS24
Add an important place to see how long it'd take to get there from our property listings.
__mins driving to your place
Get an instant, personalised result:
- Show sellers you’re serious
- Secure viewings faster with agents
- No impact on your credit score
Your mortgage
Notes
Staying secure when looking for property
Ensure you're up to date with our latest advice on how to avoid fraud or scams when looking for property online.
Visit our security centre to find out moreDisclaimer - Property reference WRU250017. The information displayed about this property comprises a property advertisement. Rightmove.co.uk makes no warranty as to the accuracy or completeness of the advertisement or any linked or associated information, and Rightmove has no control over the content. This property advertisement does not constitute property particulars. The information is provided and maintained by David James, Wrington. Please contact the selling agent or developer directly to obtain any information which may be available under the terms of The Energy Performance of Buildings (Certificates and Inspections) (England and Wales) Regulations 2007 or the Home Report if in relation to a residential property in Scotland.
*This is the average speed from the provider with the fastest broadband package available at this postcode. The average speed displayed is based on the download speeds of at least 50% of customers at peak time (8pm to 10pm). Fibre/cable services at the postcode are subject to availability and may differ between properties within a postcode. Speeds can be affected by a range of technical and environmental factors. The speed at the property may be lower than that listed above. You can check the estimated speed and confirm availability to a property prior to purchasing on the broadband provider's website. Providers may increase charges. The information is provided and maintained by Decision Technologies Limited. **This is indicative only and based on a 2-person household with multiple devices and simultaneous usage. Broadband performance is affected by multiple factors including number of occupants and devices, simultaneous usage, router range etc. For more information speak to your broadband provider.
Map data ©OpenStreetMap contributors.





