
Yarmouth Crescent , Ferry Lane Estate , London, N17

- PROPERTY TYPE
Town House
- BEDROOMS
4
- BATHROOMS
2
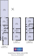
- SIZE
1,238 sq ft
115 sq m
- TENUREDescribes how you own a property. There are different types of tenure - freehold, leasehold, and commonhold.Read more about tenure in our glossary page.
Freehold
Key features
- Walking distance to Tottenham Hale Station
- Desirable Location
- Freehold House - 115 SMQ
- Kitchen Diner and separate reception room
- Three / Four bedrooms
- Three Piece bathroom suite and Ground floor shower and WC
- Double Glazed and Gas central Heating
- Own private garden with rear access
- Vacant Possession - Chain Free
Description
Call Knights to register your interest and book your viewing.
The property is situated between the beautiful River Lea and Walthamstow wetlands nature reserve, which offers plenty of green space for walking and cycling.
Tottenham Hale is just a seven minute walk away with shops, a gym and local breweries. The area is also very well served by public transport including excellent bus, tube, rail and road transport links. Tottenham Hale station is on the Victoria line and has direct national rail trains to Liverpool Street, Stratford and Stansted.
Just across the wetlands is Walthamstow and the property is a 15 minute walk to Blackhorse Road, where there are shops, breweries and live music venues.
The property is superbly located within easy access of Tottenham Hale, Seven Sisters and Stamford Hill stations, as well as numerous regular bus routes all providing excellent cross-London links. The area is well served by an array of shops, cafes and amenities, with nearby Stoke Newington providing a further variety of fashionable bars and restaurants, and the beautiful open spaces of the Walthamstow Wetlands providing a haven for local wildlife.
Our Vendor has informed us of the following information.
Tenure: Freehold
EPC: Rating C
Council Tax: Band D
The nearby neighbourhood embraces modern urban living with Starbucks and Pret A Manger a short walk away as well as Fitness First and a retail park.
Tottenham's ongoing transformation has created a dynamic community that balances urban energy with residential tranquillity. The proximity to Tottenham Hotspur Stadium adds to the area's excitement and investment potential, while the diverse local amenities and improving infrastructure make this an ideal location for both first-time buyers seeking their London foothold and investors recognising the area's significant growth potential.
- COUNCIL TAXA payment made to your local authority in order to pay for local services like schools, libraries, and refuse collection. The amount you pay depends on the value of the property.Read more about council Tax in our glossary page.
- Band: D
- PARKINGDetails of how and where vehicles can be parked, and any associated costs.Read more about parking in our glossary page.
- Ask agent
- GARDENA property has access to an outdoor space, which could be private or shared.
- Yes
- ACCESSIBILITYHow a property has been adapted to meet the needs of vulnerable or disabled individuals.Read more about accessibility in our glossary page.
- Ask agent
Energy performance certificate - ask agent
Yarmouth Crescent , Ferry Lane Estate , London, N17
Add an important place to see how long it'd take to get there from our property listings.
__mins driving to your place
Get an instant, personalised result:
- Show sellers you’re serious
- Secure viewings faster with agents
- No impact on your credit score
Affordability
Notes
Staying secure when looking for property
Ensure you're up to date with our latest advice on how to avoid fraud or scams when looking for property online.
Visit our security centre to find out moreDisclaimer - Property reference DWR001406. The information displayed about this property comprises a property advertisement. Rightmove.co.uk makes no warranty as to the accuracy or completeness of the advertisement or any linked or associated information, and Rightmove has no control over the content. This property advertisement does not constitute property particulars. The information is provided and maintained by Knights Residential, London. Please contact the selling agent or developer directly to obtain any information which may be available under the terms of The Energy Performance of Buildings (Certificates and Inspections) (England and Wales) Regulations 2007 or the Home Report if in relation to a residential property in Scotland.
*This is the average speed from the provider with the fastest broadband package available at this postcode. The average speed displayed is based on the download speeds of at least 50% of customers at peak time (8pm to 10pm). Fibre/cable services at the postcode are subject to availability and may differ between properties within a postcode. Speeds can be affected by a range of technical and environmental factors. The speed at the property may be lower than that listed above. You can check the estimated speed and confirm availability to a property prior to purchasing on the broadband provider's website. Providers may increase charges. The information is provided and maintained by Decision Technologies Limited. **This is indicative only and based on a 2-person household with multiple devices and simultaneous usage. Broadband performance is affected by multiple factors including number of occupants and devices, simultaneous usage, router range etc. For more information speak to your broadband provider.
Map data ©OpenStreetMap contributors.









