
Beeward Close, Greenleys, Milton Keynes, Buckinghamshire

- PROPERTY TYPE
Terraced
- BEDROOMS
2
- BATHROOMS
1
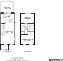
- SIZE
668 sq ft
62 sq m
- TENUREDescribes how you own a property. There are different types of tenure - freehold, leasehold, and commonhold.Read more about tenure in our glossary page.
Freehold
Key features
- Option 2 for selling Agent
- Unique Two Bedroom Terraced House
- Located in Greenleys, Milton Keynes
- Ideal for First time buyers or Investors
- Private Garden
- Allocated Parking Space
- Single Garage
- Kitchen
- Bathroom
- Conservatory
Description
To speak with the selling agent directly call 01908-236236*
We are pleased to offer for sale this unique two bedroom terraced house located in the area of Greenleys to the North-West of Central Milton Keynes, with allocated parking space, Single Garage and private garden. Internally the property boasts: Entrance hall, living/dining room, kitchen with back door leading into the conservatory, two good sized bedrooms and family bathroom. Externally the property offers off road allocated parking, single garage and private garden.
The property is conveniently located near local amenities and transport links. Ideal for first-time buyers or investors.
Do not miss out on this fantastic opportunity!
Contact us today to arrange a viewing.
Please note, all floorplan and room measurements are approximate. The inclusion of appliances and/or services within these sales particulars does not imply that they are in full efficient working order. Please note that any services, heating systems or appliances have not been tested and no warranty can be given or implied as to their working order.
We routinely refer customers to conveyancing solicitors and mortgage brokers. It is your decision whether you choose to deal with them, in making that decision, you should know that we receive a referral fee in the region of £150 to £250 for recommending you to them.
The above details have been submitted to our clients but at the moment have not been approved by them and we therefore cannot guarantee their accuracy and they are distributed on this basis. Please ensure that you have a copy of our approved details before committing yourself to any expense.
- COUNCIL TAXA payment made to your local authority in order to pay for local services like schools, libraries, and refuse collection. The amount you pay depends on the value of the property.Read more about council Tax in our glossary page.
- Band: B
- PARKINGDetails of how and where vehicles can be parked, and any associated costs.Read more about parking in our glossary page.
- Yes
- GARDENA property has access to an outdoor space, which could be private or shared.
- Yes
- ACCESSIBILITYHow a property has been adapted to meet the needs of vulnerable or disabled individuals.Read more about accessibility in our glossary page.
- Ask agent
Beeward Close, Greenleys, Milton Keynes, Buckinghamshire
Add an important place to see how long it'd take to get there from our property listings.
__mins driving to your place
Get an instant, personalised result:
- Show sellers you’re serious
- Secure viewings faster with agents
- No impact on your credit score
Your mortgage
Notes
Staying secure when looking for property
Ensure you're up to date with our latest advice on how to avoid fraud or scams when looking for property online.
Visit our security centre to find out moreDisclaimer - Property reference BND-93049214. The information displayed about this property comprises a property advertisement. Rightmove.co.uk makes no warranty as to the accuracy or completeness of the advertisement or any linked or associated information, and Rightmove has no control over the content. This property advertisement does not constitute property particulars. The information is provided and maintained by OnPlan, Stockgrove. Please contact the selling agent or developer directly to obtain any information which may be available under the terms of The Energy Performance of Buildings (Certificates and Inspections) (England and Wales) Regulations 2007 or the Home Report if in relation to a residential property in Scotland.
*This is the average speed from the provider with the fastest broadband package available at this postcode. The average speed displayed is based on the download speeds of at least 50% of customers at peak time (8pm to 10pm). Fibre/cable services at the postcode are subject to availability and may differ between properties within a postcode. Speeds can be affected by a range of technical and environmental factors. The speed at the property may be lower than that listed above. You can check the estimated speed and confirm availability to a property prior to purchasing on the broadband provider's website. Providers may increase charges. The information is provided and maintained by Decision Technologies Limited. **This is indicative only and based on a 2-person household with multiple devices and simultaneous usage. Broadband performance is affected by multiple factors including number of occupants and devices, simultaneous usage, router range etc. For more information speak to your broadband provider.
Map data ©OpenStreetMap contributors.






