Andalucia, Malaga, Mijas-Costa, Spain
- PROPERTY TYPE
Town House
- BEDROOMS
2
- BATHROOMS
1
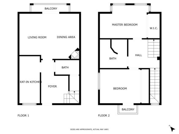
- SIZE
969 sq ft
90 sq m
Key features
- Fitted Wardrobes
- Near Transport
- Fitted Kitchen
- Balcony
- Amenities Near
- Air Conditioning
- Gated Community
- Street View
- Unfurnished
- Close to Town
Description
Originally a 3-bedroom property, it has been reconfigured to offer 2 spacious bedrooms and a large bathroom upstairs. On the ground floor, you'll find a cozy living room with a fireplace, independent kitchen, guest toilet, and air conditioning.
The home has been fully renovated with quality materials and tasteful finishes—ready to move in.
Perfect as a first home or investment, located in a well-connected area close to all services. Don’t miss out on this opportunity!
Andalucia, Malaga, Mijas-Costa, Spain
NEAREST AIRPORTS
Distances are straight line measurements- Málaga(International)12.3 miles
- Gibraltar (North Front)(International)48.1 miles
- Jerez(International)80.2 miles
- Sevilla (San Pablo)(International)91.9 miles
Advice on buying Spanish property
Learn everything you need to know to successfully find and buy a property in Spain.
Notes
This is a property advertisement provided and maintained by Strand Properties, Marbella (reference SPCRM3194) and does not constitute property particulars. Whilst we require advertisers to act with best practice and provide accurate information, we can only publish advertisements in good faith and have not verified any claims or statements or inspected any of the properties, locations or opportunities promoted. Rightmove does not own or control and is not responsible for the properties, opportunities, website content, products or services provided or promoted by third parties and makes no warranties or representations as to the accuracy, completeness, legality, performance or suitability of any of the foregoing. We therefore accept no liability arising from any reliance made by any reader or person to whom this information is made available to. You must perform your own research and seek independent professional advice before making any decision to purchase or invest in overseas property.




