Land for sale
Springfield Road, Chelmsford
- PROPERTY TYPE
Land
- SIZE
Ask agent
Key features
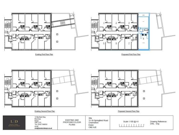
- 31 UNITS - Part Permitted Development, Part New Build
- Town Centre Location
- Guide Price £3,100,000
- Viewings available on request
- For Further information please contact Rob Matthewson of Connells Land Department
- Offers in writing only
- Sole selling agents
Description
SUMMARY
(31 UNITS) Permitted Development opportunity for the change of use floors 1 - 3 from office use (class B1(a)) to eighteen residential units (class C3) alongside the Construction of 13 New Build apartments above with access from 31 Springfield Road.
DESCRIPTION
(31 UNITS) A guide price of £3.1M has been provided for this Permitted Development and New Build Development Opportunity in this central location in the city of Chelmsford. The permission is for the change of use to floors 1 - 3 from office use (class B1(a)) to eighteen residential units (class C3) alongside the Construction of 13 New Build apartments above with access from 31 Springfield Road offering addition units to the side and creating a 4th and 5th floor.
All offers are to be in writing, and should be accompanied by confirmation of finance and your legal representatives
The vendors are not obliged to accept the highest or indeed any offer received.
PLEASE NOTE: This sale is subject to VAT; however, it is our understanding that this is reclaimable,
we advise that any interested party seek their own financial advice on this matter.
Access to an Information Pack containing all relevant sales information, technical reports and planning information is available on
request. For access, contact the Sole Selling Agent. Rob Matthewson
m; e: rob.
Viewings available upon request with the Selling Agents.
Please Note:- Ground floor commercial units are excluded from this sale and remain in the ownership of the current owners
** Images should be used for guide purposes only, some of which are computer-generated images **
1. MONEY LAUNDERING REGULATIONS - Intending purchasers will be asked to produce identification documentation at a later stage and we would ask for your co-operation in order that there will be no delay in agreeing the sale.
2: These particulars do not constitute part or all of an offer or contract.
3: The measurements indicated are supplied for guidance only and as such must be considered incorrect.
4: Potential buyers are advised to recheck the measurements before committing to any expense.
5: Connells has not tested any apparatus, equipment, fixtures, fittings or services and it is the buyers interests to check the working condition of any appliances.
6: Connells has not sought to verify the legal title of the property and the buyers must obtain verification from their solicitor.
Brochures
Full DetailsSpringfield Road, Chelmsford
NEAREST STATIONS
Distances are straight line measurements from the centre of the postcode- Chelmsford Station0.4 miles
- Hatfield Peverel Station5.9 miles
- Ingatestone Station6.0 miles
Notes
Disclaimer - Property reference L01100120. The information displayed about this property comprises a property advertisement. Rightmove.co.uk makes no warranty as to the accuracy or completeness of the advertisement or any linked or associated information, and Rightmove has no control over the content. This property advertisement does not constitute property particulars. The information is provided and maintained by Connells Land & Development, Luton - Land. Please contact the selling agent or developer directly to obtain any information which may be available under the terms of The Energy Performance of Buildings (Certificates and Inspections) (England and Wales) Regulations 2007 or the Home Report if in relation to a residential property in Scotland.
Map data ©OpenStreetMap contributors.




