Moorland Avenue, Poulton-Le-Fylde, FY6

- PROPERTY TYPE
Terraced
- BEDROOMS
4
- BATHROOMS
2
- SIZE
1,668 sq ft
155 sq m
- TENUREDescribes how you own a property. There are different types of tenure - freehold, leasehold, and commonhold.Read more about tenure in our glossary page.
Freehold
Key features
- Modern Four Bedroom Terraced House Within Popular Residential Location
- Close Proximity To Poulton-Le-Fylde Shops, Amenities, Transportation Links and Schools
- Entrance Vestibule, Hallway, Spacious Lounge/ Dining Room With A Large Feature Log Burner And French Doors Leading To Rear Garden
- Open Plan Kitchen And Lounge With Breakfast Bar, Log Burner And Patio Doors Leading To Rear Garden
- Kitchen Benefits From Solid Oak And Quartz Worktops With Integrated Dishwasher
- First Floor Landing, Three Double Bedrooms And Large Four Piece Suite Family Bathroom With Freestanding Bath And Walk-In Shower
- Converted Second Floor Double Bedroom And En-Suite
- Enclosed North West Facing Rear Garden With A Raised Decked Seating Area And Outside Fireplace Lit Up By Mains And Solar Lights, Rear Access Leading To Parking Space
Description
Modern and stylish, this four-bedroom terraced house is nestled within a popular residential location, offering a contemporary living space for the discerning buyer. Situated in close proximity to the bustling shops, amenities, transportation links, and reputable schools of Poulton-Le-Fylde, this property promises both convenience and comfort. The ground floor welcomes you with an entrance vestibule leading to a hallway, setting the tone for the elegance that awaits within. The spacious lounge/dining room boasts a large feature log burner and French doors that open up to the rear garden, inviting natural light to enhance the ambience. An open plan kitchen and lounge with a breakfast bar, gas log burner, and patio doors seamlessly blend modern functionality with warmth and comfort. The kitchen showcases solid oak and quartz worktops, complemented by integrated dishwasher for added convenience.
Ascending to the first floor, you are greeted by three double bedrooms and a luxuriously appointed four-piece suite family bathroom complete with a freestanding bath and walk-in shower. Ascend to the converted second floor to discover a spacious double bedroom, accompanied by an en-suite, offering privacy and comfort to its occupants. The outside space of this property is equally impressive, featuring an enclosed north-west-facing rear garden with a raised decked seating area and an outside fireplace that is illuminated by mains and solar lights, creating a magical ambience for relaxation and entertainment. The rear access provides ease of entry to the parking space, adding practicality to the charm of this home. Embrace the joys of modern living in this exquisite property that seamlessly blends contemporary comforts with a touch of luxury, offering a sanctuary in the heart of a vibrant community.
EPC Rating: D
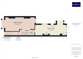
Entrance Vestibule
1.13m x 1.18m
Lounge/ Dining Room
3.92m x 9.13m
Kitchen/ Lounge
2.94m x 8.54m
Bedroom 1
5.12m x 4.02m
Bedroom 2
3.32m x 4.23m
Bedroom 3
3.03m x 3.54m
Bathroom
1.79m x 4.6m
Bedroom 4
2.74m x 5.14m
En-Suite
1.62m x 1.58m
Parking - Off street
- COUNCIL TAXA payment made to your local authority in order to pay for local services like schools, libraries, and refuse collection. The amount you pay depends on the value of the property.Read more about council Tax in our glossary page.
- Band: C
- PARKINGDetails of how and where vehicles can be parked, and any associated costs.Read more about parking in our glossary page.
- Off street
- GARDENA property has access to an outdoor space, which could be private or shared.
- Front garden,Rear garden
- ACCESSIBILITYHow a property has been adapted to meet the needs of vulnerable or disabled individuals.Read more about accessibility in our glossary page.
- Ask agent
Moorland Avenue, Poulton-Le-Fylde, FY6
Add an important place to see how long it'd take to get there from our property listings.
__mins driving to your place
Get an instant, personalised result:
- Show sellers you’re serious
- Secure viewings faster with agents
- No impact on your credit score
Your mortgage
Notes
Staying secure when looking for property
Ensure you're up to date with our latest advice on how to avoid fraud or scams when looking for property online.
Visit our security centre to find out moreDisclaimer - Property reference 7fbcf7d7-06d3-458c-9b6f-54b236771077. The information displayed about this property comprises a property advertisement. Rightmove.co.uk makes no warranty as to the accuracy or completeness of the advertisement or any linked or associated information, and Rightmove has no control over the content. This property advertisement does not constitute property particulars. The information is provided and maintained by Stephen Tew Estate Agents, Poulton. Please contact the selling agent or developer directly to obtain any information which may be available under the terms of The Energy Performance of Buildings (Certificates and Inspections) (England and Wales) Regulations 2007 or the Home Report if in relation to a residential property in Scotland.
*This is the average speed from the provider with the fastest broadband package available at this postcode. The average speed displayed is based on the download speeds of at least 50% of customers at peak time (8pm to 10pm). Fibre/cable services at the postcode are subject to availability and may differ between properties within a postcode. Speeds can be affected by a range of technical and environmental factors. The speed at the property may be lower than that listed above. You can check the estimated speed and confirm availability to a property prior to purchasing on the broadband provider's website. Providers may increase charges. The information is provided and maintained by Decision Technologies Limited. **This is indicative only and based on a 2-person household with multiple devices and simultaneous usage. Broadband performance is affected by multiple factors including number of occupants and devices, simultaneous usage, router range etc. For more information speak to your broadband provider.
Map data ©OpenStreetMap contributors.





