
2 bedroom detached house for sale
Bespoke Luxury Eco Home, Astbury Lane Ends, Congleton

- PROPERTY TYPE
Detached
- BEDROOMS
2
- BATHROOMS
1
- SIZE
Ask agent
- TENUREDescribes how you own a property. There are different types of tenure - freehold, leasehold, and commonhold.Read more about tenure in our glossary page.
Freehold
Key features
- Stunning detached new build property ready for late 2025!
- Eco home with impressive energy efficiency
- Purchaser can enjoy their own input on design and specification!
- Two generous bedrooms and luxurious bathroom to first floor
- Relaxing lounge and stunning living kitchen to ground floor
- Peaceful area tucked away within affluent Mossley area
- A moments stroll to miles of countryside via canal towpaths
- Walking distance to train station and town centre
- A truly one off opportunity for a range of discerning buyers!
- Call to register interest!
Description
Expected to be completed towards the end of 2025. The two bedroom detached home is under construction by highly regarded artisan builders and the lucky new owner will have a close working relationship with the builder to customise the home and choose a variety of fixtures and fittings thus creating a very unique home bespoke to you!
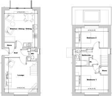
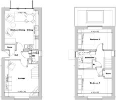
Two double bedrooms, comfortable lounge, tasteful living kitchen, stylish bathroom, guest WC, gardens and driveway....what more could you need?!
Local amenities are a short stroll away whilst great commuter links are in easy reach. The local train station is easily accessible and offers good links to the north and south. Finally, the local towpaths of the Macclesfield canal are on your doorstep and give way to abundant, luscious countryside!
Read on to find out more, view our CGI photos and floor plan then call us here at Chris Hamriding Estate Agents to register your interest!
Brochures
Bespoke Luxury Eco Home, Astbury Lane Ends, CongleBrochure- COUNCIL TAXA payment made to your local authority in order to pay for local services like schools, libraries, and refuse collection. The amount you pay depends on the value of the property.Read more about council Tax in our glossary page.
- Band: TBC
- PARKINGDetails of how and where vehicles can be parked, and any associated costs.Read more about parking in our glossary page.
- Driveway
- GARDENA property has access to an outdoor space, which could be private or shared.
- Yes
- ACCESSIBILITYHow a property has been adapted to meet the needs of vulnerable or disabled individuals.Read more about accessibility in our glossary page.
- Ask agent
Energy performance certificate - ask agent
Bespoke Luxury Eco Home, Astbury Lane Ends, Congleton
Add an important place to see how long it'd take to get there from our property listings.
__mins driving to your place
Get an instant, personalised result:
- Show sellers you’re serious
- Secure viewings faster with agents
- No impact on your credit score



Your mortgage
Notes
Staying secure when looking for property
Ensure you're up to date with our latest advice on how to avoid fraud or scams when looking for property online.
Visit our security centre to find out moreDisclaimer - Property reference 33912236. The information displayed about this property comprises a property advertisement. Rightmove.co.uk makes no warranty as to the accuracy or completeness of the advertisement or any linked or associated information, and Rightmove has no control over the content. This property advertisement does not constitute property particulars. The information is provided and maintained by Chris Hamriding Lettings & Estates, Congleton. Please contact the selling agent or developer directly to obtain any information which may be available under the terms of The Energy Performance of Buildings (Certificates and Inspections) (England and Wales) Regulations 2007 or the Home Report if in relation to a residential property in Scotland.
*This is the average speed from the provider with the fastest broadband package available at this postcode. The average speed displayed is based on the download speeds of at least 50% of customers at peak time (8pm to 10pm). Fibre/cable services at the postcode are subject to availability and may differ between properties within a postcode. Speeds can be affected by a range of technical and environmental factors. The speed at the property may be lower than that listed above. You can check the estimated speed and confirm availability to a property prior to purchasing on the broadband provider's website. Providers may increase charges. The information is provided and maintained by Decision Technologies Limited. **This is indicative only and based on a 2-person household with multiple devices and simultaneous usage. Broadband performance is affected by multiple factors including number of occupants and devices, simultaneous usage, router range etc. For more information speak to your broadband provider.
Map data ©OpenStreetMap contributors.





