
Went Way, East Dean

- PROPERTY TYPE
Detached
- BEDROOMS
3
- BATHROOMS
1
- SIZE
Ask agent
- TENUREDescribes how you own a property. There are different types of tenure - freehold, leasehold, and commonhold.Read more about tenure in our glossary page.
Freehold
Key features
- TRIPLE ASPECT LIVING ROOM
- SITTING ROOM. DINING ROOM
- SPACIOUS DOUBLE GLAZED CONSERVATORY
- CLOAKROOM/WC
- 19'8 x 9' FITTED KITCHEN WITH GRANITE WORKTOPS AND INTEGRATED APPLIANCES
- 3 SPACIOUS DOUBLE BEDROOMS, THE PRINCIPAL BEDROOM FEATURES A BUILT IN SHOWER AREA
- BATHROOM/WC
- GAS FIRED CENTRAL HEATING. DOUBLE GLAZING
- MATURE GARDENS OF GOOD SIZE
- DETACHED DOUBLE GARGAE AND FURTHER GENEROUS PARKING. NO ONWARD CHAIN
Description
An early inspection is most highly recommended by the vendors' sole agent as above
COMPRISING
TRIPLE ASPECT LIVING ROOM,
SITTING ROOM, DINING ROOM,
SPACIOUS DOUBLE GLAZED CONSERVATORY , CLOAKROOM/WC,
19'8 x 9' FITTED KITCHEN WITH GRANITE WORKTOPS AND INTEGRATED APPLIANCES,
3 SPACIOUS DOUBLE BEDROOMS, THE PRINCIPAL BEDROOM FEATURES A BUILT IN SHOWER AREA, BATHROOM/WC,
GAS FIRED CENTRAL HEATING, DOUBLE GLAZING,
MATURE GARDENS OF GOOD SIZE,
DETACHED DOUBLE GARAGE AND FURTHER GENEROUS PARKING,
NO ONWARD CHAIN
LOCATION Keepings occupies a most favoured downland position on the Old side of the village, situated in a non-through country lane providing direct access to the South Downs. The village green with the famous Tiger Inn is a short stroll away and the East Dean cricket field together with other village local shops and amenities are all within close proximity. The village of East Dean is situated within the South Downs National Park, surrounded by miles of open scenic downland. Eastbourne town centre with its comprehensive range of shopping facilities, seafront and mainline railway station serving London Victoria and Gatwick airport is about four miles distant.
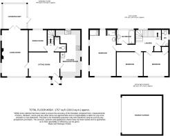
ACCOMMODATION AND APPROXIMATE ROOM SIZES
Double glazed front door having leaded light insets opening into
ENTRANCE PORCH with quarry tiled floor and inner timber panelled door opening into
SITTING ROOM 13'4 x 10'6 (4.06m x 3.20m) enjoying glorious far reaching views towards the Downs. Radiator, wall light point, built in display cabinet, timber latched door to
TRIPLE ASPECT LIVING ROOM 20' x 11'6 (6.10m x 3.51m) enjoying glorious far reaching views towards the Downs. Slate tiled fireplace with matching hearth and fitted gas fire, picture rail, dado rail, three wall light points, two radiators, double glazed doors opening into
CONSERVATORY 11' x 10'6 (3.35m x 3.20m) enjoying views over the rear garden and adjoining downland, Radiator, tiled floor, double glazed door opening onto patio and rear garden.
DINING ROOM 9'2 x 8' (2.79m x 2.44m) enjoying views over the rear garden to the Downs beyond. Radiator.
KITCHEN 19'8 x 9' (5.99m x 2.74m) enjoying glorious far reaching views towards the Downs. Fitted with an extensive range of built in matching units complemented by a full range of granite worktops comprising inset single drainer stainless steel sink having mixer tap with cupboards and drawers concealing integrated dishwasher and corner carousel unit, inset AEG four ring gas hob with feature extractor canopy above. Adjoining matching unit housing built in electric double oven and microwave above, further tall unit housing integrated fridge/freezer with retractable larder unit to side, range of matching wall cupboards, matching granite breakfast bar, space and plumbing for washing machine, wall mounted Vaillant gas fired boiler, inset down lights.
CLOAKROOM fitted with matching white suite complemented by ceramic floor tiling and wall tiling to full height, comprising close coupled wc, pedestal wash hand basin, inset down lights, extractor fan.
Staircase rising to SPACIOUS FIRST FLOOR LANDING with radiator, built in shelved airing cupboard housing pre-lagged copper cylinder hot water tank, hatch with retractable ladder to part boarded loft space with electric light.
BEDROOM 1 20'2 x 11'6 (6.15m x 3.51m) enjoying a bright triple aspect and spectacular far reaching views over the Downs towards Belle Tout lighthouse and the sea. Radiator, built in wardrobe cupboards having store cupboards above, fitted shower area comprising walk-in tiled shower cubicle with built in shower with sliding glazed door, pedestal wash hand basin with tiled floor.
BEDROOM 2 11'10 x 10'6 (3.61m x 3.20m) enjoying glorious far reaching views over the Downs towards Belle Tout lighthouse. Radiator.
BEDROOM 3 11' x 10'6 (3.35m x 3.20m) enjoying glorious far reaching views over the Downs towards Belle Tout lighthouse. Built in wardrobe cupboard with store cupboard above, radiator.
BATHROOM fitted with matching white suite complemented by ceramic floor tiling and wall tiling to full height, comprising panelled bath having mixer tap with built in shower above and folding glazed screen, built in vanity unit with inset wash hand basin having mixer tap with illuminated mirror fronted medicine cabinet above with electric shaver point and built in cupboards below. Radiator, inset down lights.
SEPARATE WC fitted with matching white suite complemented by ceramic wall tiling to full height, comprising close coupled wc, corner wash hand basin, inset down lights.
OUTSIDE
Keepings is set well back within beautifully established mature gardens of good size providing a fine setting for the house. Approached by a private flint walled winding driveway expanding to a generous parking area and access to the
BRICK BUILT DOUBLE GARAGE 17'4 in depth x 17'4 in width (5.28m x 5.28m) with up and over door, electric light and power points.
The extensive gardens arranged to the front of the property are laid mainly to lawn with mature hedgerow arranged to the boundary providing a high degree of privacy. A winding pathway from the garage leads to low rise steps leading to the house featuring an established area of rockery garden to the side. Adjacent to the front of the property is a substantial area of paved terrace providing a wonderful outdoor entertaining/dining area, from which far reaching downland views are enjoyed. A brick archway provides access to a paved area of side garden with timber garden shed and external power points, leading to the
MATURE WESTERLY FACING REAR GARDEN laid to lawn with mature trees and hedgerow to the boundary. Timber gate from the garden provides direct access onto the adjoining pastureland of the South Downs. Wonderful views over the adjoining pastureland are enjoyed from all areas of the garden.
WEALDEN COUNCIL TAX BAND - G
EPC RATING - D
- COUNCIL TAXA payment made to your local authority in order to pay for local services like schools, libraries, and refuse collection. The amount you pay depends on the value of the property.Read more about council Tax in our glossary page.
- Ask agent
- PARKINGDetails of how and where vehicles can be parked, and any associated costs.Read more about parking in our glossary page.
- Yes
- GARDENA property has access to an outdoor space, which could be private or shared.
- Yes
- ACCESSIBILITYHow a property has been adapted to meet the needs of vulnerable or disabled individuals.Read more about accessibility in our glossary page.
- Ask agent
Went Way, East Dean
Add an important place to see how long it'd take to get there from our property listings.
__mins driving to your place
Get an instant, personalised result:
- Show sellers you’re serious
- Secure viewings faster with agents
- No impact on your credit score
Your mortgage
Notes
Staying secure when looking for property
Ensure you're up to date with our latest advice on how to avoid fraud or scams when looking for property online.
Visit our security centre to find out moreDisclaimer - Property reference 12305W. The information displayed about this property comprises a property advertisement. Rightmove.co.uk makes no warranty as to the accuracy or completeness of the advertisement or any linked or associated information, and Rightmove has no control over the content. This property advertisement does not constitute property particulars. The information is provided and maintained by Emslie & Tarrant, Eastbourne. Please contact the selling agent or developer directly to obtain any information which may be available under the terms of The Energy Performance of Buildings (Certificates and Inspections) (England and Wales) Regulations 2007 or the Home Report if in relation to a residential property in Scotland.
*This is the average speed from the provider with the fastest broadband package available at this postcode. The average speed displayed is based on the download speeds of at least 50% of customers at peak time (8pm to 10pm). Fibre/cable services at the postcode are subject to availability and may differ between properties within a postcode. Speeds can be affected by a range of technical and environmental factors. The speed at the property may be lower than that listed above. You can check the estimated speed and confirm availability to a property prior to purchasing on the broadband provider's website. Providers may increase charges. The information is provided and maintained by Decision Technologies Limited. **This is indicative only and based on a 2-person household with multiple devices and simultaneous usage. Broadband performance is affected by multiple factors including number of occupants and devices, simultaneous usage, router range etc. For more information speak to your broadband provider.
Map data ©OpenStreetMap contributors.








