Beresford's Restaurant & Bar, Beresford Road, Windermere, LA23 2JG
- SIZE
Ask agent
- SECTOR
Restaurant for sale
Key features
- Restaurant only sale
- Well Established Business in Prime Location
- Popular with Tourists & Local Community
- 70+ Covers & Outdoor Seating Area
- Fully Licensed
- Energy Rating C
- Christie & Co Ref: 6467088
Description
Restaurant and Bar
Beresford's is a prominently positioned and well known Lake District restaurant and bar. The freehold sale comprises of the bar and restaurant, and a separate basement café/bar area - available for £675,000. Alternatively, the two separate two-bed flats above the property can also be included for a combined price of £1,225,000
The restaurant, which is decorated in a contemporary style, has a large 50 cover dining area and external patio area with seating for a further 20 covers. The basement bar area (which is capable of running separately if desired) seats 30 and is ideal for private functions.
The business has been trading for over 21 years being well supported by both tourists and locals to the area, and having a high rating on TripAdvisor.
The owner is now looking to retire.
For more information please see the dedicated website: BeresfordRestaurantandPub.
Beresford's Restaurant & Bar is prominently positioned on the corner of Lake Road and Beresford Road, on the main road leading from the village centres of Bowness and Windermere. Windermere and Bowness are set in the heart of the picturesque Southern Lake District.
The property is located within walking distance of the tourist hotspots of Windermere village and Bowness-on-Windermere, and its many tourist attractions including the World of Beatrix Potter, Windermere Jetty, Museum of Steam Boats and Stories, Brockhole Visitor Centre and the Eastern shores of Lake Windermere.
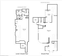
The ground floor comprises of large entrance hall with steps leading up to the restaurant and bar. Access to the basement bar is via the main entrance.
Restaurant/Bar
A spacious bar and dining area with open gallery style kitchen. The fully equipped commercial kitchen is a good working size with pot wash area, commercial grade stainless steel work benches, fridges, freezers, fryers, cookers, pizza oven, dishwasher, etc, as well as a full extraction system.
Basement Bar
Approximately 510sq.ft tastefully decorated and fitted out with a modern oak bar and polished green slate surface. Built-in bench seating, two booth seating areas and separate ladies and gents toilet facilities.
The area, which is capable of running separately if desired, seats 30 and is ideal for private functions. In addition there are store rooms and beer cellar on the basement level.
Ancillary Area
Ladies and gents WC's on both floors with disabled WC on ground floor. Plenty storage. Boiler Room Storage area with sanitary pump station.
Services
Mains gas, water, drainage and electricity. Both the basement café/bar and restaurant are run on separate boilers.
All fixtures and fittings are owned outright and are to be included within the sale however, any items that are personal to our client will be exempt. Stock is available separately and will be discussed at the time of sale.
Residential FlatsThis is a rare opportunity to acquire a trading business in one of the UK's most sought-after locations.
The two flats, available separately would make ideal owner's / staff accommodation or can be offered as rental properties, further enhancing investment potential.
Each flat is priced at £275,000.
Flat 1: Craig-y-Don
Living Room: 18? 11? x 18? (5.77m x 5.49m)
Kitchen: 8? 1? x 6? 10? (2.46m x 2.08m)
Bedroom 1: 11? 10? x 10? 4? (3.61m x 3.15m)
Bedroom 2: 7? 10? x 11? 4? (2.39m x 3.45m)
Flat 2 Craig-y-Don
Living Room: 18? x 15? 4? (5.49m x 4.67m)
Kitchen: 18? x 9? 6? (5.49m x 2.9m)
Bedoom 1: 14? 5? x 11? 10? (4.39m x 3.61m)
Bedroom 2: 8? 10? x 5? 5? (2.69m x 1.65m
Services
Mains electric, gas, water and drainage. Vaillant gas fired combination boiler providing central heating and hot water. Double glazed windows. (Please note: There is no gas supply or double glazing in Flat 1)
Beresford?s Restaurant & Bar presents an exceptional opportunity for those seeking a well renowned business venture.
Beresford?s is renowned for its warm hospitality and cuisine, making it a beloved destination for both locals and tourists alike. The restaurant boasts a spacious dining area tastefully decorated to reflect the rustic charm of the Lake District. With its inviting atmosphere and a menu that celebrates locally sourced ingredients, Beresford?s has built a loyal customer base and a stellar reputation.
The site may be of interest to someone wishing to establish a restaurant/bar in a popular tourist area, or an investor looking to expand their portfolio.
Trading information is available on request from serious buyers.
Trading HoursTuesday to Saturday
Dinner - 5.30pm till late
Sunday
Lunch - 12:00noon - 3.00pm
Dinner - 5.30pm till late
During the summer period opening and closing times vary.
The Rateable Value as at 1 April 2023 is £20,000 with the amount payable of £9,800 for 2024/25. Small business rates applicable.
Confirmation of actual rates payable can be obtained from the local Authority.
Flats: Council Tax: Westmorland and Furness Council - Band C.
Premises License
Energy Performance Certificates
EPC 1Brochures
Beresford's Restaurant & Bar, Beresford Road, Windermere, LA23 2JG
NEAREST STATIONS
Distances are straight line measurements from the centre of the postcode- Windermere Station0.9 miles
- Staveley Station3.9 miles
Notes
Disclaimer - Property reference BeresfordRestaurantonly. The information displayed about this property comprises a property advertisement. Rightmove.co.uk makes no warranty as to the accuracy or completeness of the advertisement or any linked or associated information, and Rightmove has no control over the content. This property advertisement does not constitute property particulars. The information is provided and maintained by Christie & Co, Pubs & Restaurants. Please contact the selling agent or developer directly to obtain any information which may be available under the terms of The Energy Performance of Buildings (Certificates and Inspections) (England and Wales) Regulations 2007 or the Home Report if in relation to a residential property in Scotland.
Map data ©OpenStreetMap contributors.






