
2 bedroom flat for sale
Flat 4, 12 Derby Road, Douglas

- PROPERTY TYPE
Flat
- BEDROOMS
2
- BATHROOMS
1
- SIZE
Ask agent
- TENUREDescribes how you own a property. There are different types of tenure - freehold, leasehold, and commonhold.Read more about tenure in our glossary page.
Ask agent
Key features
- Third floor converted flat
- Investment opportunity offered for sale subject to the existing tenancy agreement ending 18th September 2026
- Central and convenient location
- Walking distance to Douglas city centre and promenade
- Various amenities including shops, school and bus routes within a short distance
- Bright and airy accommodation
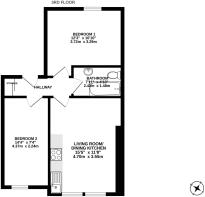
- Living room
- Open Plan kitchen
- 2 Bedrooms
- Bathroom
Description
This third-floor converted flat offers a fantastic opportunity for first-time buyers or investors, ideally located in a central and convenient area of Douglas. Within easy walking distance of the city centre and promenade, the property enjoys close proximity to a wide range of amenities including shops, schools, and bus routes.
The accommodation is bright and airy throughout, comprising an open-plan living and kitchen area, two bedrooms, and a bathroom, providing comfortable and practical living space.
PLEASE NOTE: This property is offered for sale subject to the existing tenancy agreement ending 18th September 2026. The current rental income is set at £900.00 per calendar month.
Inclusions All fitted floor coverings, blinds, curtains and light fittings
Appliances All integrated
Tenure Leasehold - held on the remainder of a 999 year lease with a management company in place which has set the current management fees at approximately £1200.00 per annum and £50.00 ground rent. The sale is subject to the existing tenancy agreement ending 18th September 2026. The current rental income is set at £900.00 per calendar month.
Rates Treasury tel - or Douglas Borough tel -
Heating Gas
Windows uPVC double glazed
- COUNCIL TAXA payment made to your local authority in order to pay for local services like schools, libraries, and refuse collection. The amount you pay depends on the value of the property.Read more about council Tax in our glossary page.
- Ask agent
- PARKINGDetails of how and where vehicles can be parked, and any associated costs.Read more about parking in our glossary page.
- Ask agent
- GARDENA property has access to an outdoor space, which could be private or shared.
- Ask agent
- ACCESSIBILITYHow a property has been adapted to meet the needs of vulnerable or disabled individuals.Read more about accessibility in our glossary page.
- Ask agent
Energy performance certificate - ask agent
Flat 4, 12 Derby Road, Douglas
Add an important place to see how long it'd take to get there from our property listings.
__mins driving to your place
Get an instant, personalised result:
- Show sellers you’re serious
- Secure viewings faster with agents
- No impact on your credit score
Your mortgage
Notes
Staying secure when looking for property
Ensure you're up to date with our latest advice on how to avoid fraud or scams when looking for property online.
Visit our security centre to find out moreDisclaimer - Property reference 6792. The information displayed about this property comprises a property advertisement. Rightmove.co.uk makes no warranty as to the accuracy or completeness of the advertisement or any linked or associated information, and Rightmove has no control over the content. This property advertisement does not constitute property particulars. The information is provided and maintained by Garforth Gray, Isle of Man. Please contact the selling agent or developer directly to obtain any information which may be available under the terms of The Energy Performance of Buildings (Certificates and Inspections) (England and Wales) Regulations 2007 or the Home Report if in relation to a residential property in Scotland.
*This is the average speed from the provider with the fastest broadband package available at this postcode. The average speed displayed is based on the download speeds of at least 50% of customers at peak time (8pm to 10pm). Fibre/cable services at the postcode are subject to availability and may differ between properties within a postcode. Speeds can be affected by a range of technical and environmental factors. The speed at the property may be lower than that listed above. You can check the estimated speed and confirm availability to a property prior to purchasing on the broadband provider's website. Providers may increase charges. The information is provided and maintained by Decision Technologies Limited. **This is indicative only and based on a 2-person household with multiple devices and simultaneous usage. Broadband performance is affected by multiple factors including number of occupants and devices, simultaneous usage, router range etc. For more information speak to your broadband provider.
Map data ©OpenStreetMap contributors.





