Scriven Road, Knaresborough

- PROPERTY TYPE
Terraced
- BEDROOMS
3
- BATHROOMS
2
- SIZE
Ask agent
- TENUREDescribes how you own a property. There are different types of tenure - freehold, leasehold, and commonhold.Read more about tenure in our glossary page.
Freehold
Description
** VIRTUAL 360 PROPERTY TOUR **
A charming three bedroomed period town house with gardens to the front and rear, parking and detached garage situated in this desirable residential district of Knaresborough close to the beautiful Jacob Smith Park.
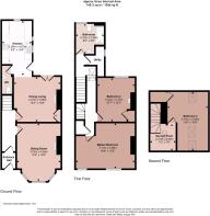
This beautifully presented home is rich with charm and character with banister staircases, sash windows and high cornice ceilings. Arranged over three floors the spacious accommodation comprises; entrance porch, hallway, bay fronted sitting room and an impressive living dining kitchen featuring a traditional inset range cooker, ground floor wc, rear access doors out to an enclosed courtyard garden and a classic stone floor with underfloor heating leading to a modern kitchen area with integrated appliances finished with granite work tops.
To the first floor there are two double bedrooms, useful understairs storage, utility room and a stylish fully tiled bathroom with shower over bath, low flush wc and pedestal wash basin.
Occupying the second floor a landing / study area and a further double bedroom with Velux windows and eaves storage.
Outside and to the the front a hand gate entrance with flagged pathway, lawned garden with mature trees, hedges and fencing to perimeters. To the rear an enclosed courtyard garden with useful under storage with gate out onto the rear driveway which is accessed directly off Park Grove, providing off street parking for a number of vehicles and leads to a detached garage which is connected to the house electricity supply.
The property forms part of the popular Scriven district of Knaresborough and is within easy walking distance of Knaresborough town centre, where there is an excellent range of amenities on offer, including bars, restaurants and shops, as well as a railway station with transport links to Harrogate, Leeds, York and London.
Council Tax Band: D
Tenure: Freehold
Brochures
Brochure- COUNCIL TAXA payment made to your local authority in order to pay for local services like schools, libraries, and refuse collection. The amount you pay depends on the value of the property.Read more about council Tax in our glossary page.
- Band: D
- PARKINGDetails of how and where vehicles can be parked, and any associated costs.Read more about parking in our glossary page.
- Garage,Driveway,Off street
- GARDENA property has access to an outdoor space, which could be private or shared.
- Front garden,Private garden,Enclosed garden,Rear garden
- ACCESSIBILITYHow a property has been adapted to meet the needs of vulnerable or disabled individuals.Read more about accessibility in our glossary page.
- Ask agent
Energy performance certificate - ask agent
Scriven Road, Knaresborough
Add an important place to see how long it'd take to get there from our property listings.
__mins driving to your place
Get an instant, personalised result:
- Show sellers you’re serious
- Secure viewings faster with agents
- No impact on your credit score
Affordability
Notes
Staying secure when looking for property
Ensure you're up to date with our latest advice on how to avoid fraud or scams when looking for property online.
Visit our security centre to find out moreDisclaimer - Property reference RS0345. The information displayed about this property comprises a property advertisement. Rightmove.co.uk makes no warranty as to the accuracy or completeness of the advertisement or any linked or associated information, and Rightmove has no control over the content. This property advertisement does not constitute property particulars. The information is provided and maintained by Newby James Ltd, Knaresborough. Please contact the selling agent or developer directly to obtain any information which may be available under the terms of The Energy Performance of Buildings (Certificates and Inspections) (England and Wales) Regulations 2007 or the Home Report if in relation to a residential property in Scotland.
*This is the average speed from the provider with the fastest broadband package available at this postcode. The average speed displayed is based on the download speeds of at least 50% of customers at peak time (8pm to 10pm). Fibre/cable services at the postcode are subject to availability and may differ between properties within a postcode. Speeds can be affected by a range of technical and environmental factors. The speed at the property may be lower than that listed above. You can check the estimated speed and confirm availability to a property prior to purchasing on the broadband provider's website. Providers may increase charges. The information is provided and maintained by Decision Technologies Limited. **This is indicative only and based on a 2-person household with multiple devices and simultaneous usage. Broadband performance is affected by multiple factors including number of occupants and devices, simultaneous usage, router range etc. For more information speak to your broadband provider.
Map data ©OpenStreetMap contributors.





