
3 bedroom terraced house for sale
Brampton Road, Cambridge

- PROPERTY TYPE
Terraced
- BEDROOMS
3
- BATHROOMS
1
- SIZE
Ask agent
- TENUREDescribes how you own a property. There are different types of tenure - freehold, leasehold, and commonhold.Read more about tenure in our glossary page.
Freehold
Key features
- 1930's three bedroom terraced house
- First floor bathroom
- Convenient and sought after area of the city
- Scope to remodel/update
- Solid wall external insulation
- Long rear garden
- No upward chain
Description
This extended 2-3 bedroom property would now benefit from updating but offers great scope and potential to remodel. The property has had external solid wall insulation added in 2015 and benefits from an attractive front garden and a sunny and private rear garden.
Offered with no upward chain, the accommodation in detail comprises;
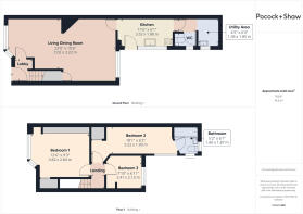
Ground Floor
Storm porch
with part glazed door to
Entrance lobby
with stairs to first floor, radiator, coathooks.
Living/ Dining Room
7.05 m x 4.11 m (23'2" x 13'6")
with bay window to front, window to rear, understairs cupboard, two radiators, gas fire on tiled base with back boiler (currently not working). Door to
Kitchen
3.51 m x 1.86 m (11'6" x 6'1")
with part glazed door and window to side, range of painted hand built units, stainless steel sink unit and drainer, space for under counter fridge, gas cooker point, ceiling mounted spotlight unit, door to
Rear lobby
with radiator, opening onto utility area and door to
Cloakroom
with window to side, wc.
Utility area
1.86 m x 1.35 m (6'1" x 4'5")
with window to side, space and plumbing for washing machine, wash basin with tiled splashbacks, space for freezer, wall units.
First Floor
Landing
with loft access hatch, doors to
Bedroom 1
3.85 m x 3.26 m (12'8" x 10'8")
with bay window to front, built in wardrobes to one wall, radiator, picture rail, built in shelved cupboard.
Bedroom 2
4.18 m x 1.89 m (13'9" x 6'2")
with window to side, radiator, airing cupboard with lagged hot water tank and slatted wood shelving, door to
Bathroom
with window to side and window to rear, panelled bath with tiled surround and chrome mixer taps and shower attachment, wash handbasin, wc, radiator.
Bedroom 3
2.41 m x 2.13 m (7'11" x 7'0")
with window to rear with views to garden, radiator, double doors to built in wardrobe cupboard with clothes hanging rail.
Outside
The property enjoys being set back from the road with a delightful front garden comprising well stocked flower and shrub borders, shaped lawn, wrought iron gate and retaining hedge, path to front door. The westerly facing rear garden is another particular feature of the property with lawn, pergola, vegetable growing area, pathway running the length of the garden.
Garden store
with window to side. The store is of asbestos construction and will likely be disposed of (appropriately) by any incoming purchaser and replaced with a more modern garden studio/garage. The garden extends to approximately 18m (min) excluding the side access and offers a high degree of privacy.
Agents Note
The roof to the utility room and wc is of asbestos construction.
The property at 144 has been vacant for many years, the current owner at 142 has experienced no problems as a result of this. The City Council are aware the property is empty, but cannot take action as the owner pays council tax on the property.
Services
All mains services.
Tenure
The property is Freehold.
Council tax
Band C
Viewing
By arrangement with Pocock & Shaw
Brochures
Brochure of 142 Brampton Road- COUNCIL TAXA payment made to your local authority in order to pay for local services like schools, libraries, and refuse collection. The amount you pay depends on the value of the property.Read more about council Tax in our glossary page.
- Band: C
- PARKINGDetails of how and where vehicles can be parked, and any associated costs.Read more about parking in our glossary page.
- Yes
- GARDENA property has access to an outdoor space, which could be private or shared.
- Yes
- ACCESSIBILITYHow a property has been adapted to meet the needs of vulnerable or disabled individuals.Read more about accessibility in our glossary page.
- Ask agent
Brampton Road, Cambridge
Add an important place to see how long it'd take to get there from our property listings.
__mins driving to your place
Get an instant, personalised result:
- Show sellers you’re serious
- Secure viewings faster with agents
- No impact on your credit score
Your mortgage
Notes
Staying secure when looking for property
Ensure you're up to date with our latest advice on how to avoid fraud or scams when looking for property online.
Visit our security centre to find out moreDisclaimer - Property reference PCZ-43493988. The information displayed about this property comprises a property advertisement. Rightmove.co.uk makes no warranty as to the accuracy or completeness of the advertisement or any linked or associated information, and Rightmove has no control over the content. This property advertisement does not constitute property particulars. The information is provided and maintained by Pocock & Shaw, Cambridge. Please contact the selling agent or developer directly to obtain any information which may be available under the terms of The Energy Performance of Buildings (Certificates and Inspections) (England and Wales) Regulations 2007 or the Home Report if in relation to a residential property in Scotland.
*This is the average speed from the provider with the fastest broadband package available at this postcode. The average speed displayed is based on the download speeds of at least 50% of customers at peak time (8pm to 10pm). Fibre/cable services at the postcode are subject to availability and may differ between properties within a postcode. Speeds can be affected by a range of technical and environmental factors. The speed at the property may be lower than that listed above. You can check the estimated speed and confirm availability to a property prior to purchasing on the broadband provider's website. Providers may increase charges. The information is provided and maintained by Decision Technologies Limited. **This is indicative only and based on a 2-person household with multiple devices and simultaneous usage. Broadband performance is affected by multiple factors including number of occupants and devices, simultaneous usage, router range etc. For more information speak to your broadband provider.
Map data ©OpenStreetMap contributors.









