Mere Road, Leicester, Leicestershire, LE5

- PROPERTY TYPE
Terraced
- BEDROOMS
3
- BATHROOMS
1
- SIZE
Ask agent
- TENUREDescribes how you own a property. There are different types of tenure - freehold, leasehold, and commonhold.Read more about tenure in our glossary page.
Freehold
Key features
- Three bedroom mid terrace property
- Having gas central heating & double glazing
- Close to all amenities & schools for all grades
- Ideal for owner occupier, first time buyer or rental investor
Description
Situated in the popular residential area of Highfields, Mere Road is known for its cultural diversity and accessible amenities. The property is situated close to schools, places of worship and a variety of shops, restaurants and supermarkets. The area is well connected by frequent bus services to Leicester City Centre and surrounding areas, while Leicester Railway Station is just a short distance away, offering convenient travel links for commuters and families.
Description
We are pleased to offer this well presented three bedroom mid terrace property on Mere Road. The property comprises of an entrance hallway, leading to the front reception room, living room and stairs to the first floor. The kitchen is situated to the rear of the property, providing access to the rear private garden area. The first floor accommodation provides access to three spacious bedrooms and the family bathroom.
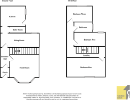
Accommodation
Ground Floor:
Entrance hallway - laminate wood flooring, gas central heating radiator, suspended lighting
Front reception room - laminate wood flooring, gas central heating radiator, UPVC double glazed bay window, suspended lighting
Living room - laminate wood flooring, gas central heating radiator, UPVC double glazed window, power points, suspended lighting
Kitchen - tiled flooring, a range of wall and base units with work surfaces over, stainless steel sink unit with mixer tap and drainer, cooker with four-ring gas hob, power points, gas central heating radiator, UPVC double glazed windows, UPVC double glazed door to rear garden.
First Floor:
Landing area - carpeted stairs leading to first floor.
Bedroom One - laminate flooring, gas central heating radiator, power points, UPVC, suspended lighting, double glazed window.
Bedroom Two - laminate flooring, gas central heating radiator, power points, UPVC, suspended lighting, double glazed window.
Bedroom Three - laminate flooring, gas central heating radiator, power points, UPVC, suspended lighting, double glazed window.
Bathroom - vinyl flooring, bath with mixer tap, wash hand basin, WC, tiled walls, inset lighting, UPVC double glazed window.
Outside - To the rear is a private paved garden area.
Measurements (Approx.)
Front Room - 16'0" x 10'94" / 4.87m x 3.33m
Living Room - 14'3" x 11'92" / 4.35m x 3.63m
Kitchen - 13'56" x 8'82" / 4.13m x 2.68m
Bedroom One - 15'81" x 11'05" / 4.81m x 3.36m
Bedroom Two - 11'95" x 12'95" / 3.64m x 3.94m
Bathroom - 6'9" x 6'37" / 2.10m x 1.94m
Bedroom Three - 13'8" x 9'0" / 4.20m x 2.74m
Viewings
Strictly by appointment through the sole selling agents.
Tenure
Freehold with vacant possession.
EPC
EPC rating D.
Council Tax Band
Council Tax Band B.
- COUNCIL TAXA payment made to your local authority in order to pay for local services like schools, libraries, and refuse collection. The amount you pay depends on the value of the property.Read more about council Tax in our glossary page.
- Ask agent
- PARKINGDetails of how and where vehicles can be parked, and any associated costs.Read more about parking in our glossary page.
- Ask agent
- GARDENA property has access to an outdoor space, which could be private or shared.
- Yes
- ACCESSIBILITYHow a property has been adapted to meet the needs of vulnerable or disabled individuals.Read more about accessibility in our glossary page.
- Ask agent
Energy performance certificate - ask agent
Mere Road, Leicester, Leicestershire, LE5
Add an important place to see how long it'd take to get there from our property listings.
__mins driving to your place
Get an instant, personalised result:
- Show sellers you’re serious
- Secure viewings faster with agents
- No impact on your credit score
Your mortgage
Notes
Staying secure when looking for property
Ensure you're up to date with our latest advice on how to avoid fraud or scams when looking for property online.
Visit our security centre to find out moreDisclaimer - Property reference 196MereRoad. The information displayed about this property comprises a property advertisement. Rightmove.co.uk makes no warranty as to the accuracy or completeness of the advertisement or any linked or associated information, and Rightmove has no control over the content. This property advertisement does not constitute property particulars. The information is provided and maintained by Shonki Brothers, Leicester. Please contact the selling agent or developer directly to obtain any information which may be available under the terms of The Energy Performance of Buildings (Certificates and Inspections) (England and Wales) Regulations 2007 or the Home Report if in relation to a residential property in Scotland.
*This is the average speed from the provider with the fastest broadband package available at this postcode. The average speed displayed is based on the download speeds of at least 50% of customers at peak time (8pm to 10pm). Fibre/cable services at the postcode are subject to availability and may differ between properties within a postcode. Speeds can be affected by a range of technical and environmental factors. The speed at the property may be lower than that listed above. You can check the estimated speed and confirm availability to a property prior to purchasing on the broadband provider's website. Providers may increase charges. The information is provided and maintained by Decision Technologies Limited. **This is indicative only and based on a 2-person household with multiple devices and simultaneous usage. Broadband performance is affected by multiple factors including number of occupants and devices, simultaneous usage, router range etc. For more information speak to your broadband provider.
Map data ©OpenStreetMap contributors.







