
3 bedroom chalet for sale
Norfolk Road, Sheringham

- PROPERTY TYPE
Chalet
- BEDROOMS
3
- BATHROOMS
2
- SIZE
1,726 sq ft
160 sq m
- TENUREDescribes how you own a property. There are different types of tenure - freehold, leasehold, and commonhold.Read more about tenure in our glossary page.
Freehold
Key features
- No onward chain
- Highly favoured location
- Gas central heating
- South facing garden
- Three bedrooms
- Two bathrooms
- Some updating required
- Garage and off-road parking
Description
Sheringham itself offers a wide range of amenities including an excellent selection of shops, restaurants and both bus and rail services providing easy access to the county capital of Norwich.
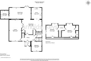
Entrance Porch - With part glazed entrance door and side panels. Further glazed door opening to:
Entrance Hall - Radiator, stairs to first floor, built in store cupboard.
Separate W.C. - Close coupled w.c., window to side.
Bathroom - Panelled bath, wash basin, heated towel rail, part tiled walls, window to side.
Lounge - A nicely proportioned room with windows to front and rear, two radiators, twin glazed doors leading to:
Dining Room - An open plan room with two radiators, built in shelved store cupboard, window to side, wall mounted gas fired boiler providing central heating and domestic hot water. Open to:
Kitchen - Comprehensive range of base and wall cabinets, laminated work surfaces with tiled splashbacks, window to rear aspect, inset gas hob with double oven beneath and filter hood above. Provision for washing machine, inset sink unit, tiled floor. Serving hatch to:
Garden Room - A beautifully light room with large picture window and patio doors to south facing rear aspect, radiator, glazed panel to lounge, sliding door to:
Wet Room - Radiator, low level w.c., wash basin, electric shaver light and point, independent electric shower, tiled walls.
First Floor Landing - Radiator.
Bedroom 1 - Radiator, window to rear aspect, pedestal wash basin, access to eaves storage area, built in shelved store cupboard. Sliding door to:
Ensuite - Close coupled w.c., tiled shower cubicle with independent electric shower.
Bedroom 2 - Radiator, two aspects to rear and side with views to the Coast in the distance. Access to eaves storage area.
Outside - The property is approached over a tarmac driveway providing ample parking with a lawned area to the side with ornamental fish pond. Attached to the property is a brick built GARAGE. The rear garden is fully enclosed and has a raised patio and further lawned area. There is an outbuilding attached to the rear of the garage and an aluminium GREENHOUSE.
Agents Note - The property is freehold, has all mains services connected and has a Council Tax Rating of Band D. There are 14 photovoltaic panels on the rear aspect.
Brochures
Norfolk Road, SheringhamEPCBrochure- COUNCIL TAXA payment made to your local authority in order to pay for local services like schools, libraries, and refuse collection. The amount you pay depends on the value of the property.Read more about council Tax in our glossary page.
- Band: D
- PARKINGDetails of how and where vehicles can be parked, and any associated costs.Read more about parking in our glossary page.
- Yes
- GARDENA property has access to an outdoor space, which could be private or shared.
- Yes
- ACCESSIBILITYHow a property has been adapted to meet the needs of vulnerable or disabled individuals.Read more about accessibility in our glossary page.
- Ask agent
Norfolk Road, Sheringham
Add an important place to see how long it'd take to get there from our property listings.
__mins driving to your place
Get an instant, personalised result:
- Show sellers you’re serious
- Secure viewings faster with agents
- No impact on your credit score
Your mortgage
Notes
Staying secure when looking for property
Ensure you're up to date with our latest advice on how to avoid fraud or scams when looking for property online.
Visit our security centre to find out moreDisclaimer - Property reference 33926579. The information displayed about this property comprises a property advertisement. Rightmove.co.uk makes no warranty as to the accuracy or completeness of the advertisement or any linked or associated information, and Rightmove has no control over the content. This property advertisement does not constitute property particulars. The information is provided and maintained by Arnolds Keys, Coastal. Please contact the selling agent or developer directly to obtain any information which may be available under the terms of The Energy Performance of Buildings (Certificates and Inspections) (England and Wales) Regulations 2007 or the Home Report if in relation to a residential property in Scotland.
*This is the average speed from the provider with the fastest broadband package available at this postcode. The average speed displayed is based on the download speeds of at least 50% of customers at peak time (8pm to 10pm). Fibre/cable services at the postcode are subject to availability and may differ between properties within a postcode. Speeds can be affected by a range of technical and environmental factors. The speed at the property may be lower than that listed above. You can check the estimated speed and confirm availability to a property prior to purchasing on the broadband provider's website. Providers may increase charges. The information is provided and maintained by Decision Technologies Limited. **This is indicative only and based on a 2-person household with multiple devices and simultaneous usage. Broadband performance is affected by multiple factors including number of occupants and devices, simultaneous usage, router range etc. For more information speak to your broadband provider.
Map data ©OpenStreetMap contributors.







