Ffordd Gwynedd, Bangor

- PROPERTY TYPE
House
- BEDROOMS
12
- BATHROOMS
12
- SIZE
Ask agent
- TENUREDescribes how you own a property. There are different types of tenure - freehold, leasehold, and commonhold.Read more about tenure in our glossary page.
Freehold
Key features
- Granted Planning Permission For 9x Apartments
- 50 Metres From Bangor Cathedral & 100 Metres From The High Street
- Prominent Location With Land For Parking
- Historical Grade II Listed Building
- Positioned Next to Bangor's Bus Station and Taxi Rank
- Commercial Building With Option For Change of Use
- City Centre Location
Description
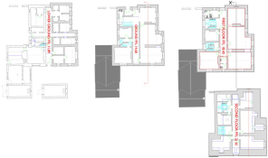
Following redevelopment, the building offers the potential to generate a GROSS annual income exceeding £110,000. The approved plans include the transformation of the property into a mix of three two-bedroom apartments and six one-bedroom apartments (including 2x affordable apartments). Each apartment will feature a kitchen, living room, bathroom, and en-suite rooms.
The layout consists of three units on the lower ground floor, two on the ground floor, two on the first floor, and two on the second floor. The ground floor external buildings will be repurposed for storage, including a space for rubbish bins and recycling, additional storage for the owner, and a garage.
This landmark building, which has previously housed the Canonry Museum, Art Gallery, and more recently an independent school, is now available following the closure of the school. It retains a wealth of original features, including slate flagged floors, high ceilings, and exposed stonework windows with beautiful leaded stained glass inset lights.
Additionally, the property includes ancillary outbuildings and a stable block, offering the potential for use as a restaurant or wine bar (subject to the necessary consents).This is an exceptional opportunity to own a piece of Bangor’s rich history.
Lower Ground Floor - 140m2 (459'3"6'6") -
Ground Floor - 155m2 (508'6"6'6") -
First Floor - 155m2 (508'6"6'6") -
Second Floor - 120m2 (393'8"6'6") -
Brochures
Ffordd Gwynedd, Bangor- COUNCIL TAXA payment made to your local authority in order to pay for local services like schools, libraries, and refuse collection. The amount you pay depends on the value of the property.Read more about council Tax in our glossary page.
- Ask agent
- PARKINGDetails of how and where vehicles can be parked, and any associated costs.Read more about parking in our glossary page.
- Yes
- GARDENA property has access to an outdoor space, which could be private or shared.
- Ask agent
- ACCESSIBILITYHow a property has been adapted to meet the needs of vulnerable or disabled individuals.Read more about accessibility in our glossary page.
- Ask agent
Energy performance certificate - ask agent
Ffordd Gwynedd, Bangor
Add an important place to see how long it'd take to get there from our property listings.
__mins driving to your place
Get an instant, personalised result:
- Show sellers you’re serious
- Secure viewings faster with agents
- No impact on your credit score
Your mortgage
Notes
Staying secure when looking for property
Ensure you're up to date with our latest advice on how to avoid fraud or scams when looking for property online.
Visit our security centre to find out moreDisclaimer - Property reference 33926582. The information displayed about this property comprises a property advertisement. Rightmove.co.uk makes no warranty as to the accuracy or completeness of the advertisement or any linked or associated information, and Rightmove has no control over the content. This property advertisement does not constitute property particulars. The information is provided and maintained by Varcity Living Limited, Bangor. Please contact the selling agent or developer directly to obtain any information which may be available under the terms of The Energy Performance of Buildings (Certificates and Inspections) (England and Wales) Regulations 2007 or the Home Report if in relation to a residential property in Scotland.
*This is the average speed from the provider with the fastest broadband package available at this postcode. The average speed displayed is based on the download speeds of at least 50% of customers at peak time (8pm to 10pm). Fibre/cable services at the postcode are subject to availability and may differ between properties within a postcode. Speeds can be affected by a range of technical and environmental factors. The speed at the property may be lower than that listed above. You can check the estimated speed and confirm availability to a property prior to purchasing on the broadband provider's website. Providers may increase charges. The information is provided and maintained by Decision Technologies Limited. **This is indicative only and based on a 2-person household with multiple devices and simultaneous usage. Broadband performance is affected by multiple factors including number of occupants and devices, simultaneous usage, router range etc. For more information speak to your broadband provider.
Map data ©OpenStreetMap contributors.





