
3 bedroom semi-detached house for sale
Courtland Drive, Aston, Deeside

- PROPERTY TYPE
Semi-Detached
- BEDROOMS
3
- BATHROOMS
1
- SIZE
Ask agent
- TENUREDescribes how you own a property. There are different types of tenure - freehold, leasehold, and commonhold.Read more about tenure in our glossary page.
Freehold
Key features
- NO CHAIN
- SPACIOUS FAMILY HOME
- LOUNGE
- KITCHEN THROUGH DINER
- MODERN BATHROOM
- THREE BEDROOMS
- CONSERVATORY
- GAS HEATING & D/G
- LARGE GARAGE OFF ROAD PARKING
- FREEHOLD COUNCIL TAX BAND D
Description
DIRECTIONS: Turn right out of the Shotton Office and proceed under the railway bridge to the traffic lights and turn right into Shotton Lane proceed passing the shops and playing field and turn left into the one way system passing the community hospital on the left to the roundabout and take the 4th exit and turn immediately left into Courtland Drive where the property will be seen on the right hand side.
LOCATION: Situated conveniently for the A55 expressway allowing access to Chester, Liverpool and the North Wales Coast.
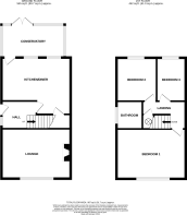
ENTRANCE HALL: Radiator and double glazed window.
LOUNGE: 15' 9" x 11' 4" (4.8m x 3.45m) Radiator and double glazed window. Gas fire with back boiler with wooden surround and mantle.
KITCHEN/DINER:
KITCHEN AREA 13' x 7' 5" (3.96m x 2.26m) Double glazed window. One and a half sink unit with storage below and matching wall and base units with work surface over. Electric oven and hob. Built in fridge. Wall mounted gas boiler. Tiling to splash back area's. Under stairs storage housing the plumbing for an automatic washing machine.
DINING AREA 9' 9" x 8' 3" (2.97m x 2.51m) Radiator and double glazed window. Double glazed door to the:-
CONSERVATORY: 13' 7" x 7' 5" (4.14m x 2.26m) An ideal entertaining space overlooking the colourful rear garden with double glazed window, an insulated roof with LED lighting and French doors to the garden.
STAIRS AND LANDING: Loft access and airing cupboard.
BEDROOM 1: 14' x 11' 5" (4.27m x 3.48m) Radiator and double glazed window. fitted bedroom furniture providing wardrobes, storage, dressing table and draw units.
BEDROOM 2: 10' 1" x 8' 9" (3.07m x 2.67m) Radiator and double glazed window.
BEDROOM 3: 10' x 6' 7" (3.05m x 2.01m) Radiator and double glazed window.
BATHROOM: Double glazed window, W.C. wash hand basin in vanity unit and panelled bath with shower over. Complimentary modern tiling.
OUTSIDE: Colourful frontage with paved drive to the side providing parking, Large storage shed(former garage) 13'11" x 8' 4" Established gardens to the rear with trees, shrubs and plants with a lawn.
Brochures
Web - 6 Page Broc...- COUNCIL TAXA payment made to your local authority in order to pay for local services like schools, libraries, and refuse collection. The amount you pay depends on the value of the property.Read more about council Tax in our glossary page.
- Band: D
- PARKINGDetails of how and where vehicles can be parked, and any associated costs.Read more about parking in our glossary page.
- Garage,Off street
- GARDENA property has access to an outdoor space, which could be private or shared.
- Yes
- ACCESSIBILITYHow a property has been adapted to meet the needs of vulnerable or disabled individuals.Read more about accessibility in our glossary page.
- Ask agent
Courtland Drive, Aston, Deeside
Add an important place to see how long it'd take to get there from our property listings.
__mins driving to your place
Get an instant, personalised result:
- Show sellers you’re serious
- Secure viewings faster with agents
- No impact on your credit score
Your mortgage
Notes
Staying secure when looking for property
Ensure you're up to date with our latest advice on how to avoid fraud or scams when looking for property online.
Visit our security centre to find out moreDisclaimer - Property reference 101307033065. The information displayed about this property comprises a property advertisement. Rightmove.co.uk makes no warranty as to the accuracy or completeness of the advertisement or any linked or associated information, and Rightmove has no control over the content. This property advertisement does not constitute property particulars. The information is provided and maintained by Molyneux, Shotton. Please contact the selling agent or developer directly to obtain any information which may be available under the terms of The Energy Performance of Buildings (Certificates and Inspections) (England and Wales) Regulations 2007 or the Home Report if in relation to a residential property in Scotland.
*This is the average speed from the provider with the fastest broadband package available at this postcode. The average speed displayed is based on the download speeds of at least 50% of customers at peak time (8pm to 10pm). Fibre/cable services at the postcode are subject to availability and may differ between properties within a postcode. Speeds can be affected by a range of technical and environmental factors. The speed at the property may be lower than that listed above. You can check the estimated speed and confirm availability to a property prior to purchasing on the broadband provider's website. Providers may increase charges. The information is provided and maintained by Decision Technologies Limited. **This is indicative only and based on a 2-person household with multiple devices and simultaneous usage. Broadband performance is affected by multiple factors including number of occupants and devices, simultaneous usage, router range etc. For more information speak to your broadband provider.
Map data ©OpenStreetMap contributors.








